← Lewisham

Status

Registered Change of use
Received
Last month
New homes
0

Full proposal

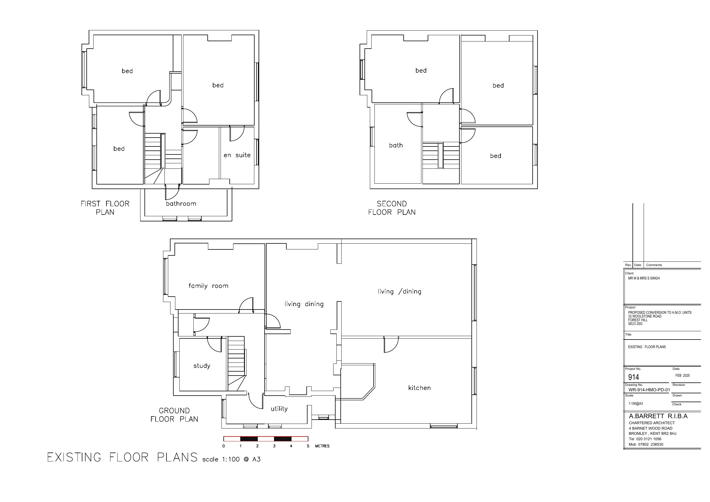
Change of use of the existing dwellinghouse (Use Class C3) to a House in Multiple Occupation HMO (Use Class Sui Generis) and all associated works at 32 Woolstone Road SE23.

Documents

Case Copy Drawings
Archived · Original link
Case Copy Drawings
Archived · Original link
Case Copy Drawings
Archived · Original link
Case Copy Drawings
Archived · Original link
Case Copy Drawings
Archived · Original link
Site Location Plan
Archived · Original link

Have your say

Your comment matters. Councils must consider every representation that raises material planning considerations.

Write a comment