← Lewisham

Status

Registered New housing
Received
Last month
New homes
1

Full proposal

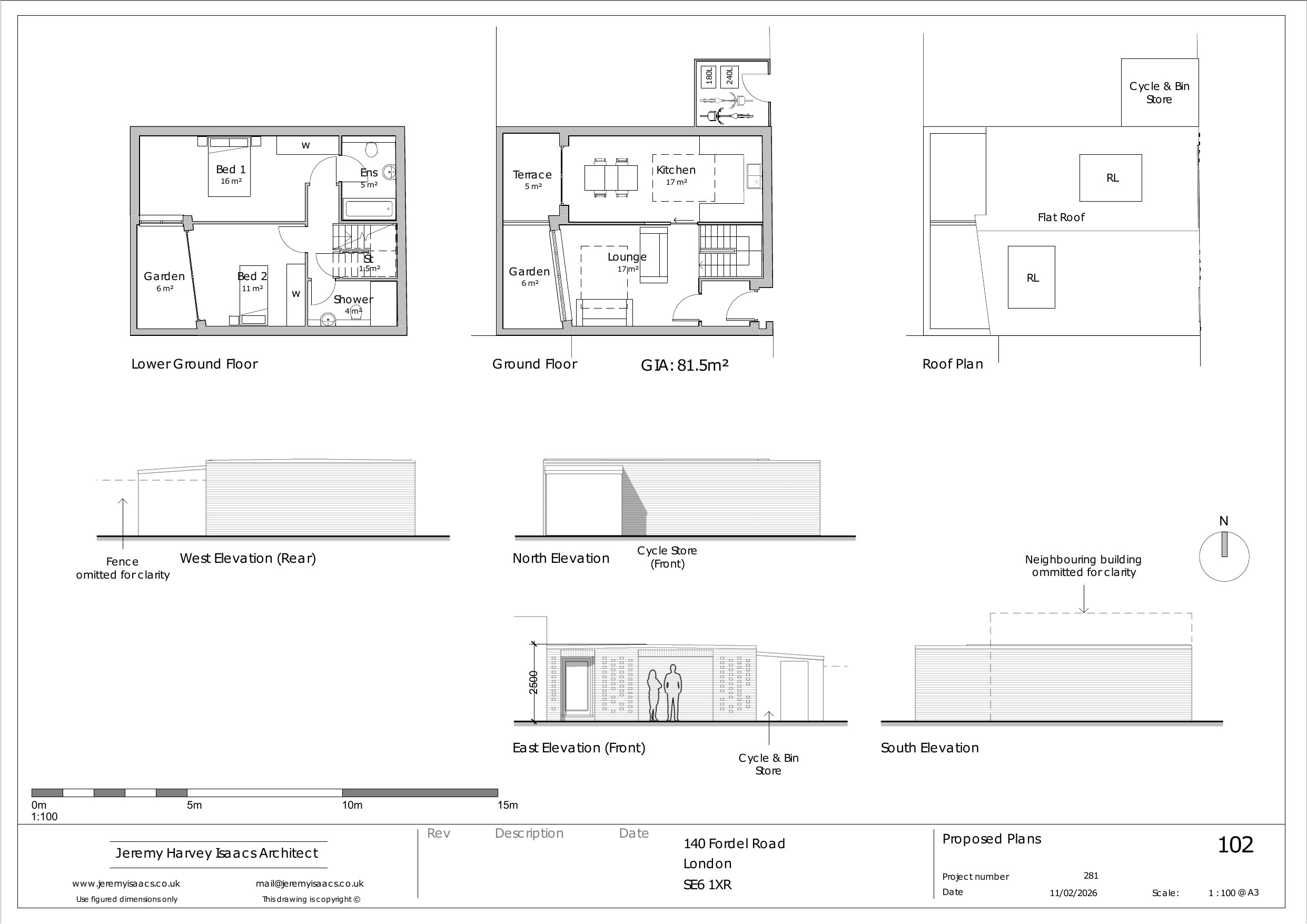
The construction of a single storey, plus lower ground floor, two bedroom detached dwelling house, together with the provision of bin and cycle storage and all associated works at the rear of 140 Fordel Road SE6.

Documents

Case Copy Drawings
Archived · Original link
Site Location Plan
Archived · Original link
Site Location Plan
Archived · Original link
Case Copy Documents
Archived · Original link
Case Copy Drawings
Archived · Original link

Have your say

Your comment matters. Councils must consider every representation that raises material planning considerations.

Write a comment