← Lewisham

Status

Registered Change of use
Received
Last month
New homes
0

Full proposal

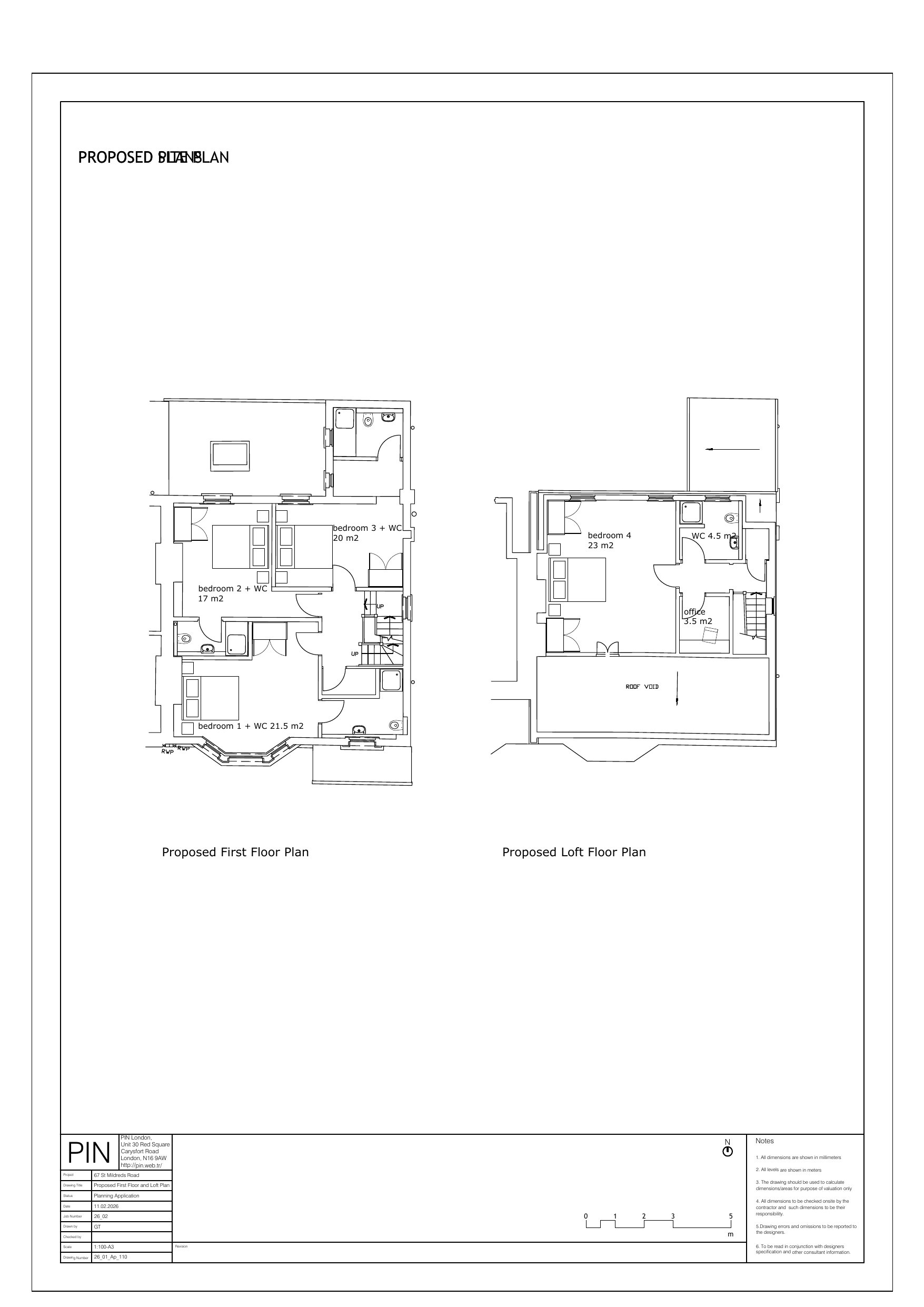
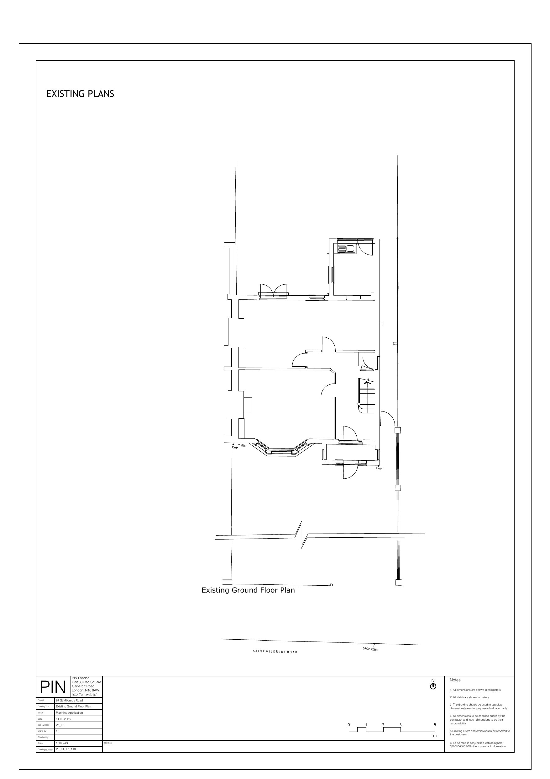
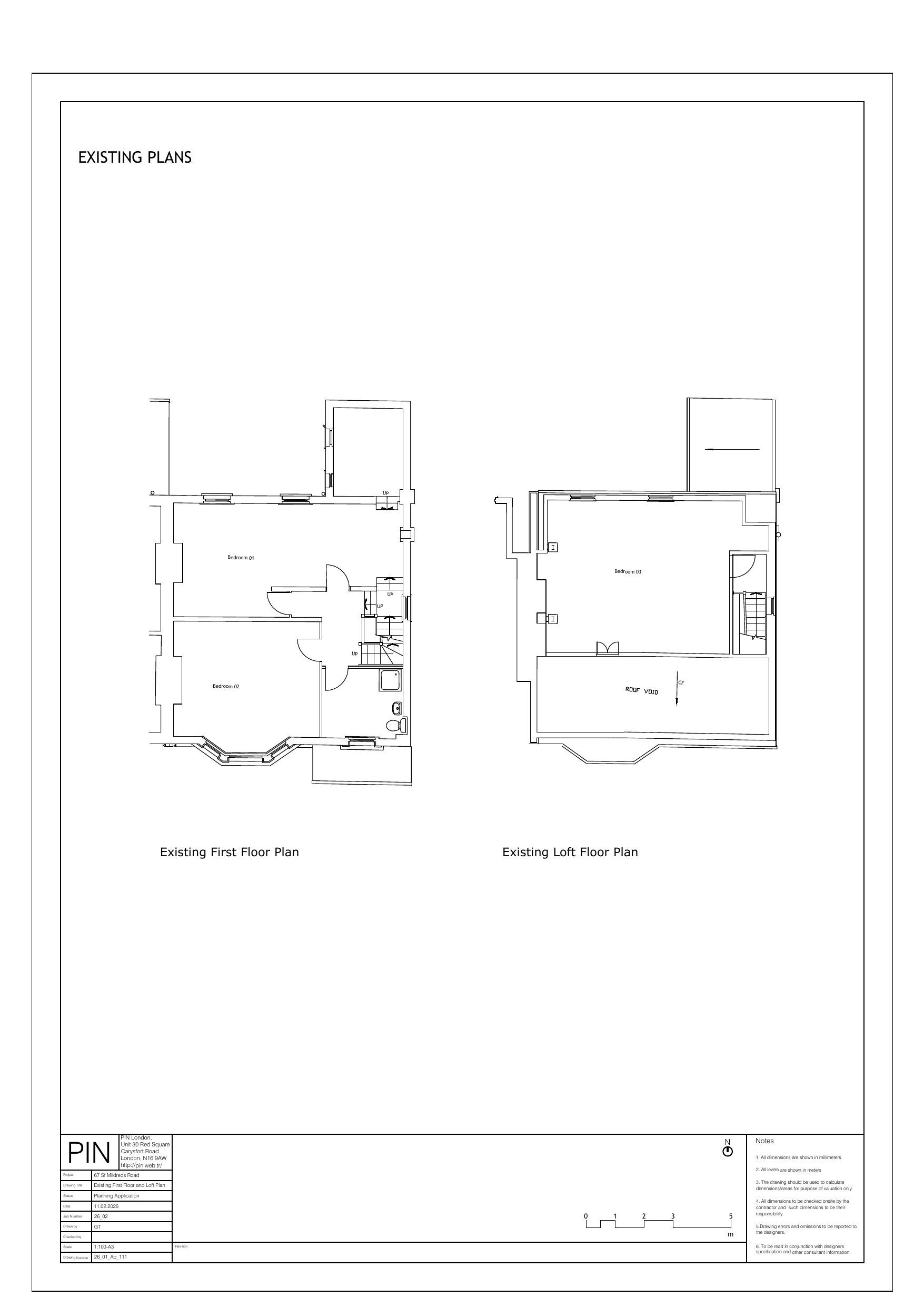
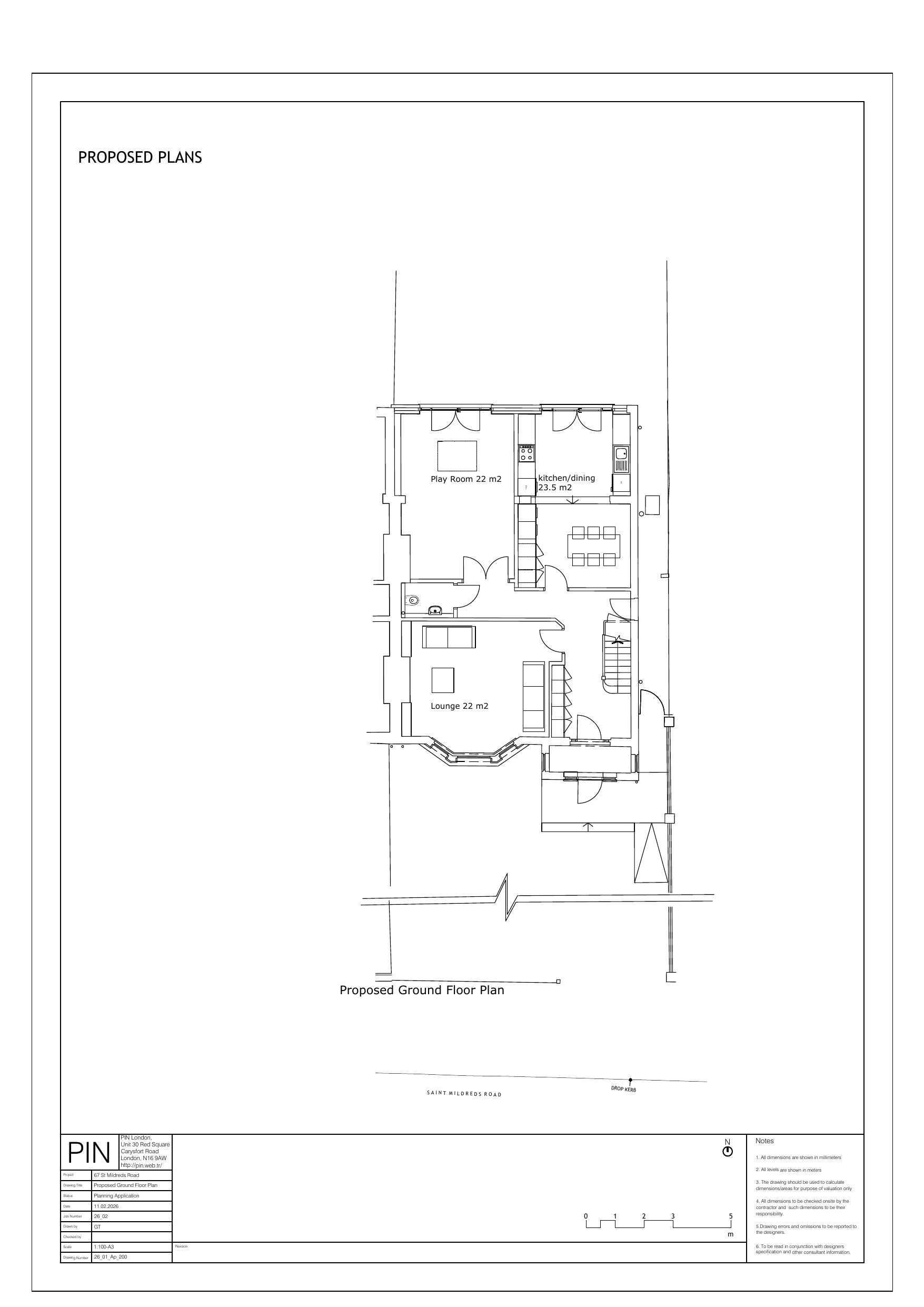
Change of use of the existing dwellinghouse (Use Class C3(a) into a children's care home (Use Class C2), the construction of a single storey extension to the rear, together with the provision bike and bin storage in the front at 67 St Mildreds Road, SE12.

Documents

Case Copy Drawings
Archived · Original link
Case Copy Documents
Archived · Original link
Case Copy Drawings
Archived · Original link
Case Copy Drawings
Archived · Original link
Case Copy Drawings
Archived · Original link
Case Copy Drawings
Archived · Original link
Case Copy Drawings
Archived · Original link
Case Copy Drawings
Archived · Original link
Case Copy Drawings
Archived · Original link
Site Location Plan
Archived · Original link
Case Copy Drawings
Archived · Original link
Case Copy Drawings
Archived · Original link
Case Copy Drawings
Archived · Original link

Have your say

Your comment matters. Councils must consider every representation that raises material planning considerations.

Write a comment