← Lewisham

Status

Registered House extension
Received
28 days ago
New homes
0

Full proposal

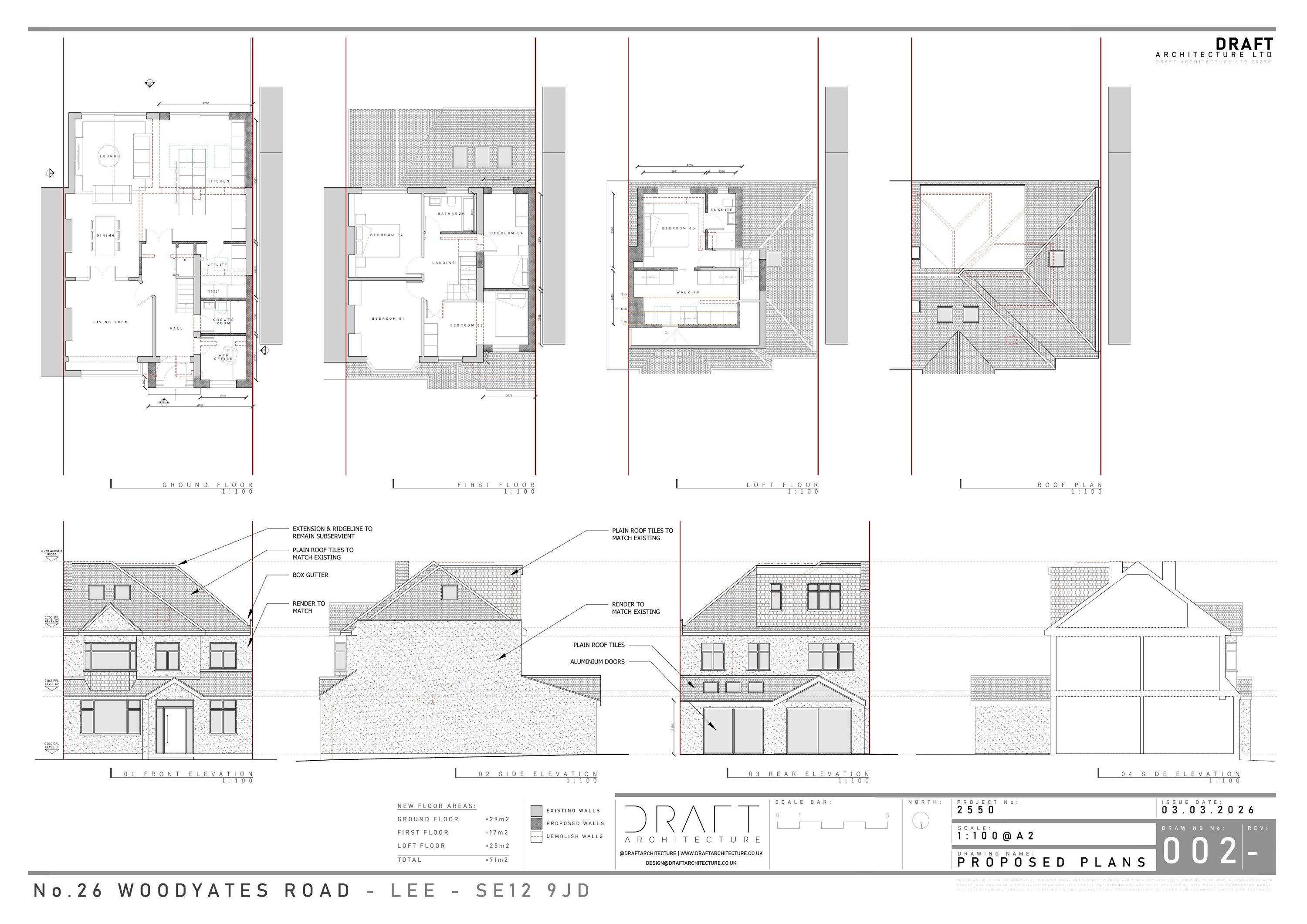
Construction of a part single, part double side and rear extension, together with a loft extension at 26 Woodyates Road SE12.

Documents

Case Copy Drawings
Archived · Original link
Case Copy Drawings
Archived · Original link
Site Location Plan
Archived · Original link
Case Copy Documents
Archived · Original link
Case Copy Drawings
Archived · Original link

Have your say

Your comment matters. Councils must consider every representation that raises material planning considerations.

Write a comment