← Luton Borough Council

Status

PER - Application Permitted House extension
Received
12 Dec 2024
New homes
0

Full proposal

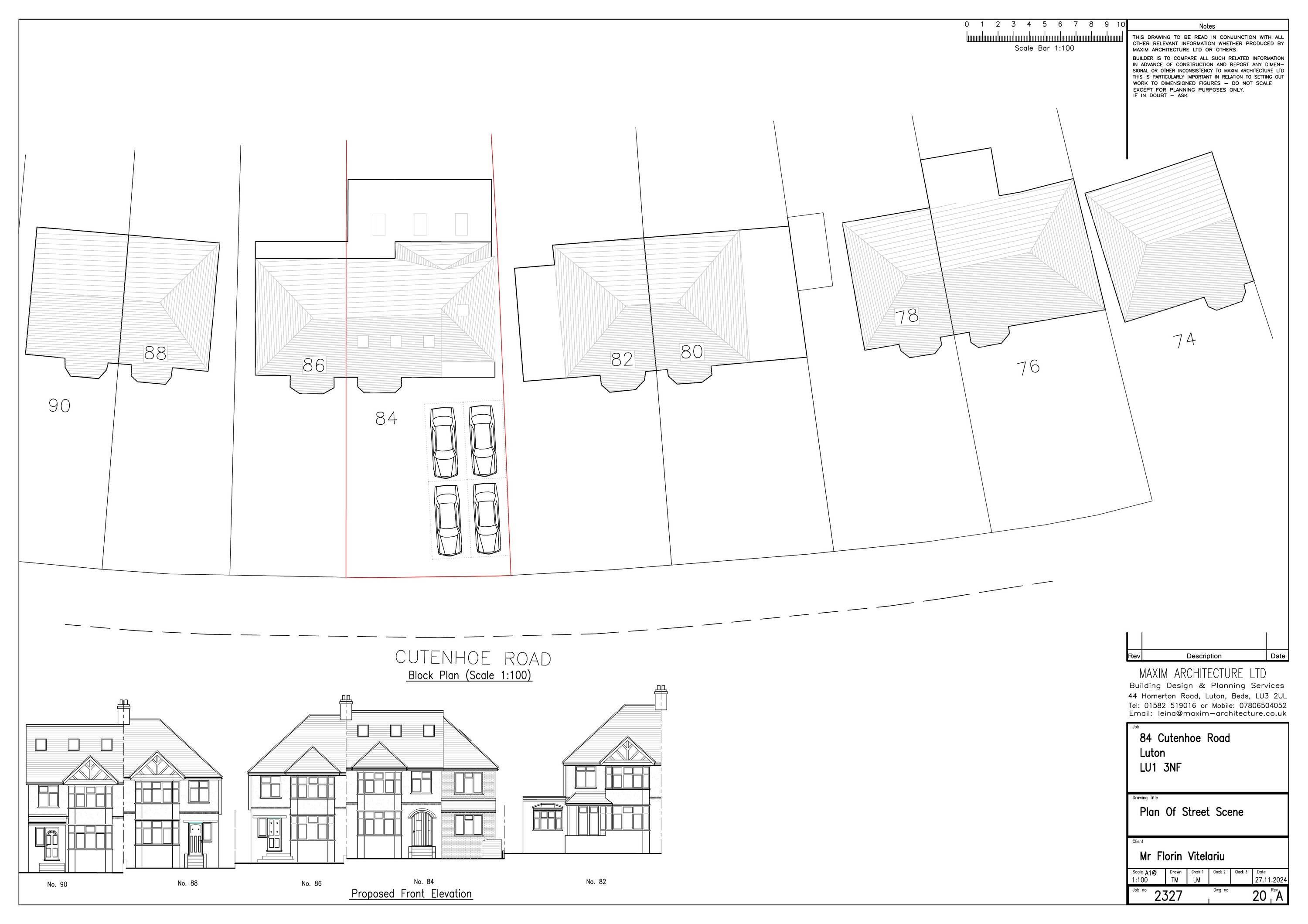
Erection of a two storey side with side rooflight, single storey front/side & rear/side extensions and bin stores

Documents

Current Docs - SUPERSEDED
Archived · Original link
Application Form
Archived · Original link
Case Officer Report
Archived · Original link
Current Docs
Archived · Original link
Current Docs
Archived · Original link
Decision Notice
Archived · Original link

Have your say

Your comment matters. Councils must consider every representation that raises material planning considerations.

Write a comment