← Luton Borough Council

Status

PER - Application Permitted Change of use
Received
16 Dec 2024
New homes
0

Full proposal

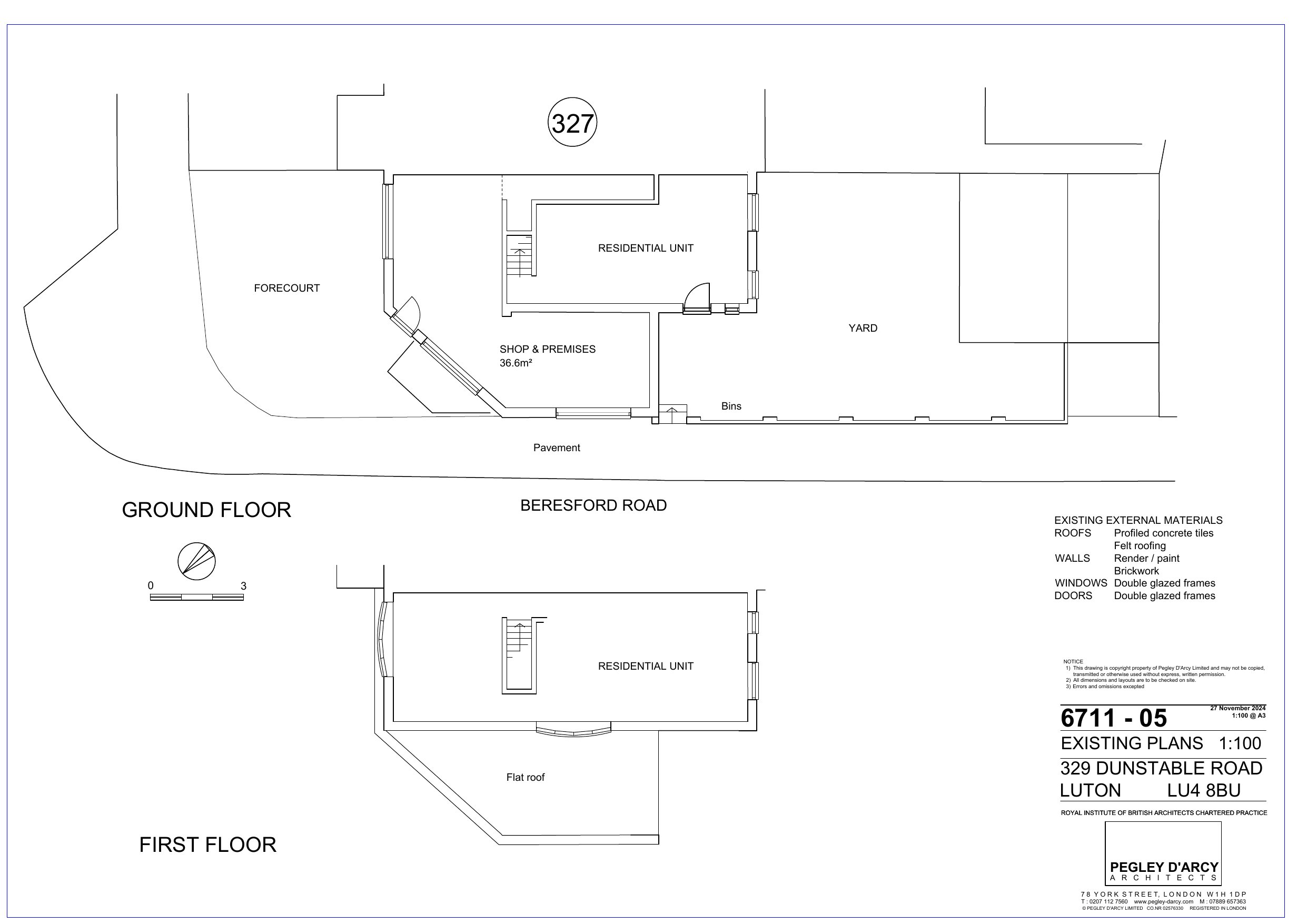
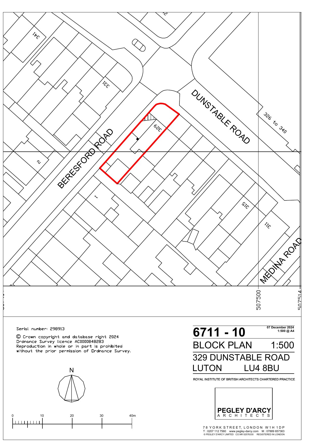
Erection of a single storey front/side extension and installation of extraction flue to enable permitted change of use to cafe/restaurant.

Documents

Current Docs
Archived · Original link
Current Docs
Archived · Original link
Current Docs
Archived · Original link
Current Docs
Archived · Original link
Current Docs
Archived · Original link
Current Docs - SUPERSEDED
Archived · Original link
Current Docs - SUPERSEDED
Archived · Original link
Current Docs
Archived · Original link
Current Docs - ADDITIONAL
Archived · Original link
Current Docs - AMENDED
Archived · Original link
Application Form
Archived · Original link
Case Officer Report
Archived · Original link
Current Docs - ADDITIONAL
Archived · Original link
Current Docs - ADDITIONAL
Archived · Original link
Current Docs - ADDITIONAL
Archived · Original link
Current Docs - ADDITIONAL
Archived · Original link
Decision Notice
Archived · Original link
Comment - Consultee
Archived · Original link
Comment - Consultee
Archived · Original link
Comment - Consultee
Archived · Original link
Comment - Consultee
Archived · Original link

Have your say

Your comment matters. Councils must consider every representation that raises material planning considerations.

Write a comment