← Luton Borough Council

Status

PER - Application Permitted House extension
Received
07 Jan 2025
New homes
0

Full proposal

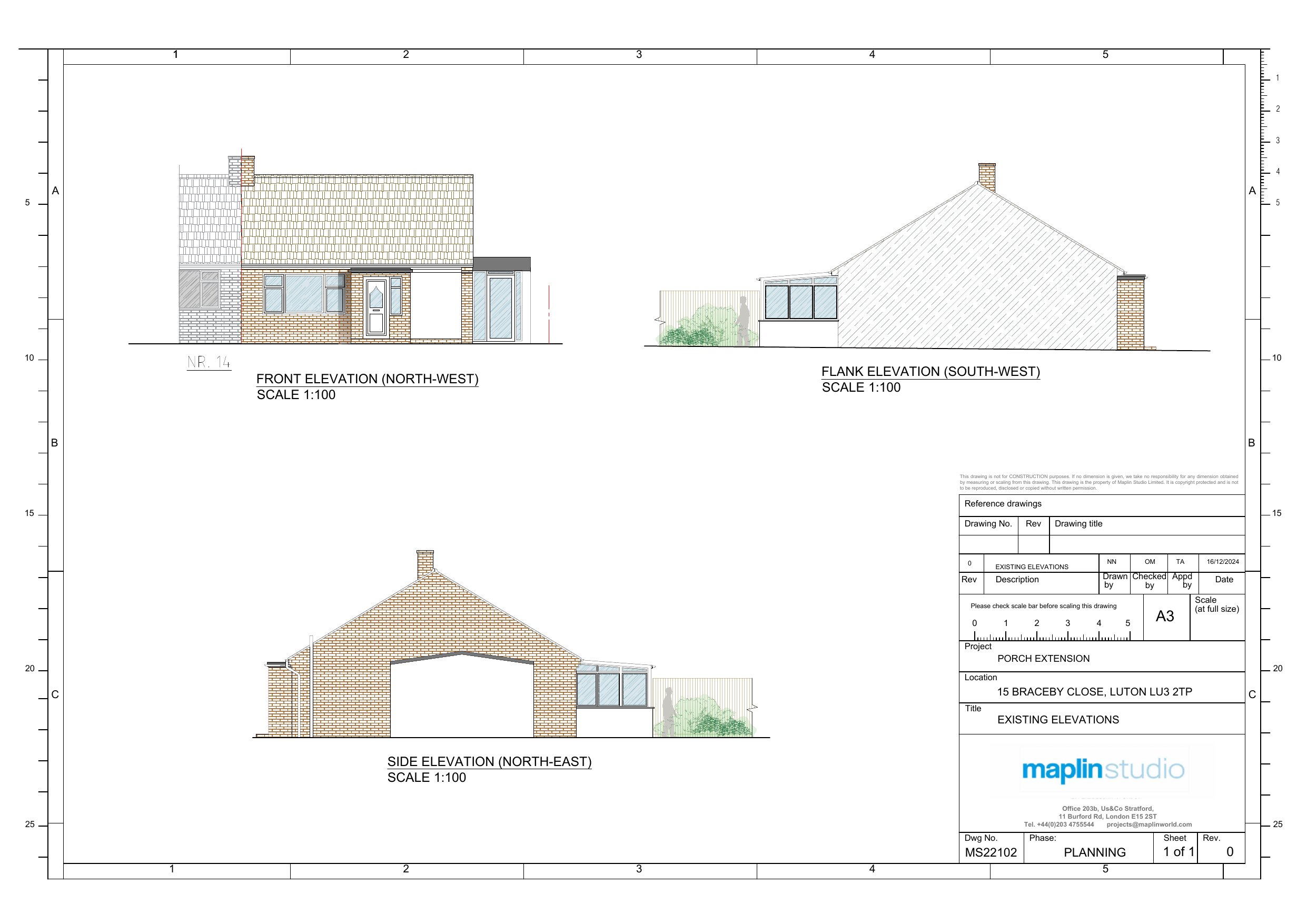
Erection of front porch following demolition of existing front porch.

Have your say

Your comment matters. Councils must consider every representation that raises material planning considerations.

Write a comment