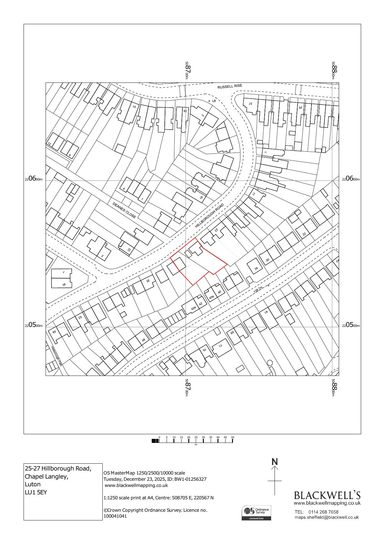
← Luton Borough Council

Status

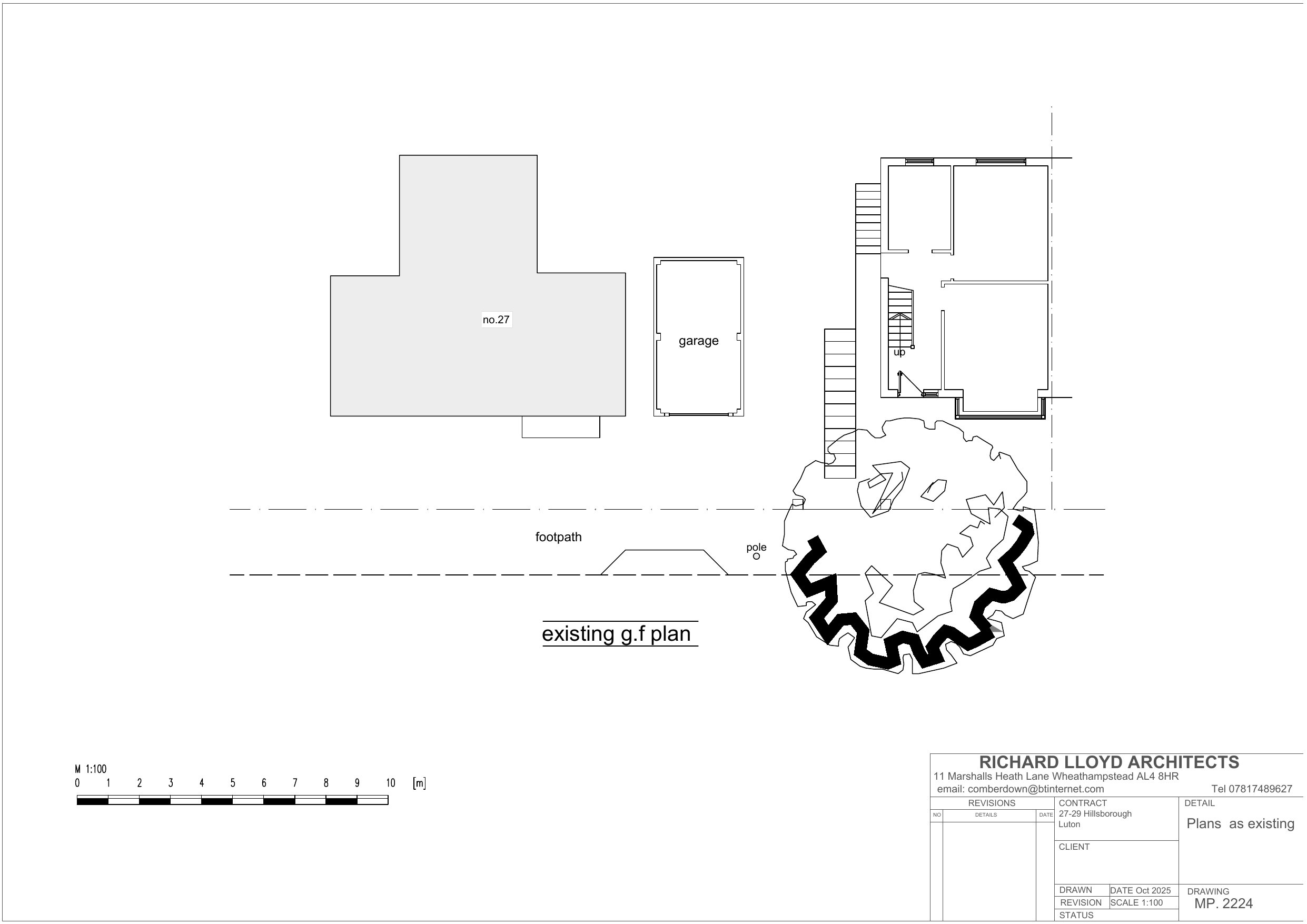
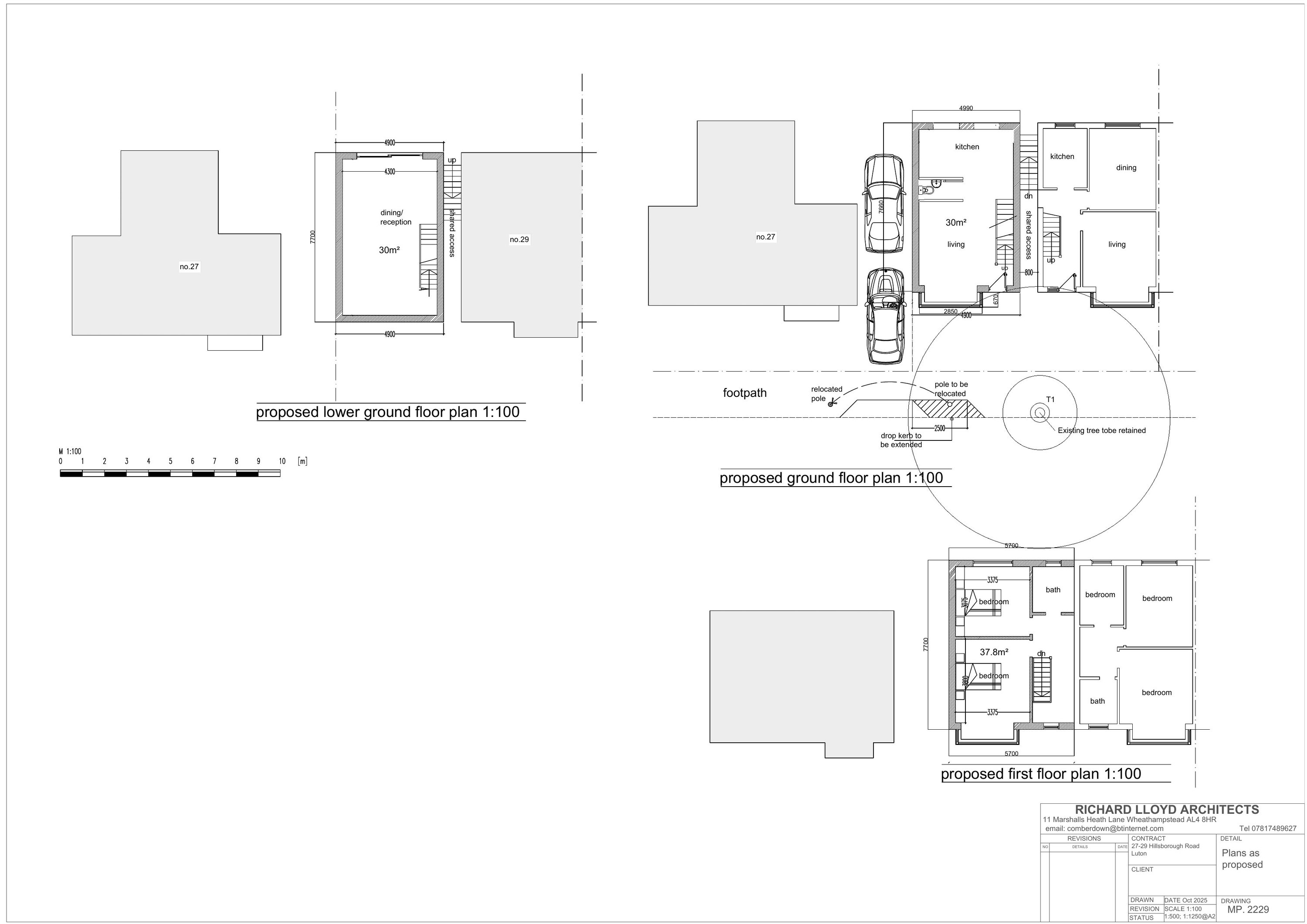
Awaiting decision New housing
Received
12 Jan 2026
New homes
1

Full proposal

Erection of a two bedroom attached dwelling house

Have your say

Your comment matters. Councils must consider every representation that raises material planning considerations.

Write a comment