← Luton Borough Council

Status

Awaiting decision New housing
Received
20 Jan 2026
New homes
1

Full proposal

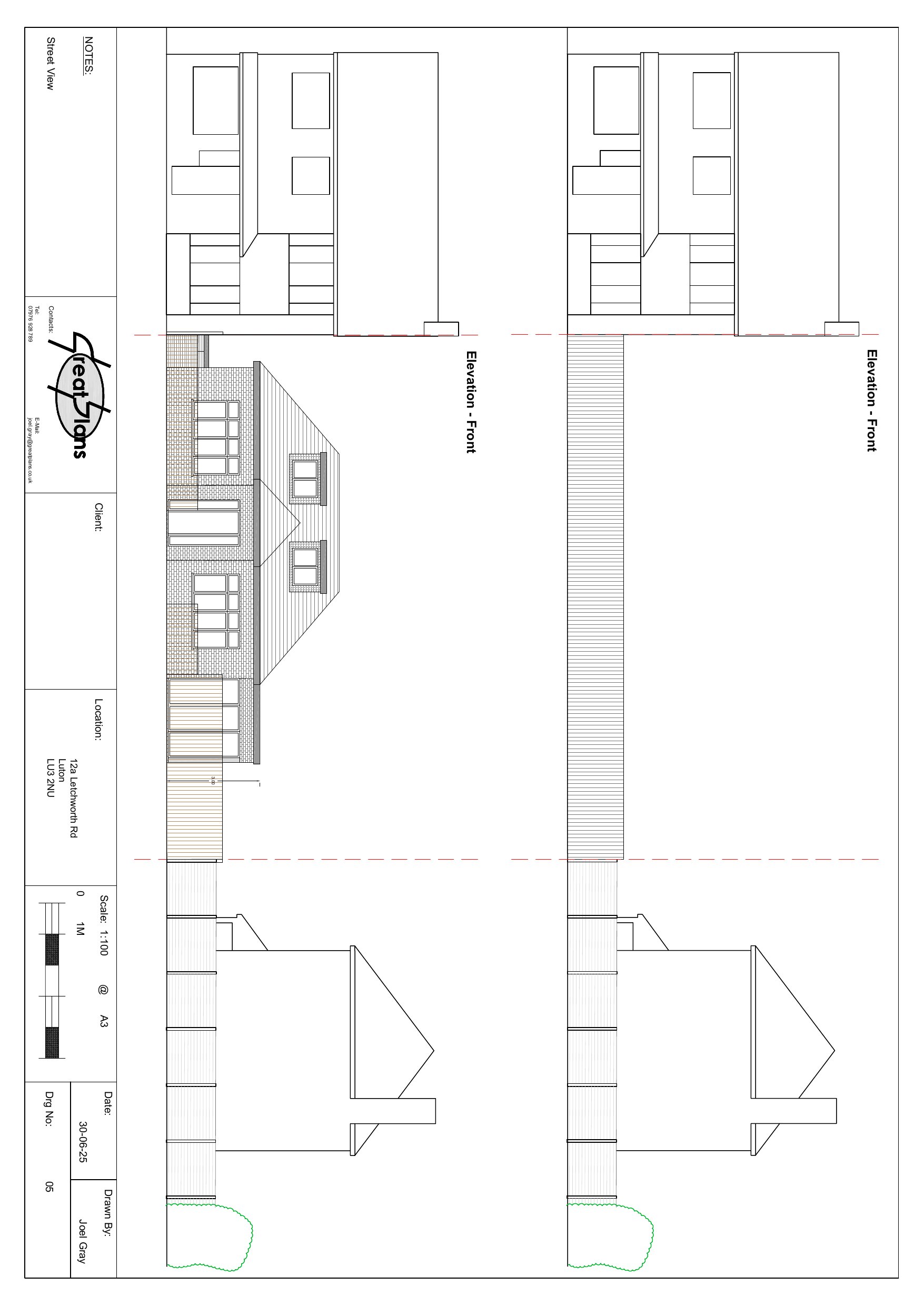
Erection of a chalet style two-bedroom bungalow with front-facing dormers, parking, bin and secure cycle storage

Documents

Current Docs
Archived · Original link
Current Docs
Archived · Original link
Current Docs
Archived · Original link
Current Docs
Archived · Original link
Current Docs
Archived · Original link
Application Form
Archived · Original link

Have your say

Your comment matters. Councils must consider every representation that raises material planning considerations.

Write a comment