← Luton Borough Council

Status

Awaiting decision House extension
Received
Last month
New homes
0

Full proposal

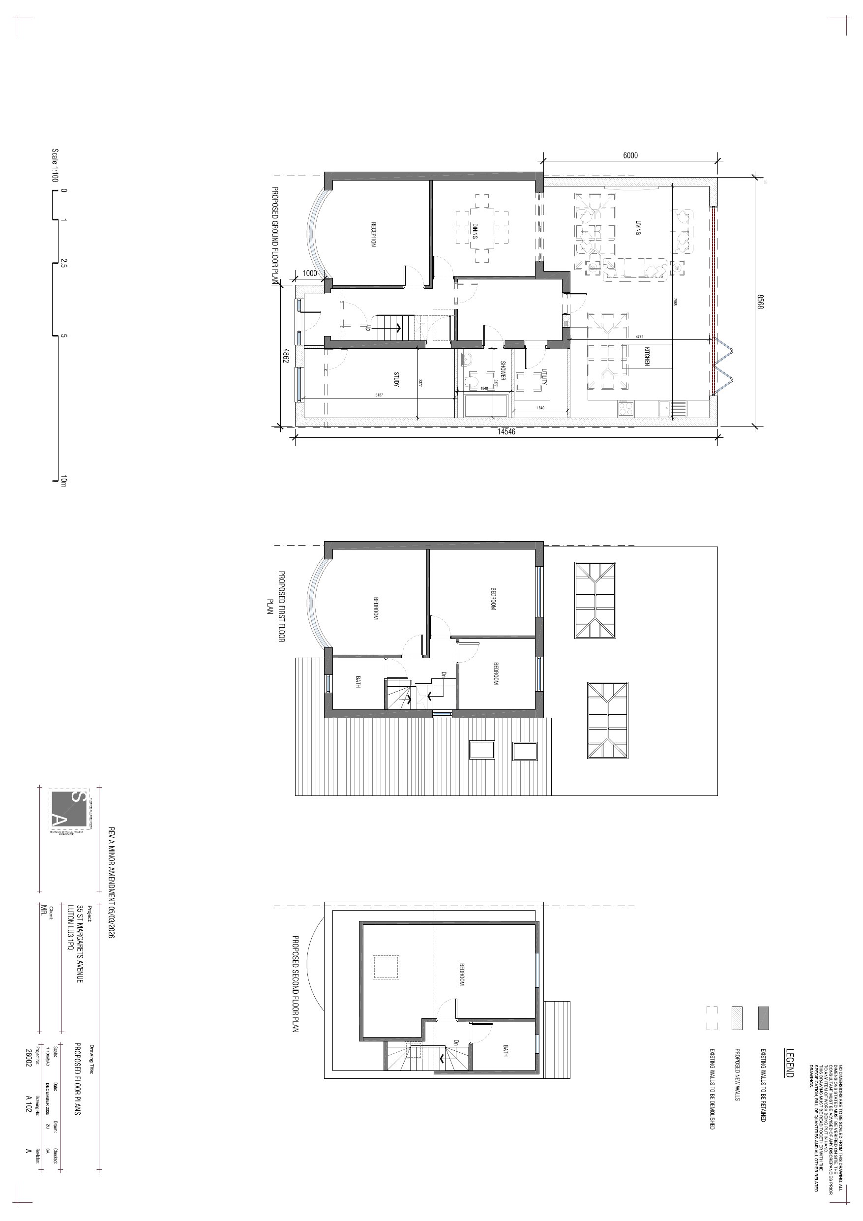
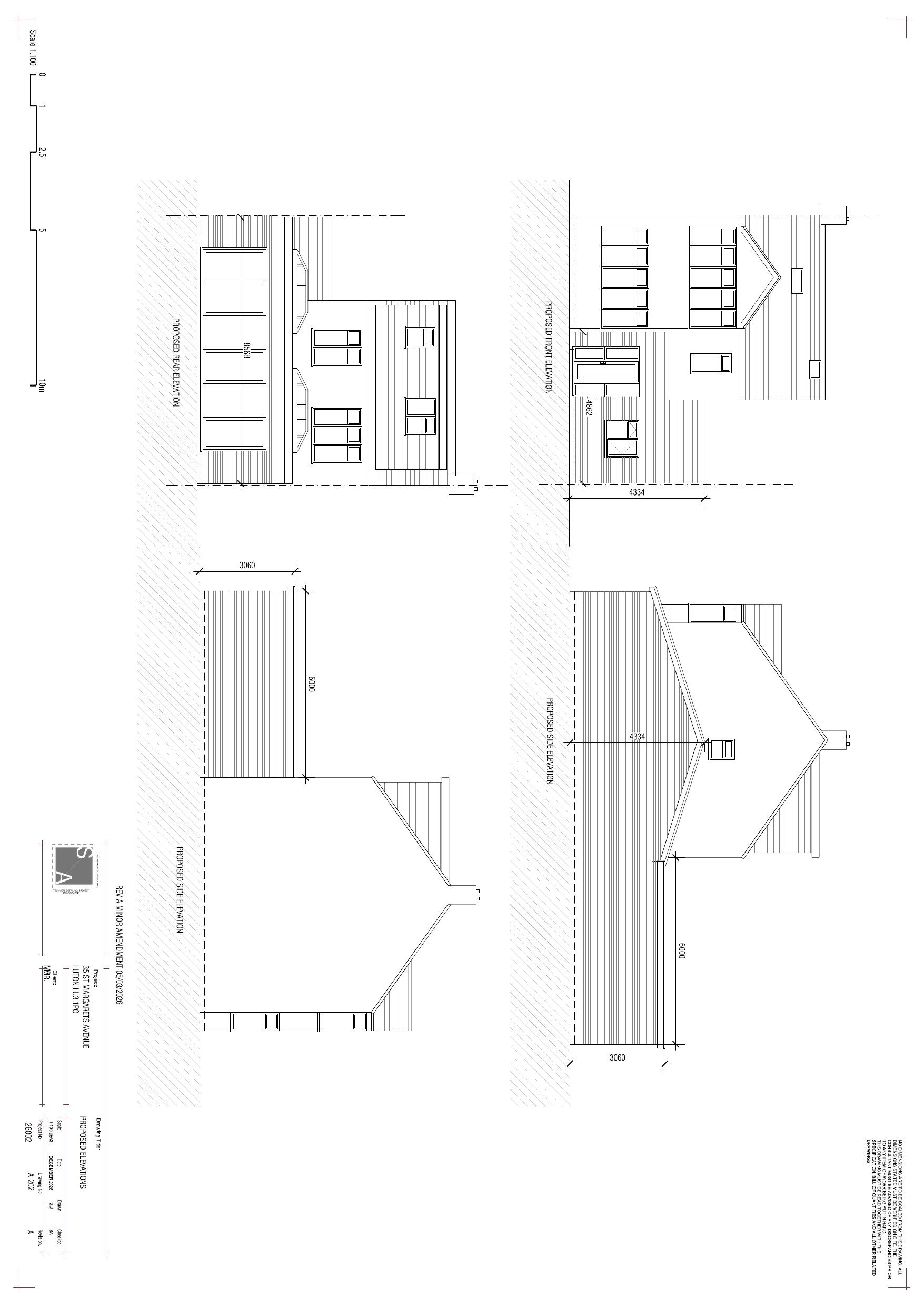
Erection of single storey front, side and rear extension and alterations to fenestration.

Documents

Current Docs
Archived · Original link
Current Docs
Archived · Original link
Current Docs
Archived · Original link
Current Docs
Archived · Original link
Application Form
Archived · Original link

Have your say

Your comment matters. Councils must consider every representation that raises material planning considerations.

Write a comment