← Luton Borough Council

Status

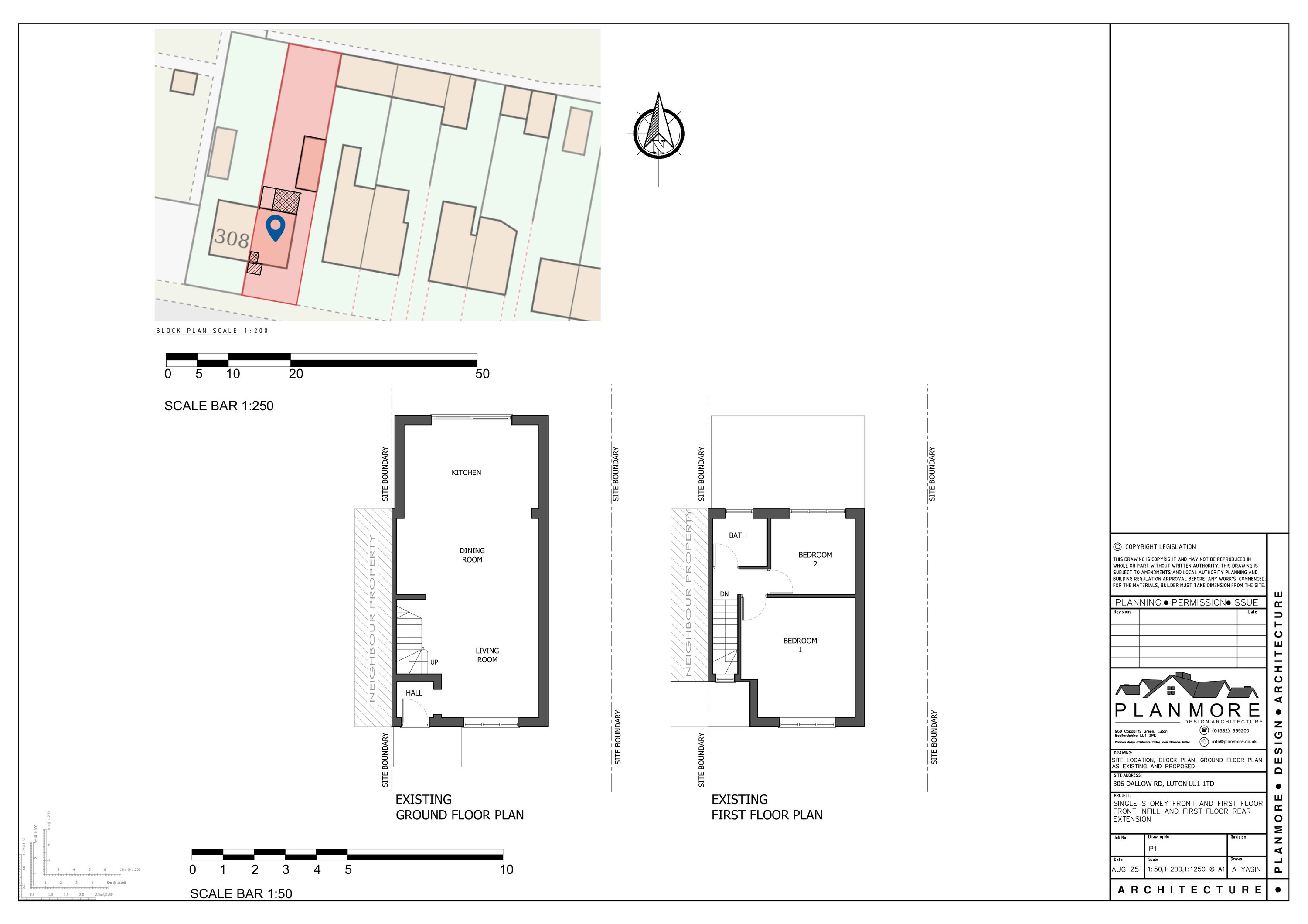
Awaiting decision House extension
Received
Last month
New homes
0

Full proposal

Erection of a first floor front infill and rear extension and a front porch.

Have your say

Your comment matters. Councils must consider every representation that raises material planning considerations.

Write a comment