← Back to Mansfield District Council

Status

Awaiting decision New housing
Received 02 May 2025
New dwellings 34

What you can do

Take Action

Make your voice heard. Authorities need to hear from people who support new homes.

Summary

Erection of 34 affordable dwellings with landscaping, highway improvements and associated works.

Full Proposal

ERECTION OF 34 NO. AFFORDABLE DWELLINGS, LANDSCAPING, HIGHWAY IMPROVEMENTS AND ASSOCIATED WORKS.

Detail pages

Documents

Affordable housing statement
SUPPORTING INFORMATION
Not downloaded · Council link
Air quality assessment
SUPPORTING INFORMATION
Not downloaded · Council link
Amended energy and sustainability statement
SUPPORTING INFORMATION
Not downloaded · Council link
Amended planting plan, schedule and specification notes
AMENDED DRAWING
Not downloaded · Council link
Amended planting plan, schedule and specification notes
AMENDED DRAWING
Not downloaded · Council link
Amended planting plan, schedule and specification notes
AMENDED DRAWING
Not downloaded · Council link
Amended proposed site access
AMENDED DRAWING
Not downloaded · Council link
Amended site layout - block plan
AMENDED DRAWING
Not downloaded · Council link
Amended site layout - external works
AMENDED DRAWING
Not downloaded · Council link
Amended site layout - external works
AMENDED DRAWING
Not downloaded · Council link
Amended site layout and block plan
AMENDED DRAWING
Not downloaded · Council link
Amended swept path analysis of large refuse vehicle
AMENDED DRAWING
Not downloaded · Council link
Application form - without personal data
APPLICATION FORM
Not downloaded · Council link
Arboricultural impact assessment
SUPPORTING INFORMATION
Not downloaded · Council link
Bng assessment
SUPPORTING INFORMATION
Not downloaded · Council link
Boundary wall details
DRAWING
Not downloaded · Council link
Close board fence details
DRAWING
Not downloaded · Council link
Coal authority/mining remediation
CONSULTEE COMMENT
Not downloaded · Council link
Covering letter
SUPPORTING INFORMATION
Not downloaded · Council link
Covering letter
SUPPORTING INFORMATION
Not downloaded · Council link
Covering letter
SUPPORTING INFORMATION
Not downloaded · Council link
Cycle store details
DRAWING
Not downloaded · Council link
Design and access statement
SUPPORTING INFORMATION
Not downloaded · Council link
Drainage calculations
SUPPORTING INFORMATION
Not downloaded · Council link
Drainage strategy
DRAWING
Not downloaded · Council link
Ecological appraisal
SUPPORTING INFORMATION
Not downloaded · Council link
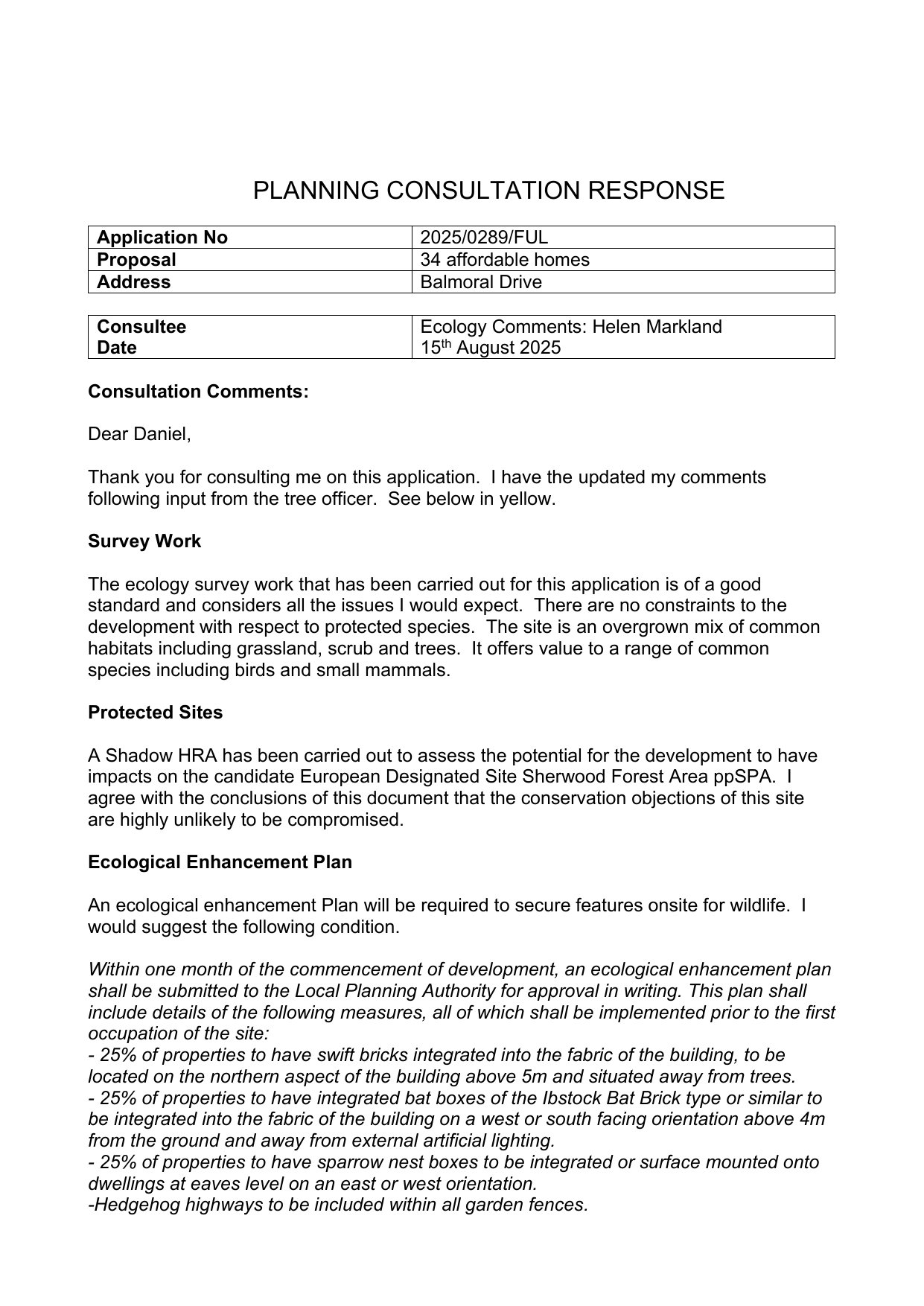
Ecology comments
CONSULTEE COMMENT
Not downloaded · Council link
Ecology comments
CONSULTEE COMMENT
Not downloaded · Council link
Energy and sustainability statement
SUPPORTING INFORMATION
Not downloaded · Council link
Env health comments
CONSULTEE COMMENT
Not downloaded · Council link
Env health comments
CONSULTEE COMMENT
Not downloaded · Council link
Env health comments
CONSULTEE COMMENT
Not downloaded · Council link
Env health comments
CONSULTEE COMMENT
Not downloaded · Council link
Environment agency comments
CONSULTEE COMMENT
Not downloaded · Council link
Environment agency comments
CONSULTEE COMMENT
Not downloaded · Council link
Existing site layout
DRAWING
Not downloaded · Council link
Flood risk assessment
SUPPORTING INFORMATION
Not downloaded · Council link
Flood risk management comments
CONSULTEE COMMENT
Not downloaded · Council link
Flood risk management comments
CONSULTEE COMMENT
Not downloaded · Council link
Flood risk management comments
CONSULTEE COMMENT
Not downloaded · Council link
Flood risk management comments
CONSULTEE COMMENT
Not downloaded · Council link
Habitat map
DRAWING
Not downloaded · Council link
Historic england
CONSULTEE COMMENT
Not downloaded · Council link
Historic england
CONSULTEE COMMENT
Not downloaded · Council link
Historic england comments
CONSULTEE COMMENT
Not downloaded · Council link
House types plans and elevations
DRAWING
Not downloaded · Council link
Impermeable area
DRAWING
Not downloaded · Council link
Mdc ecologist comments
CONSULTEE COMMENT
Not downloaded · Council link
Mdc ecologist comments
CONSULTEE COMMENT
Not downloaded · Council link
Mdc parks
CONSULTEE COMMENT
Not downloaded · Council link
Mdc parks comments
CONSULTEE COMMENT
Not downloaded · Council link
Mdc policy comments
CONSULTEE COMMENT
Not downloaded · Council link
Mdc policy comments
CONSULTEE COMMENT
Not downloaded · Council link
Natural england annex comments
CONSULTEE COMMENT
Not downloaded · Council link
Natural england comments
CONSULTEE COMMENT
Not downloaded · Council link
Natural england comments
CONSULTEE COMMENT
Not downloaded · Council link
Natural england comments
CONSULTEE COMMENT
Not downloaded · Council link
Natural england comments
CONSULTEE COMMENT
Not downloaded · Council link
Natural england comments
CONSULTEE COMMENT
Not downloaded · Council link
Natural england nightjar and woodlark advice
CONSULTEE COMMENT
Not downloaded · Council link
Ncc highways comments
CONSULTEE COMMENT
Not downloaded · Council link
Ncc highways comments
CONSULTEE COMMENT
Not downloaded · Council link
Ncc highways comments
CONSULTEE COMMENT
Not downloaded · Council link
Ncc highways comments
CONSULTEE COMMENT
Not downloaded · Council link
Ncc policy comments
CONSULTEE COMMENT
Not downloaded · Council link
Notts police comments
CONSULTEE COMMENT
Not downloaded · Council link
Notts police comments
CONSULTEE COMMENT
Not downloaded · Council link
Phase 1 geo-environmental site assessment
SUPPORTING INFORMATION
Not downloaded · Council link
Phase 1 geo-environmental site assessment - part 2
SUPPORTING INFORMATION
Not downloaded · Council link
Phase 1 geo-environmental site assessment - part 3
SUPPORTING INFORMATION
Not downloaded · Council link
Phase 1 geo-environmental site assessment - part 4
SUPPORTING INFORMATION
Not downloaded · Council link
Phase ii site appraisal
SUPPORTING INFORMATION
Not downloaded · Council link
Planning statement
SUPPORTING INFORMATION
Not downloaded · Council link
Planting plan, schedule and specification notes
DRAWING
Not downloaded · Council link
Planting plan, schedule and specification notes
DRAWING
Not downloaded · Council link
Planting plan, schedule and specification notes
DRAWING
Not downloaded · Council link
Post development plan
DRAWING
Not downloaded · Council link
Proposed cut and fill
DRAWING
Not downloaded · Council link
Proposed levels
DRAWING
Not downloaded · Council link
Proposed site access
DRAWING
Not downloaded · Council link
Proposed site sections and street scenes
DRAWING
Not downloaded · Council link
Railing details
DRAWING
Not downloaded · Council link
Response to highways comments
SUPPORTING INFORMATION
Not downloaded · Council link
Revised annex 1
SUPPORTING INFORMATION
Not downloaded · Council link
Revised annex 1: schedule of documents submitted with application
SUPPORTING INFORMATION
Not downloaded · Council link
Revised ecological appraisal
SUPPORTING INFORMATION
Not downloaded · Council link
Revised statutory biodiversity metric
SUPPORTING INFORMATION
Not downloaded · Council link
Schedule of documents submitted
SUPPORTING INFORMATION
Not downloaded · Council link
Shadow habitat regulations assessment
SUPPORTING INFORMATION
Not downloaded · Council link
Site layout - block plan
DRAWING
Not downloaded · Council link
Site layout - external works
DRAWING
Not downloaded · Council link
Site location plan
DRAWING
Archived copy · Council link
Statutory biodiversity metric
SUPPORTING INFORMATION
Not downloaded · Council link
Swept path analysis of large refuse vehicle
DRAWING
Not downloaded · Council link
The coal authority comments
CONSULTEE COMMENT
Not downloaded · Council link
Topographical survey sheet 1 of 1
DRAWING
Not downloaded · Council link
Transport statement
SUPPORTING INFORMATION
Not downloaded · Council link
Type a - 2b3p plans
DRAWING
Not downloaded · Council link
Viability assessment report
SUPPORTING INFORMATION
Not downloaded · Council link
Viability assessment report - non-technical summary
SUPPORTING INFORMATION
Not downloaded · Council link
Viability information-external works and drainage
SUPPORTING INFORMATION
Not downloaded · Council link