← Mansfield District Council

Status

Registered Change of use
Received
11 Dec 2025
New homes
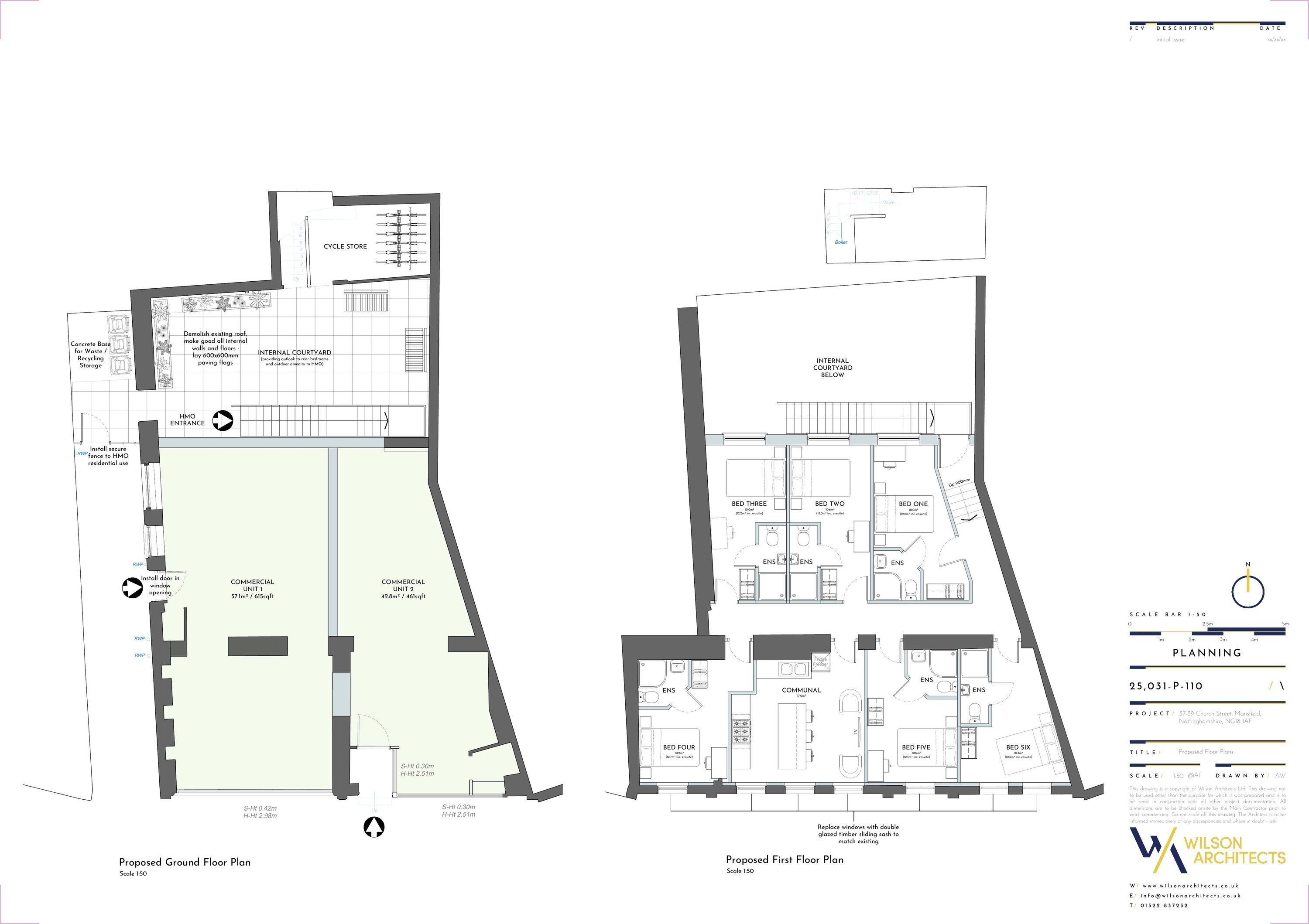
6

Full proposal

SUBDIVISION INTO 2 NO. COMMERCIAL UNITS, CONVERSION OF FIRST FLOOR TO 6 BED HMO, PARTIAL DEMOLITION AND REAR EXTENSION.

Documents

DRAWING
Archived · Original link
DRAWING
Archived · Original link
SUPPORTING INFORMATION
Archived · Original link
SUPPORTING INFORMATION
Archived · Original link
DRAWING
Archived · Original link
SUPPORTING INFORMATION
Archived · Original link
DRAWING
Archived · Original link
DRAWING
Archived · Original link

Have your say

Your comment matters. Councils must consider every representation that raises material planning considerations.

Write a comment