← Mansfield District Council

Status

Registered Change of use
Received
Last month
New homes
0

Full proposal

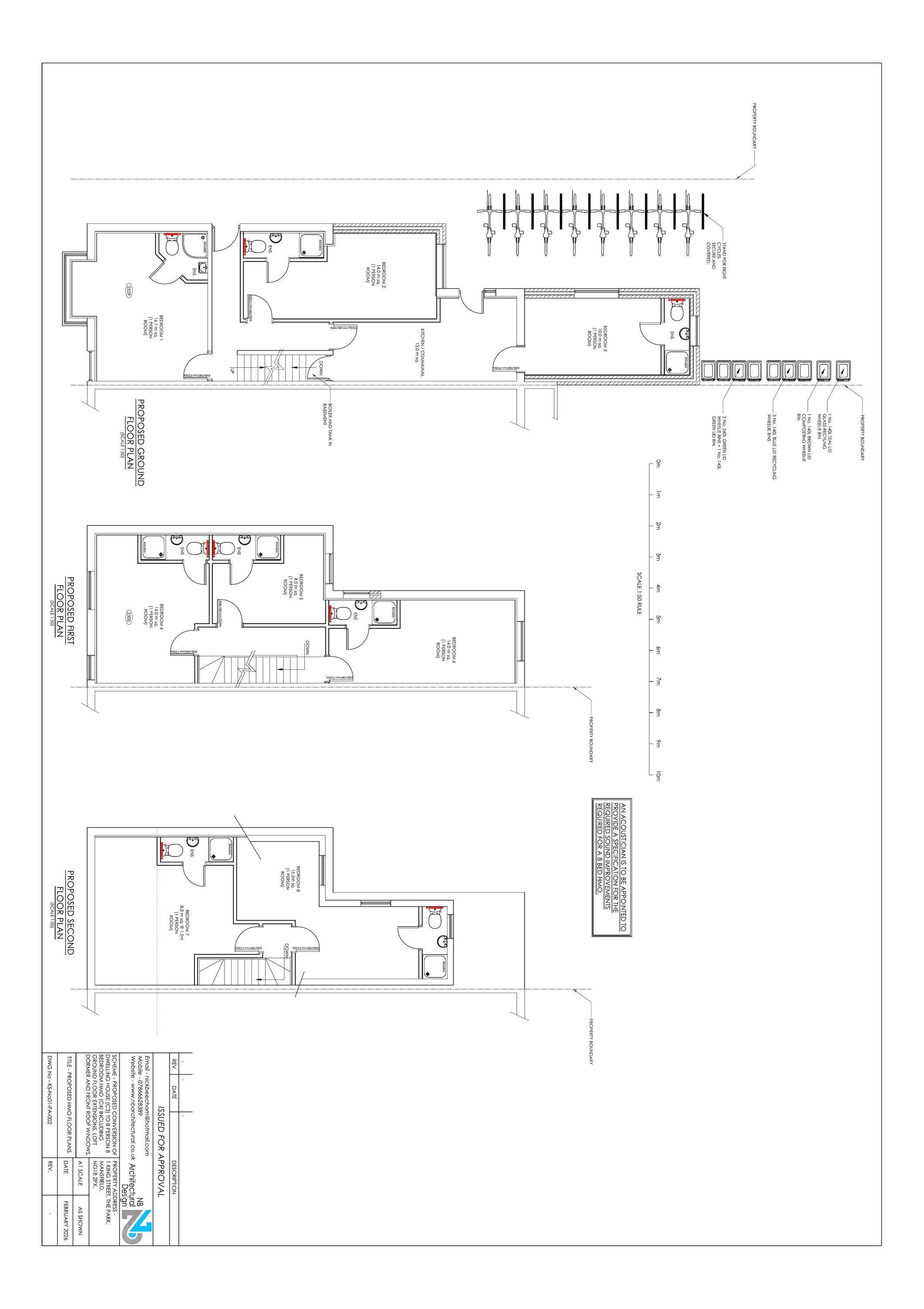
CONVERSION OF DWELLING HOUSE (PLANNING USE CLASS C3) TO 8 PERSON 8 BEDROOM HMO (PLANNING USE CLASS SUI GENERIS) INCLUDING GROUND FLOOR EXTENSIONS, LOFT DORMERS TO REAR AND FRONT ROOF WINDOWS.

Documents

Application form - without personal data
APPLICATION FORM
Not yet archived · Original link
Design and access statement
SUPPORTING INFORMATION
Not yet archived · Original link
Existing and proposed elevations and block plan
DRAWING
Not yet archived · Original link
Mdc env health
CONSULTEE COMMENT
Not yet archived · Original link
Ncc highways comments
CONSULTEE COMMENT
Not yet archived · Original link
Notts police comments
CONSULTEE COMMENT
Not yet archived · Original link
Planning statement
SUPPORTING INFORMATION
Not yet archived · Original link
Planning statement
SUPPORTING INFORMATION
Not yet archived · Original link
DRAWING
Archived · Original link

Have your say

Your comment matters. Councils must consider every representation that raises material planning considerations.

Write a comment