← Mansfield District Council

Status

Registered House extension
Received
Last month
New homes
0

Full proposal

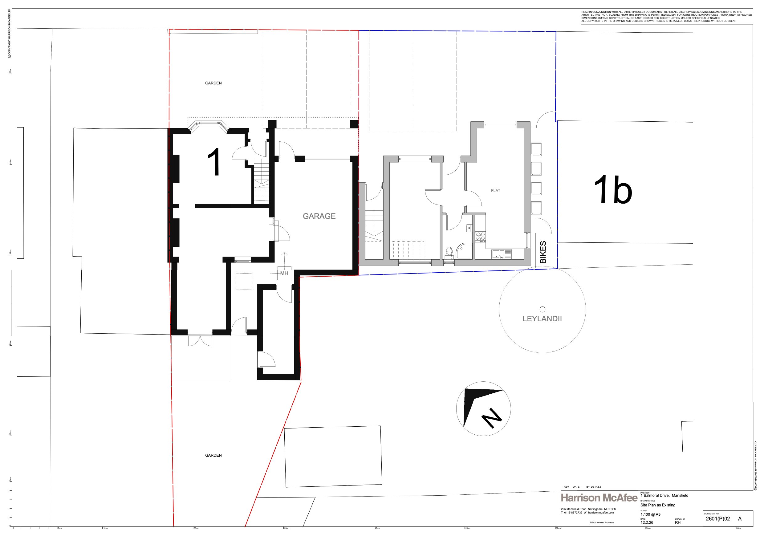
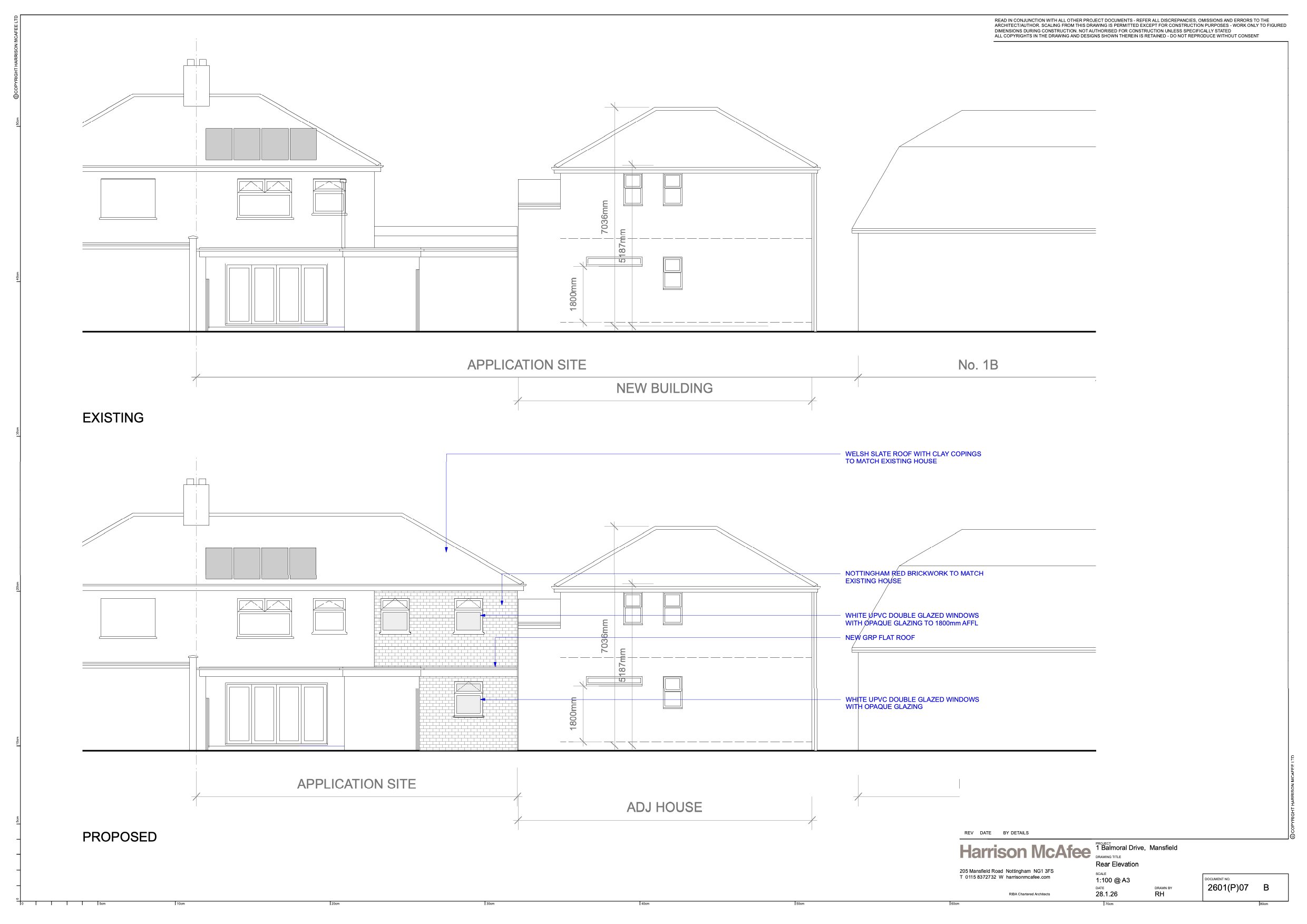
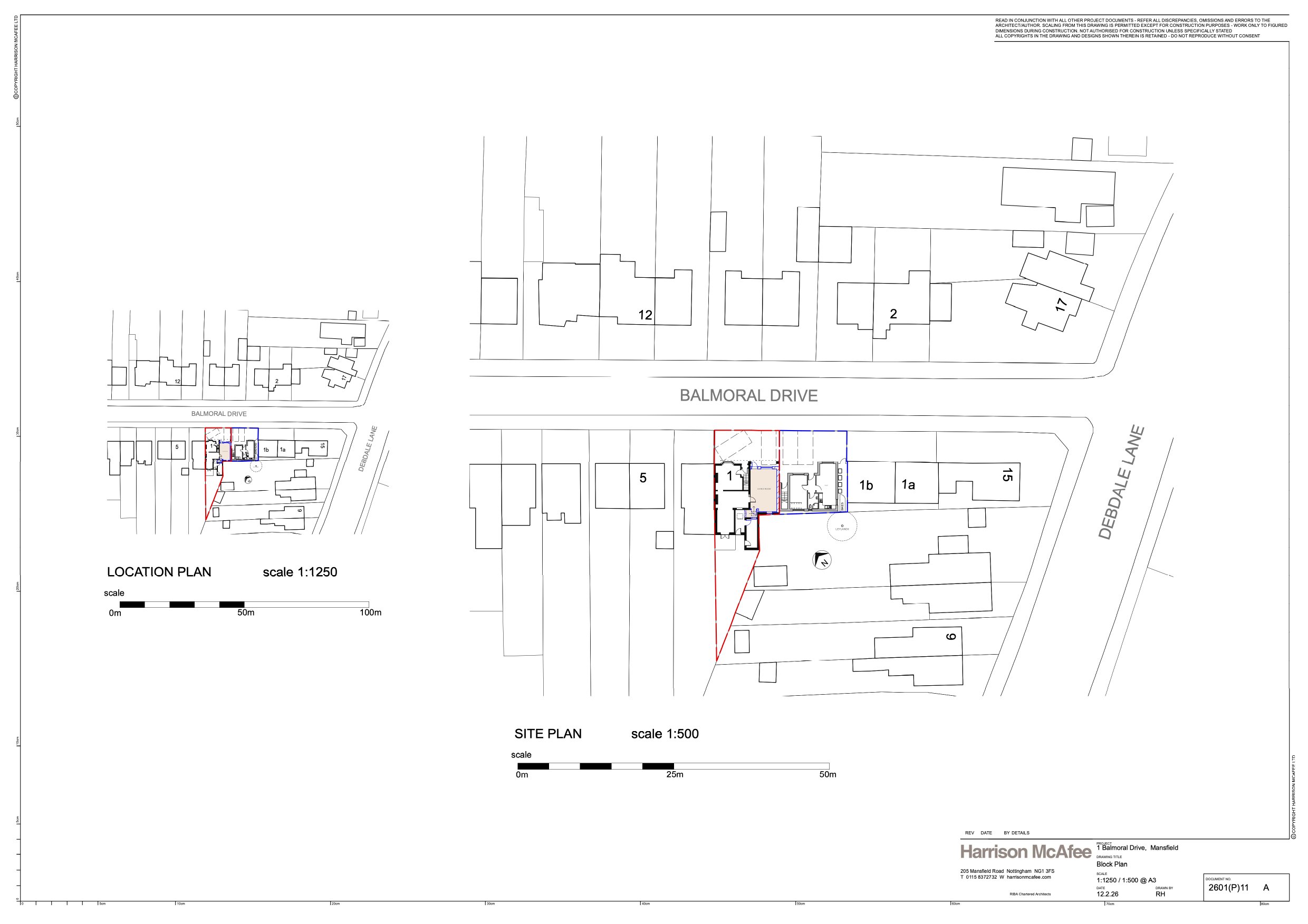
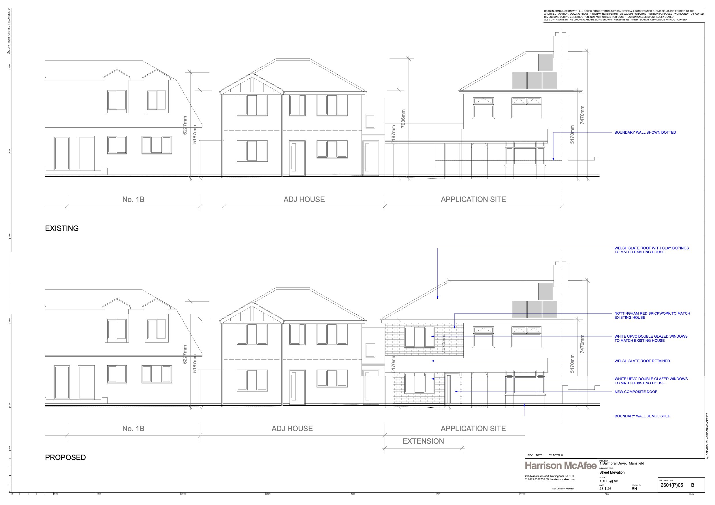
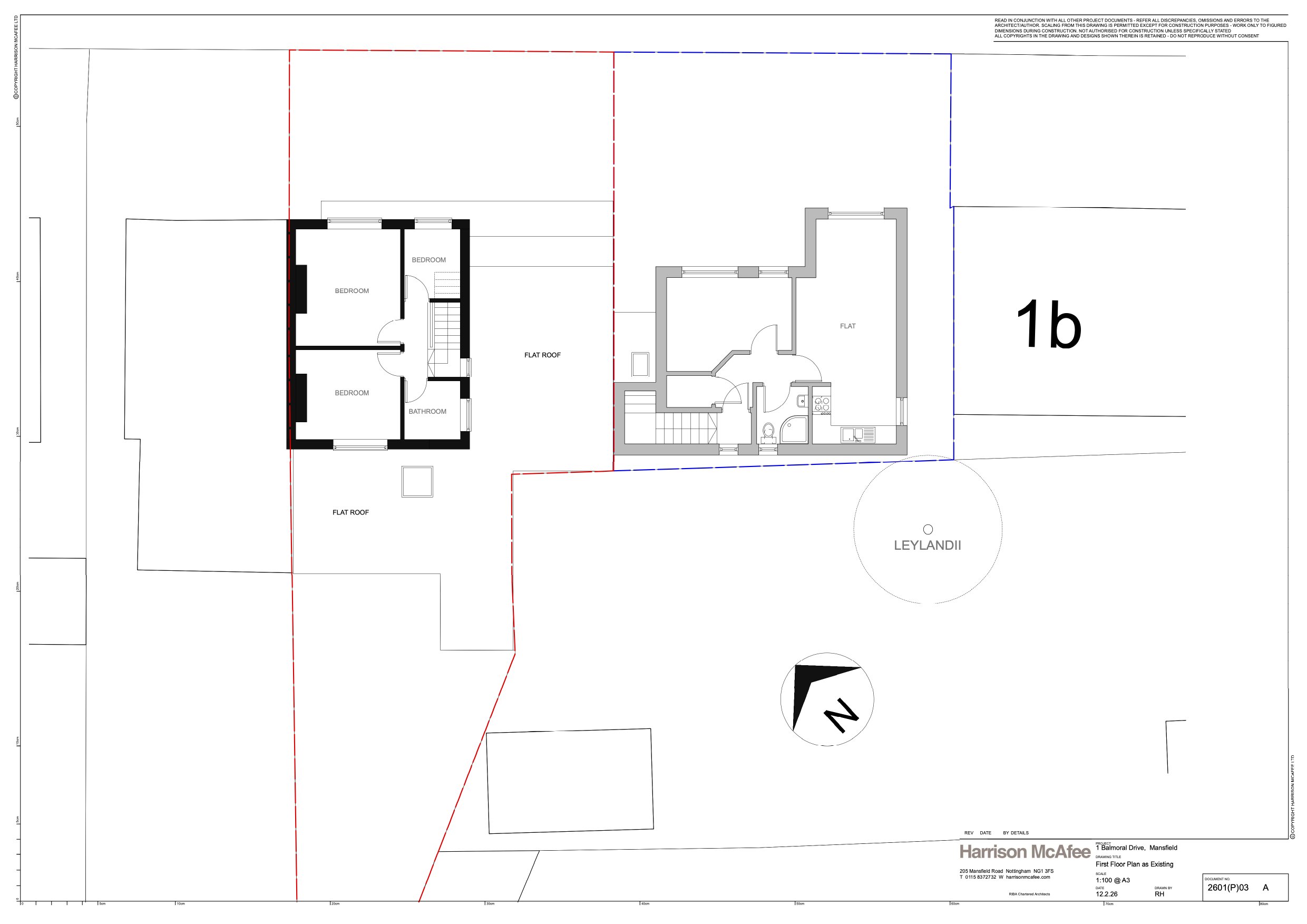
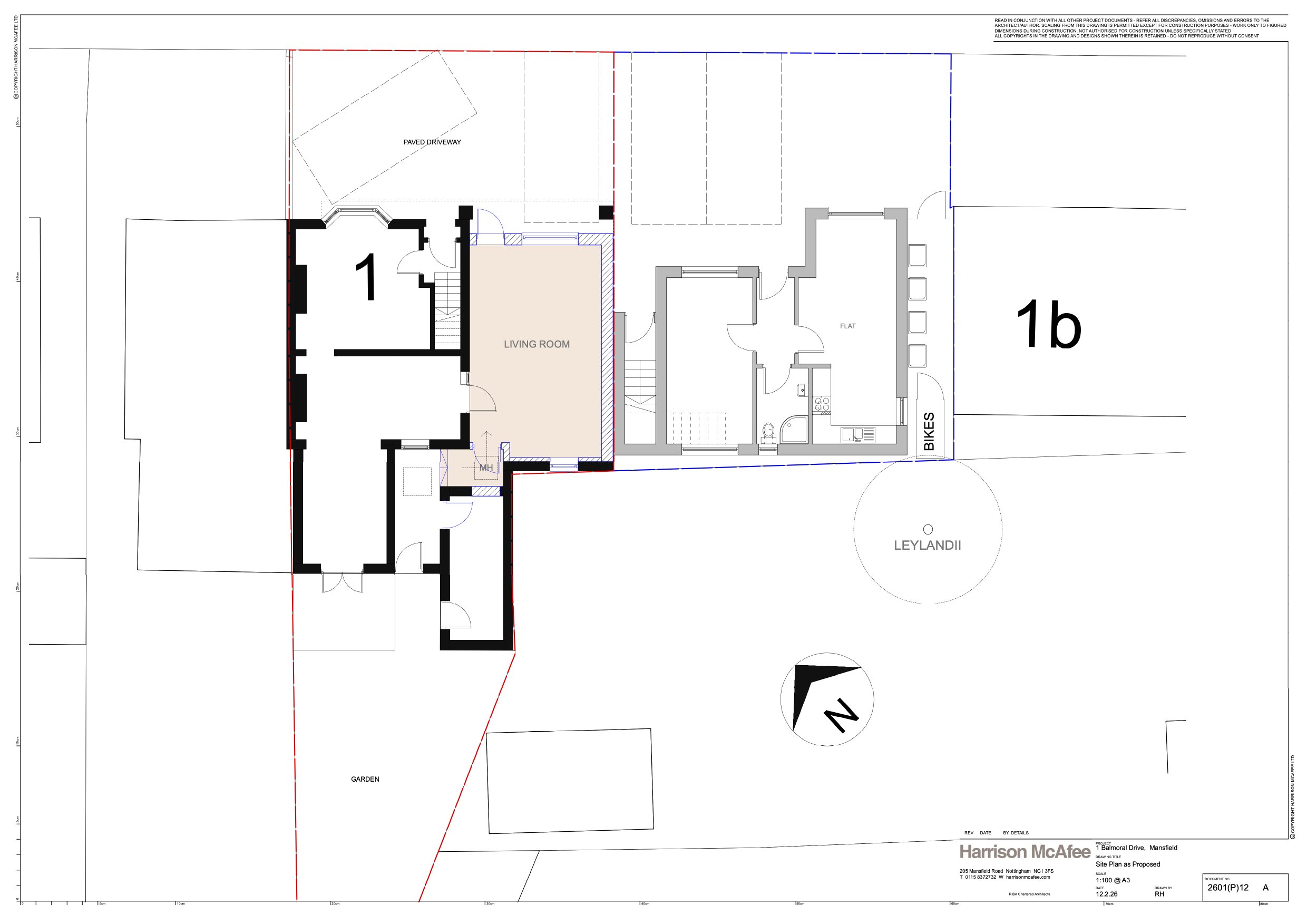
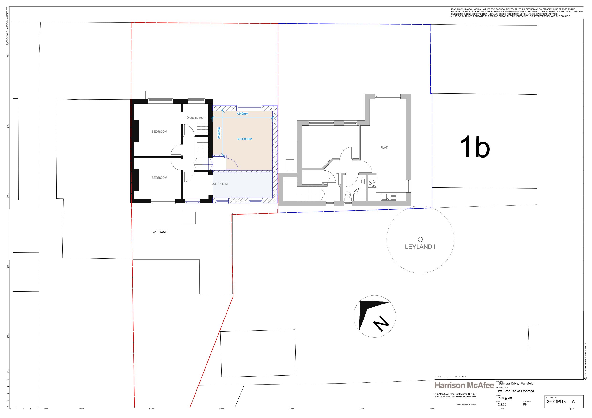
FIRST FLOOR SIDE EXTENSION, CONVERSION OF THE ATTACHED GARAGE INTO A HABITABLE ROOM AND ALTERATION OF SITE FRONTAGE TO CREATE NEW DRIVEWAY

Have your say

Your comment matters. Councils must consider every representation that raises material planning considerations.

Write a comment