← Back to Merthyr Tydfil County Borough Council
Application
P/24/0228
Merthyr Tydfil County Borough Council · IDOX
Status
Unknown
Received
n/a
New dwellings
n/a
What you can do
Take Action
Make your voice heard. Authorities need to hear from people who support new homes.
Full Proposal
Two storey rear extension to provide 4 self contained flats
Detail pages
- View live detail on council site
- No archived detail page available.
Documents
An Ecological Survey Report
(Revision 1)
Reports
Not downloaded
· Council link
Application Form
Application Form
Not downloaded
· Council link
Engineering and Highways
Consultation Response Public Access
Not downloaded
· Council link
Environmental Health
Consultation Response Public Access
Not downloaded
· Council link
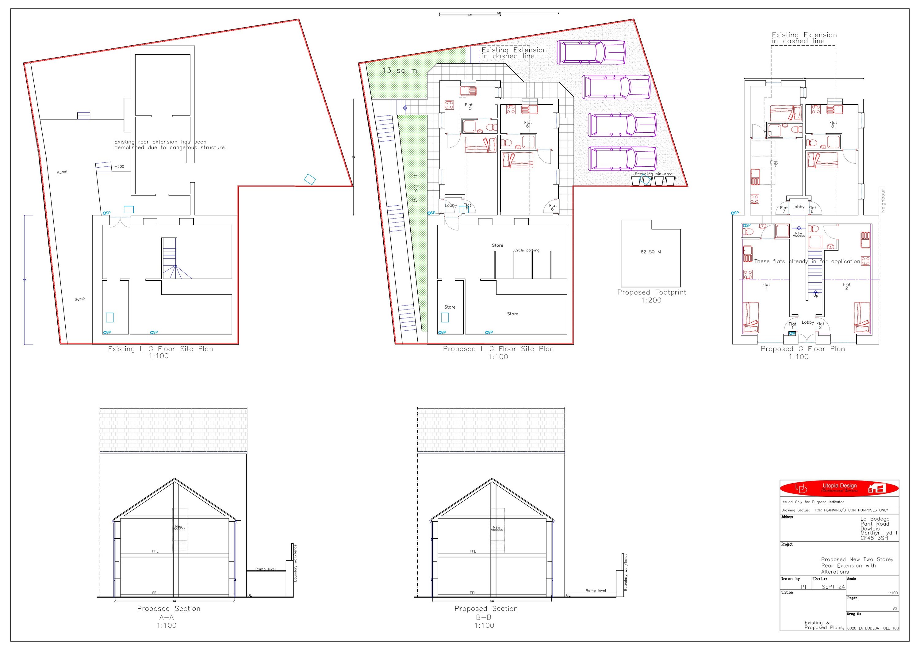
Existing & Proposed Plans
Cancelled Plans/Details
Archived copy
· Council link
Archived copy
· Council link
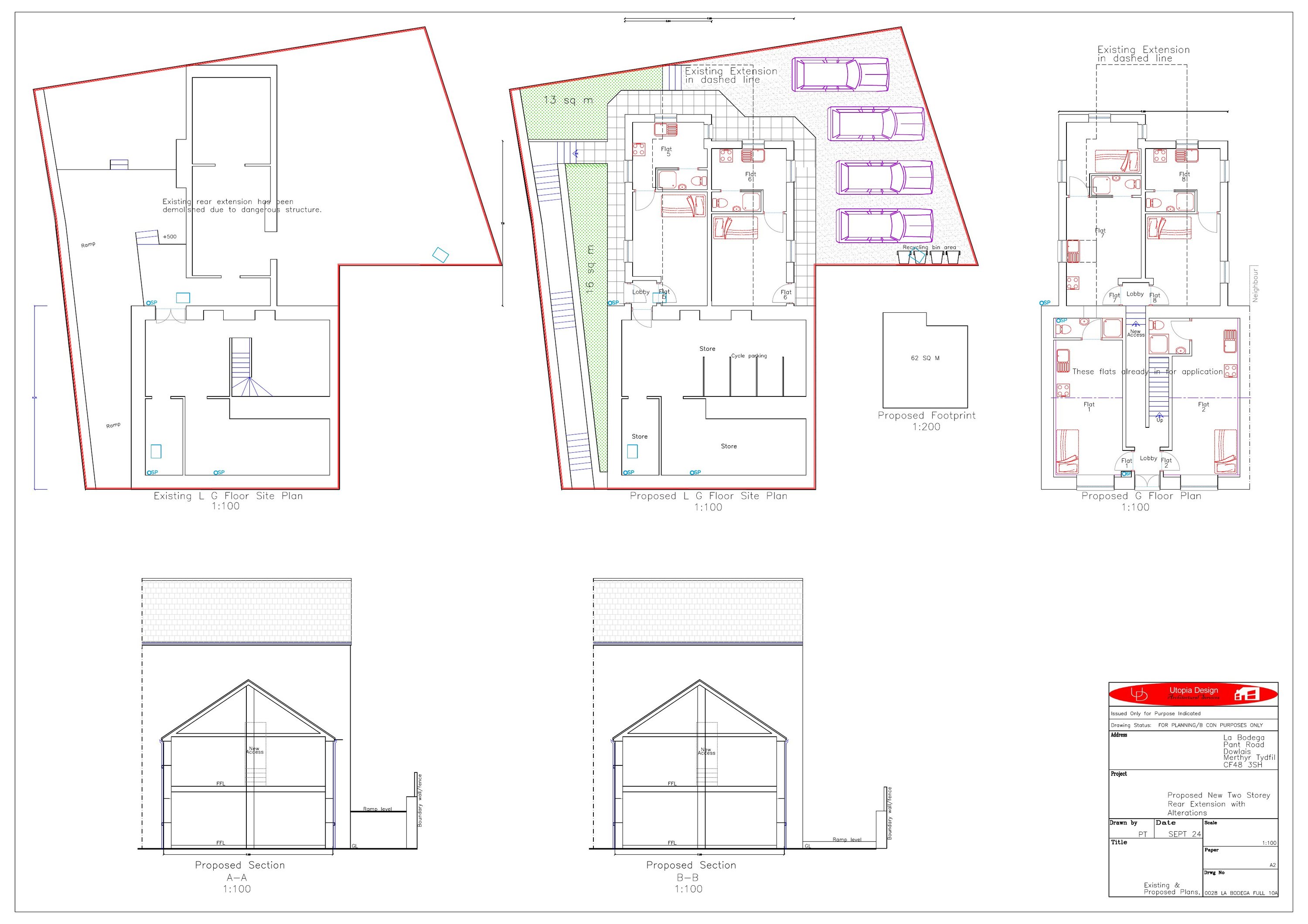
Existing & Proposed Plans
Drawing No. 0028 LA BODEGA FULL 10B
Received 7 Jan 25
Cancelled Plans/Details
Archived copy
· Council link
Existing Plans and Elevations
Submitted Plan
Not downloaded
· Council link
Planning Policy comments
Consultation Response Public Access
Not downloaded
· Council link
Proposed Block Plan
Cancelled Plans/Details
Not downloaded
· Council link
Proposed Block Plan
Drawing No. 0028 LA BODEGA FULL 08A
Received 7 Jan 25
Amended Plans
Not downloaded
· Council link
Proposed Block Plan
Drawing No. 0028 LA BODEGA FULL 08A
Received 7 Jan 25
Cancelled Plans/Details
Not downloaded
· Council link
Proposed Sections
Cancelled Plans/Details
Not downloaded
· Council link
Proposed Sections
Drawing No: 0028 LA BODEGA FULL 7A
Received 7 Jan 25
Amended Plans
Not downloaded
· Council link
Proposed Sections, Elevations and Location Plan
Cancelled Plans/Details
Not downloaded
· Council link
Proposed Sections, Elevations and Location Plan
Drawing No. 0028 LA BODEGA FULL 09C
Received 7 Jan 25
Amended Plans
Not downloaded
· Council link
Proposed Sections, Elevations and Location Plan
Drawing No. 0028 LA BODEGA FULL 09C
Received 7 Jan 25
Cancelled Plans/Details
Not downloaded
· Council link
SWFRS
Consultation Response Public Access
Not downloaded
· Council link
Welsh Water
Consultation Response Public Access
Not downloaded
· Council link