← Back to Merthyr Tydfil County Borough Council
Application
P/25/0151
Merthyr Tydfil County Borough Council · IDOX
Status
Unknown
House extension
Received
n/a
New dwellings
0
What you can do
Take Action
Make your voice heard. Authorities need to hear from people who support new homes.
Summary
Erection of residential annexe, demolition of garage and extension for replacement garage.
Full Proposal
Erection of residential annexe demolition of existing garage and erection of extension to accommodate replacement garage
Detail pages
- View live detail on council site
- No archived detail page available.
Documents
Andrew Taylor/Parks
Consultation Response Public Access
Not downloaded
· Council link
Application Form
Application Form
Not downloaded
· Council link
Decision Notice
Decision Notice
Not downloaded
· Council link
Delegated Report
Delegated Report
Not downloaded
· Council link
Ecologist comments
Consultation Response Public Access
Not downloaded
· Council link
Ecologist comments
Consultation Response Public Access
Not downloaded
· Council link
Ecologist Memo 3
Consultation Response Public Access
Not downloaded
· Council link
Ecology Technical Note
Cancelled Document
Not downloaded
· Council link
Ecology Technical Note
Approved with Conditions 23.09.25
Approved Reports/Supp Info
Not downloaded
· Council link
Engineering and Highways
Consultation Response Public Access
Not downloaded
· Council link
Enviornmental Health
Consultation Response Public Access
Not downloaded
· Council link
Existing Block Plan
Drawing Number PL11
Submitted Plan
Not downloaded
· Council link
Existing Elevations
Drawing Number PL03
Submitted Plan
Not downloaded
· Council link
Existing Plans
Drawing Number PL02
Submitted Plan
Not downloaded
· Council link
Green Infrastructure Statement
Reports
Not downloaded
· Council link
GREEN INFRASTRUCTURE STATEMENT
Cancelled Document
Not downloaded
· Council link
NRW
Consultation Response Public Access
Not downloaded
· Council link
Planning Policy
Consultation Response Public Access
Not downloaded
· Council link
Planning Statement
Reports
Not downloaded
· Council link
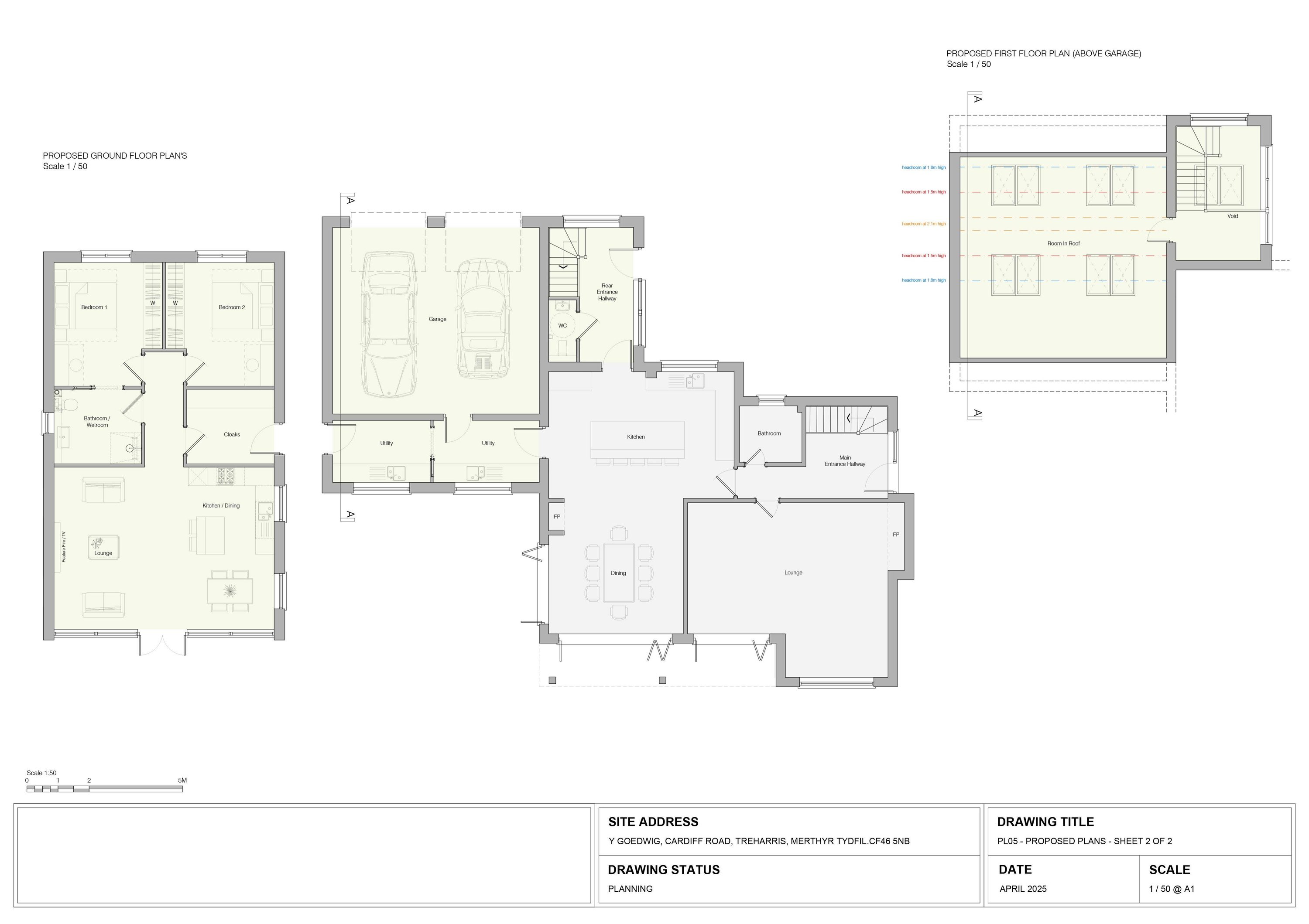
Proposed Elevations Annex
Drawing Number PL10
Approved with Conditions 23.09.25
Approved Plan
Not downloaded
· Council link
Proposed Elevations (Sheet 1 of 2)
Drawing Number PL06
Approved with Conditions 23.09.25
Approved Plan
Not downloaded
· Council link
Proposed Elevations (Sheet 2 of 2)
Drawing Number PL07
Approved with Conditions 23.09.25
Approved Plan
Not downloaded
· Council link
Archived copy
· Council link
Archived copy
· Council link
Proposed Site Plan
Drawing Number PL01
Cancelled Plans/Details
Archived copy
· Council link
Archived copy
· Council link
Proposed Street Scene
Drawing Number PL08
Approved with Conditions 23.09.25
Approved Plan
Not downloaded
· Council link
Site Location Plan
Drawing Number LP01
Submitted Plan
Archived copy
· Council link