← Merthyr Tydfil County Borough Council
P/25/0159
Merthyr Tydfil County Borough Council
Status
Unknown
New housing
Received
Not recorded
New homes
2
Full proposal
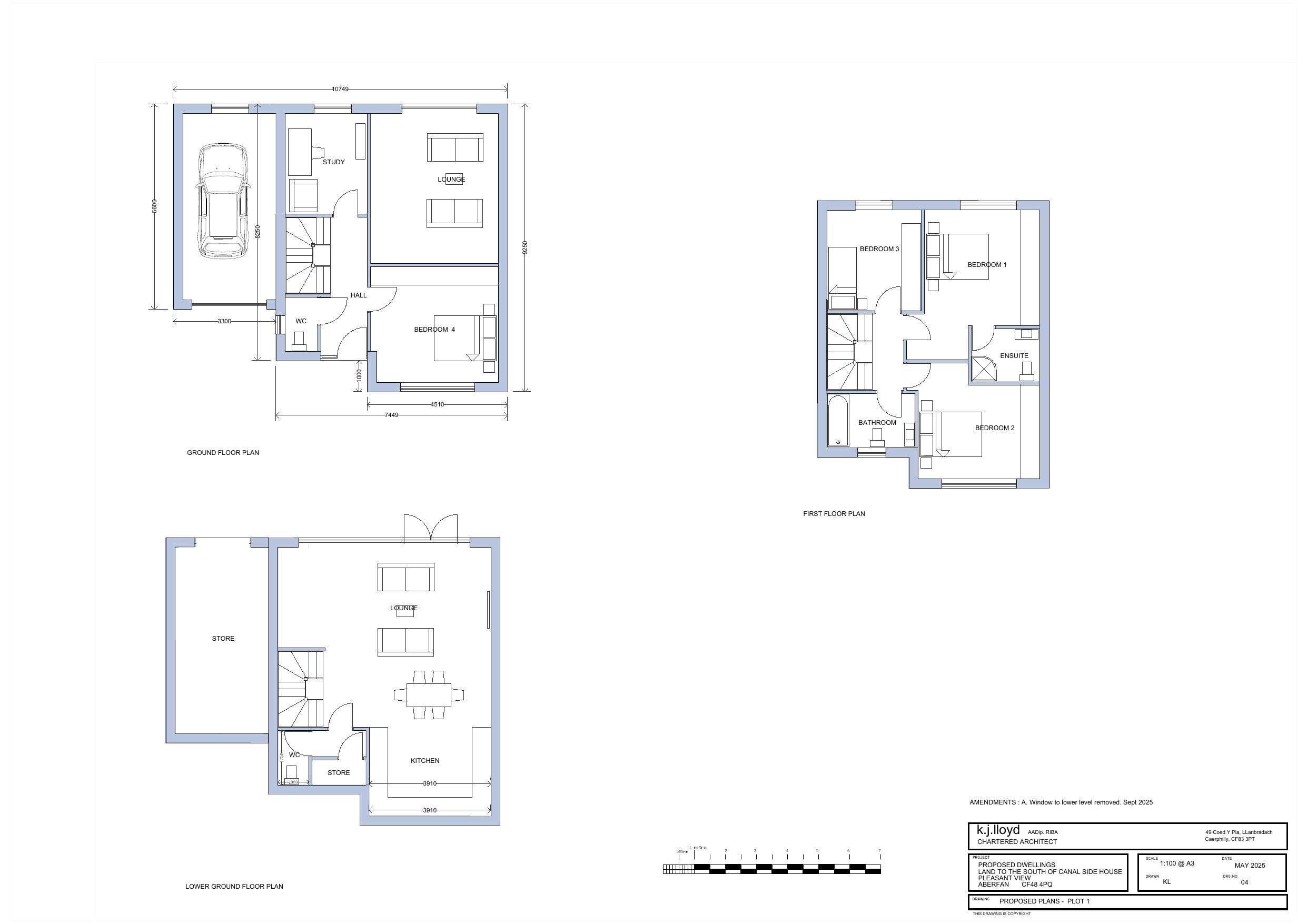
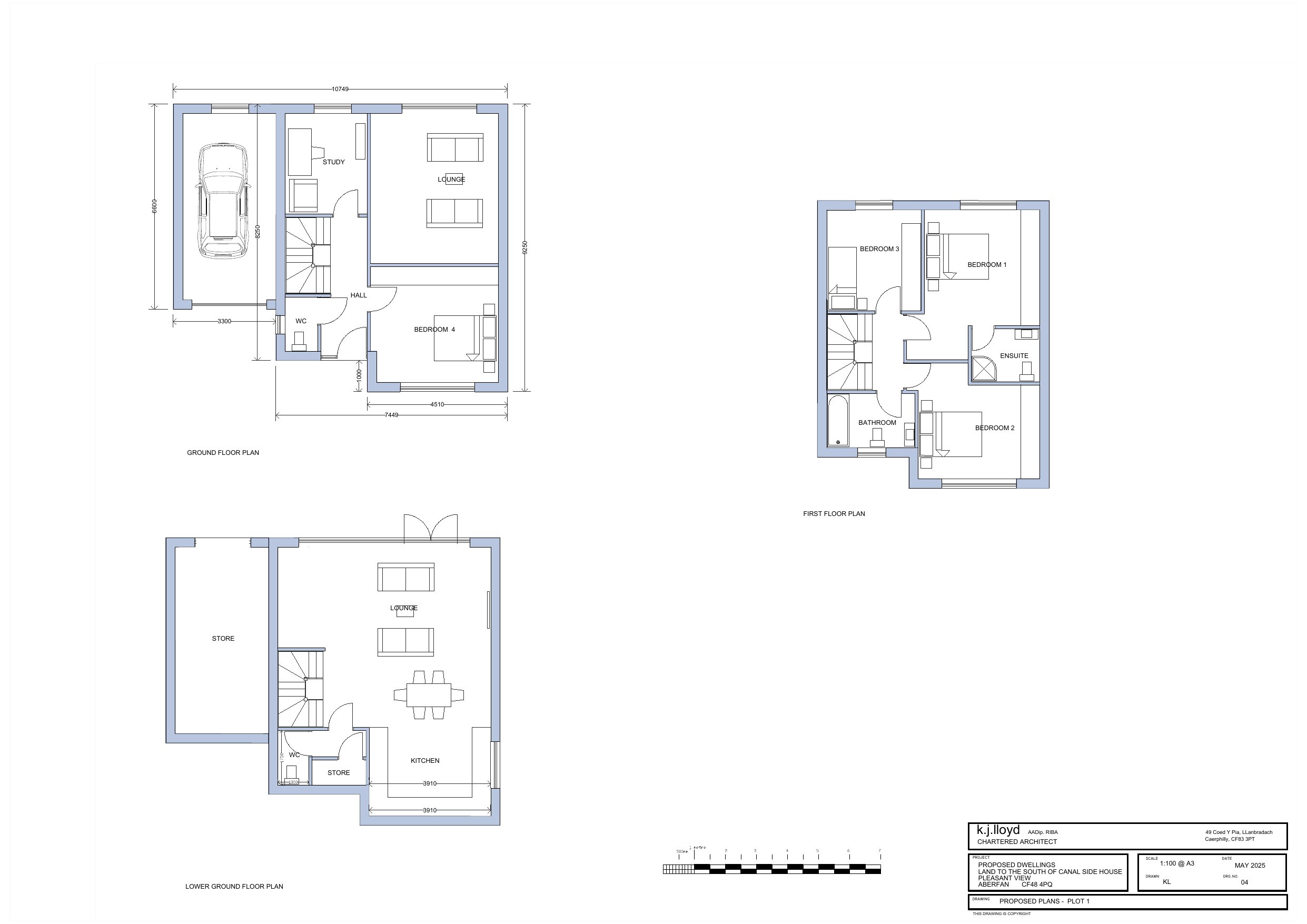
Erection of 2 no. detached dwellings
Documents
Proposed elevations sheet 1 of 2
Drawing No. 02
Cancelled Plans/Details
Not yet archived
· Original link
Proposed elevations sheet 1 of 2
Drawing No. 02
Cancelled Plans/Details
Not yet archived
· Original link
Proposed elevations sheet 2 of 2
Drawing No. 03
Cancelled Plans/Details
Not yet archived
· Original link
Proposed elevations sheet 2 of 2
Drawing No. 03
Cancelled Plans/Details
Not yet archived
· Original link
Have your say
Your comment matters. Councils must consider every representation that raises material planning considerations.