← Merthyr Tydfil County Borough Council

Status

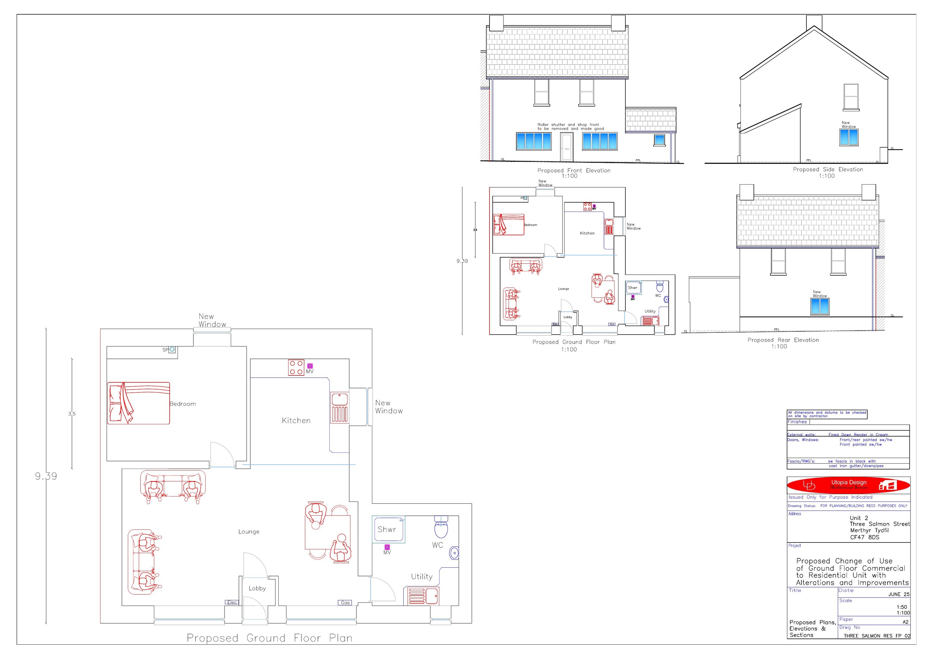
Unknown Change of use
Received
Not recorded
New homes
1

Full proposal

Change of use of ground floor to a residential unit with associated external alterations

Documents

Application Form
Application Form
Not yet archived · Original link
Cancelled 03.09.25
Decision Notice Cancelled
Not yet archived · Original link
Delegated Report
Delegated Report
Not yet archived · Original link
NRW
Consultation Response Public Access
Not yet archived · Original link
OS plan
Submitted Plan
Not yet archived · Original link
Planning Policy
Consultation Response Public Access
Not yet archived · Original link
updated /a
Decision Notice
Not yet archived · Original link
Welsh Water
Consultation Response Public Access
Not yet archived · Original link

Have your say

Your comment matters. Councils must consider every representation that raises material planning considerations.

Write a comment