← Merthyr Tydfil County Borough Council

Status

Unknown Change of use
Received
Not recorded
New homes
1

Full proposal

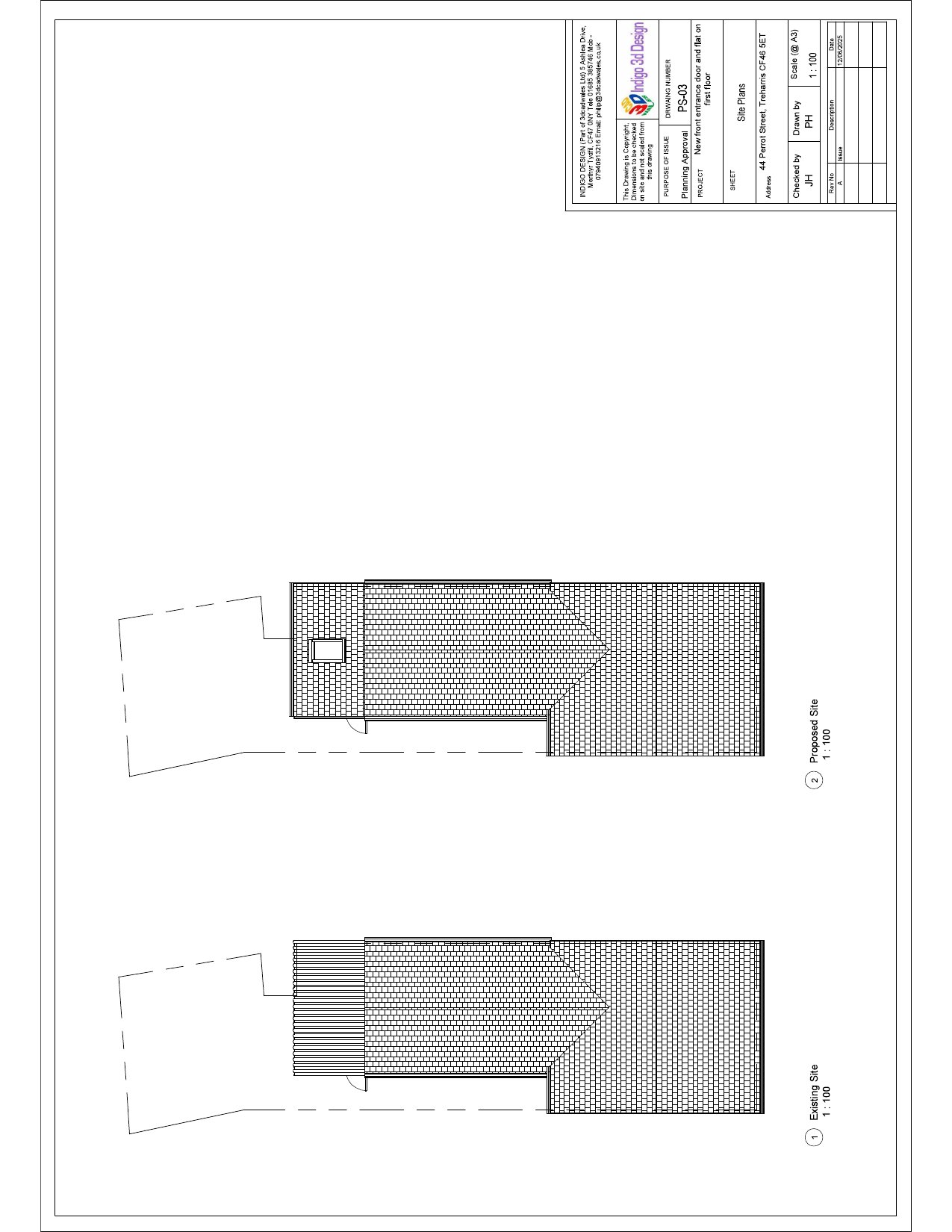
New door to front of shop to access first floor, change of use of first floor to flat

Documents

Application Form
Application Form
Not yet archived · Original link
Decision Notice
Decision Notice
Not yet archived · Original link
Delegated Report
Delegated Report
Not yet archived · Original link
Existing Plans and Elevations Drawing No. PS-01
Submitted Plan
Not yet archived · Original link
Illustrations Drawing No. PS-04
Submitted Plan
Not yet archived · Original link
Location Plan
Submitted Plan
Not yet archived · Original link
Plans and elevations PS-02 Rev C Date Approved with Conditions 19.08.25
Approved Plan
Not yet archived · Original link
Submitted Plan
Archived · Original link

Have your say

Your comment matters. Councils must consider every representation that raises material planning considerations.

Write a comment