← Merthyr Tydfil County Borough Council

Status

Unknown Change of use
Received
Not recorded
New homes
0

Full proposal

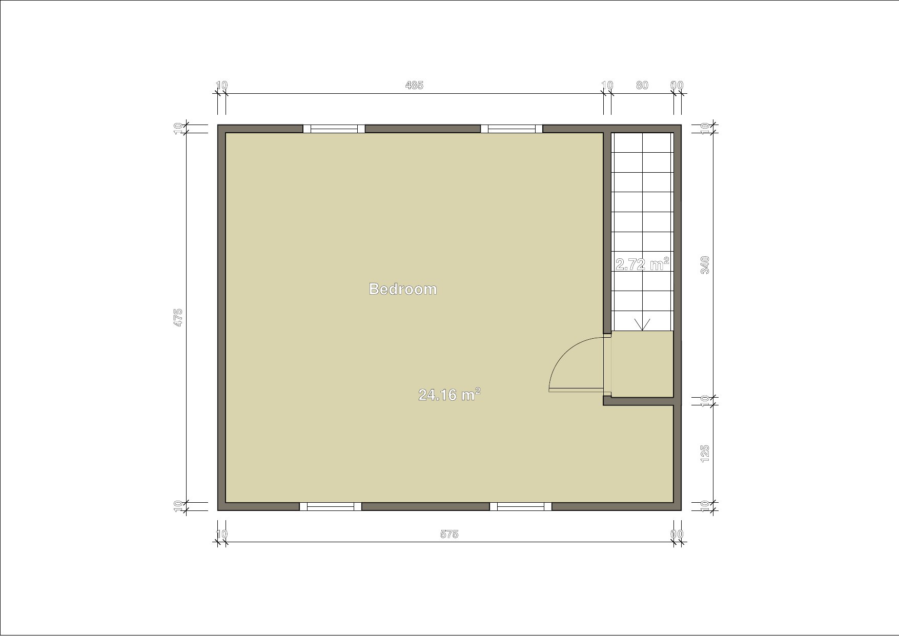
Change of use from dwelling (C3) to small HMO (C4)

Documents

Amended Plans
Archived · Original link
Application Form
Archived · Original link
Fire Safety
Consultation Response Public Access
Not yet archived · Original link
Submitted Plan
Archived · Original link
Submitted Plan
Archived · Original link
Highway obs
Consultation Response Public Access
Not yet archived · Original link
Housing
Consultation Response Public Access
Not yet archived · Original link
Submitted Plan
Archived · Original link
policy obs
Consultation Response Public Access
Not yet archived · Original link
Submitted Plan
Archived · Original link
South Wales Police
Consultation Response Public Access
Not yet archived · Original link
Consultation Response Public Access
Archived · Original link

Have your say

Your comment matters. Councils must consider every representation that raises material planning considerations.

Write a comment