26/00038/FULL
Mid Devon District Council
Status
Awaiting decision
House extension
Received
Not recorded
New homes
0
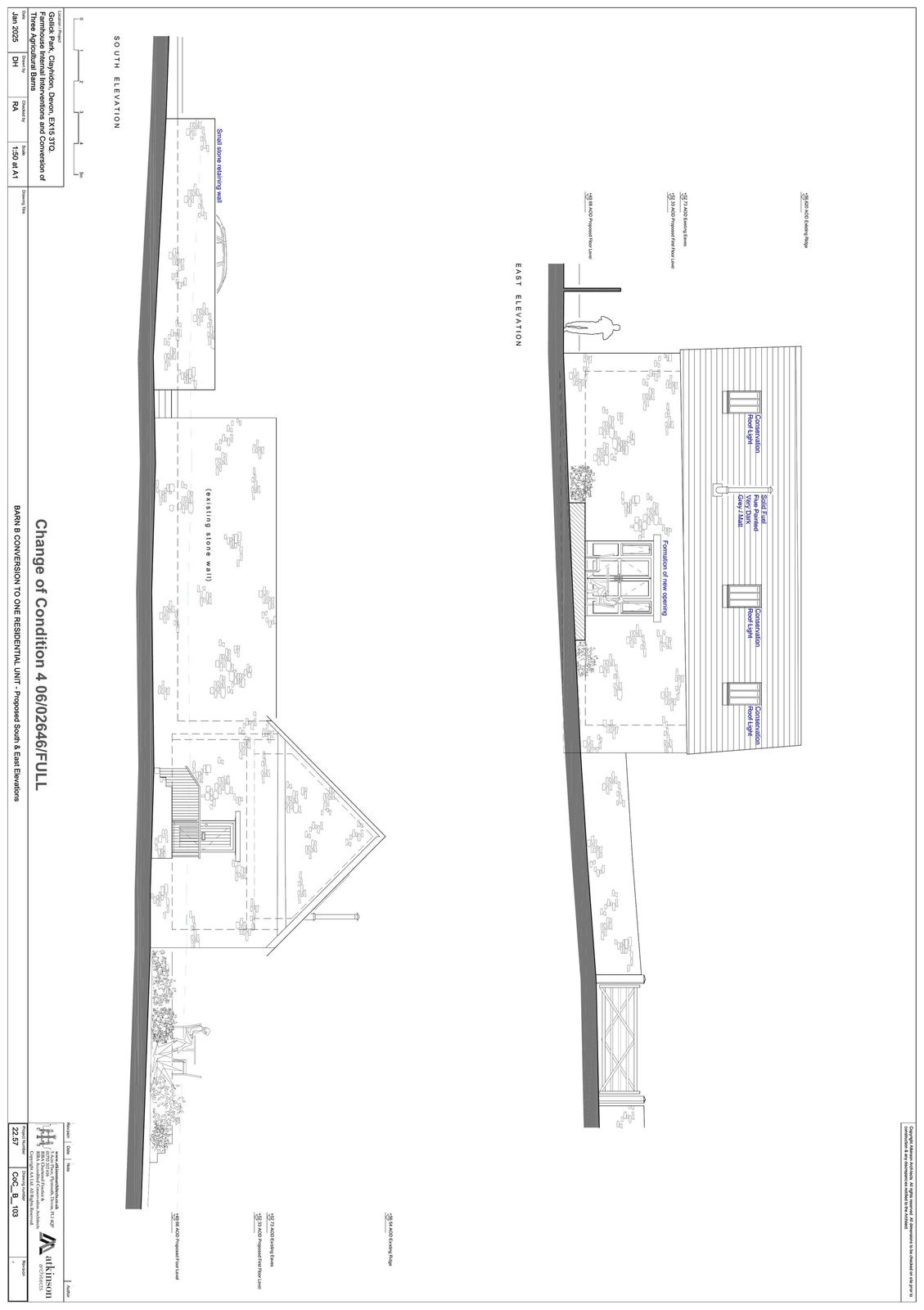
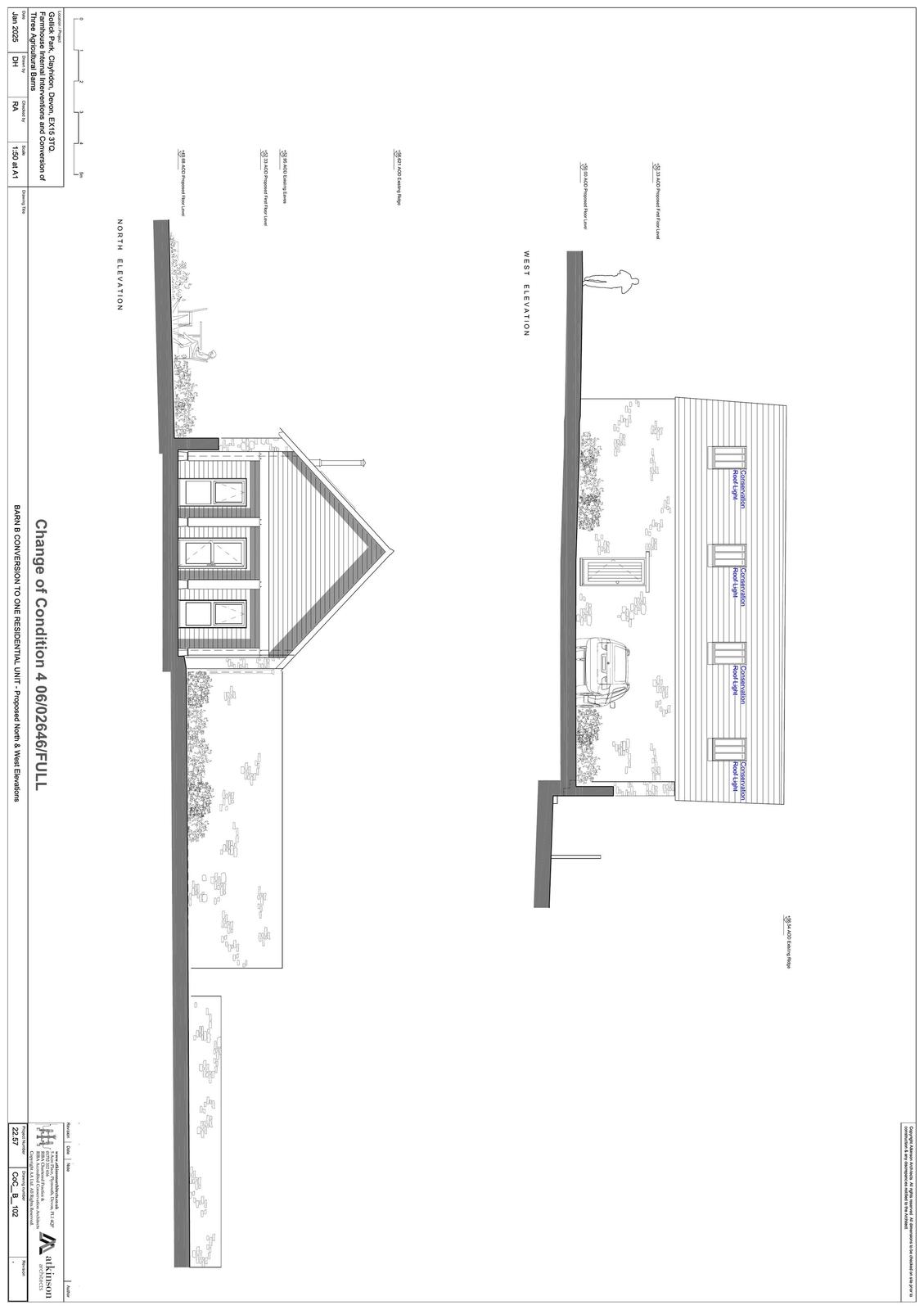
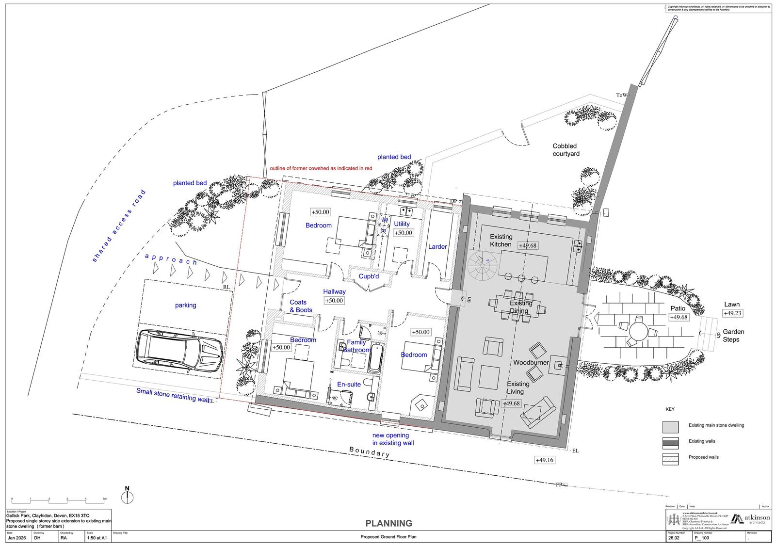
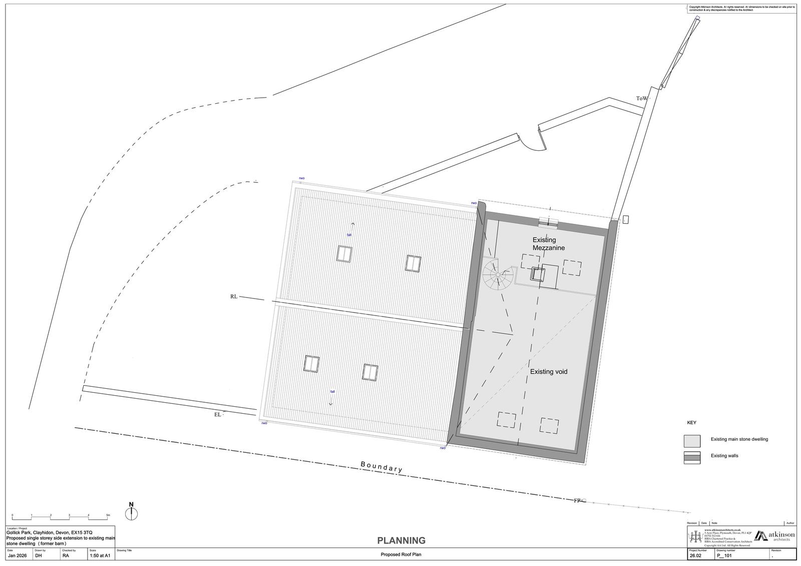
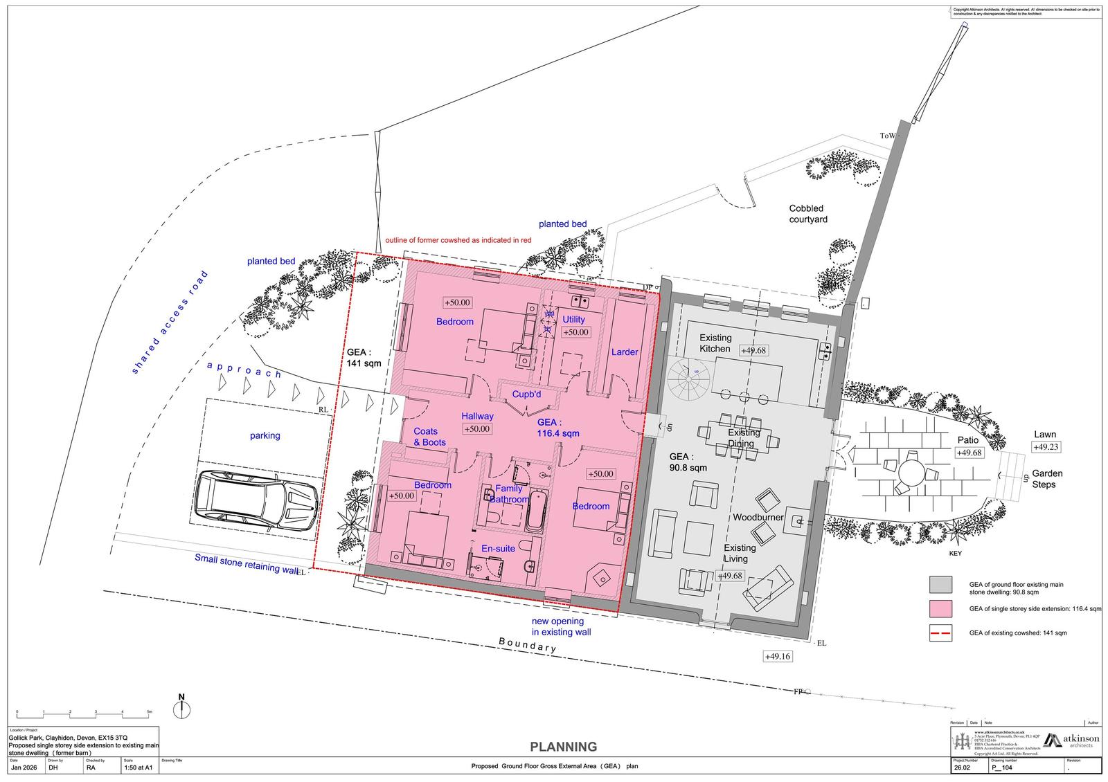
Full proposal
Erection of single storey side extension
Documents
Have your say
Your comment matters. Councils must consider every representation that raises material planning considerations.