← Mid Devon District Council

Status

Awaiting decision Change of use
Received
Not recorded
New homes
0

Full proposal

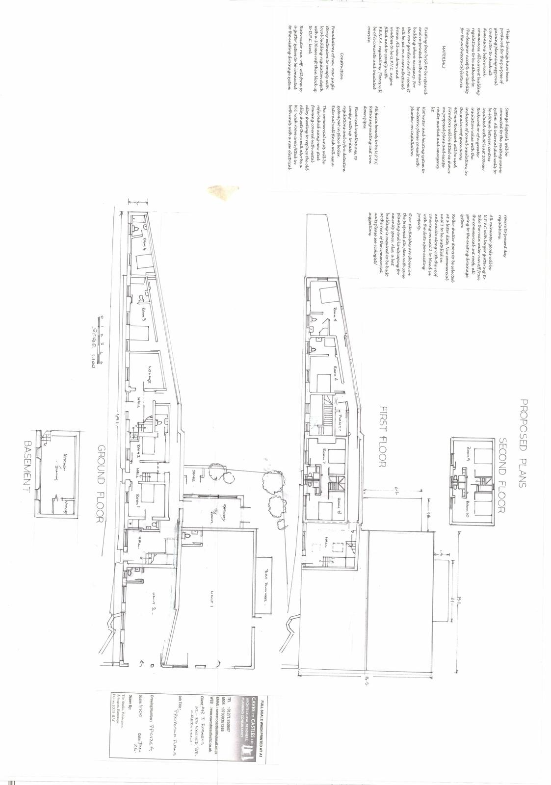
Change of use of existing warehouse buildings to a House in Multiple Occupation (Use Class C4), including a single-storey rear extension, refurbishment of two commercial units, and provision of amenity space, parking, and turning facilities

Documents

Supporting Information
Archived · Original link
Application Form
Archived · Original link
BNG
Archived · Original link
BNG Metric
BNG
Not yet archived · Original link
Supporting Information
Archived · Original link
Consultee Comment
Archived · Original link
Supporting Information
Archived · Original link
Supporting Information
Archived · Original link
Proposed Plan
Archived · Original link
Existing Plan
Archived · Original link
Supporting Information
Archived · Original link
Proposed Plan
Archived · Original link
Existing Plan
Archived · Original link
Consultee Comment
Archived · Original link
Consultee Comment
Archived · Original link
Support Comment
Archived · Original link
Site Location Plan
Archived · Original link
Proposed Plan
Archived · Original link
Supporting Information
Archived · Original link

Have your say

Your comment matters. Councils must consider every representation that raises material planning considerations.

Write a comment