← Mid Devon District Council

Status

Awaiting decision House extension
Received
Not recorded
New homes
0

Full proposal

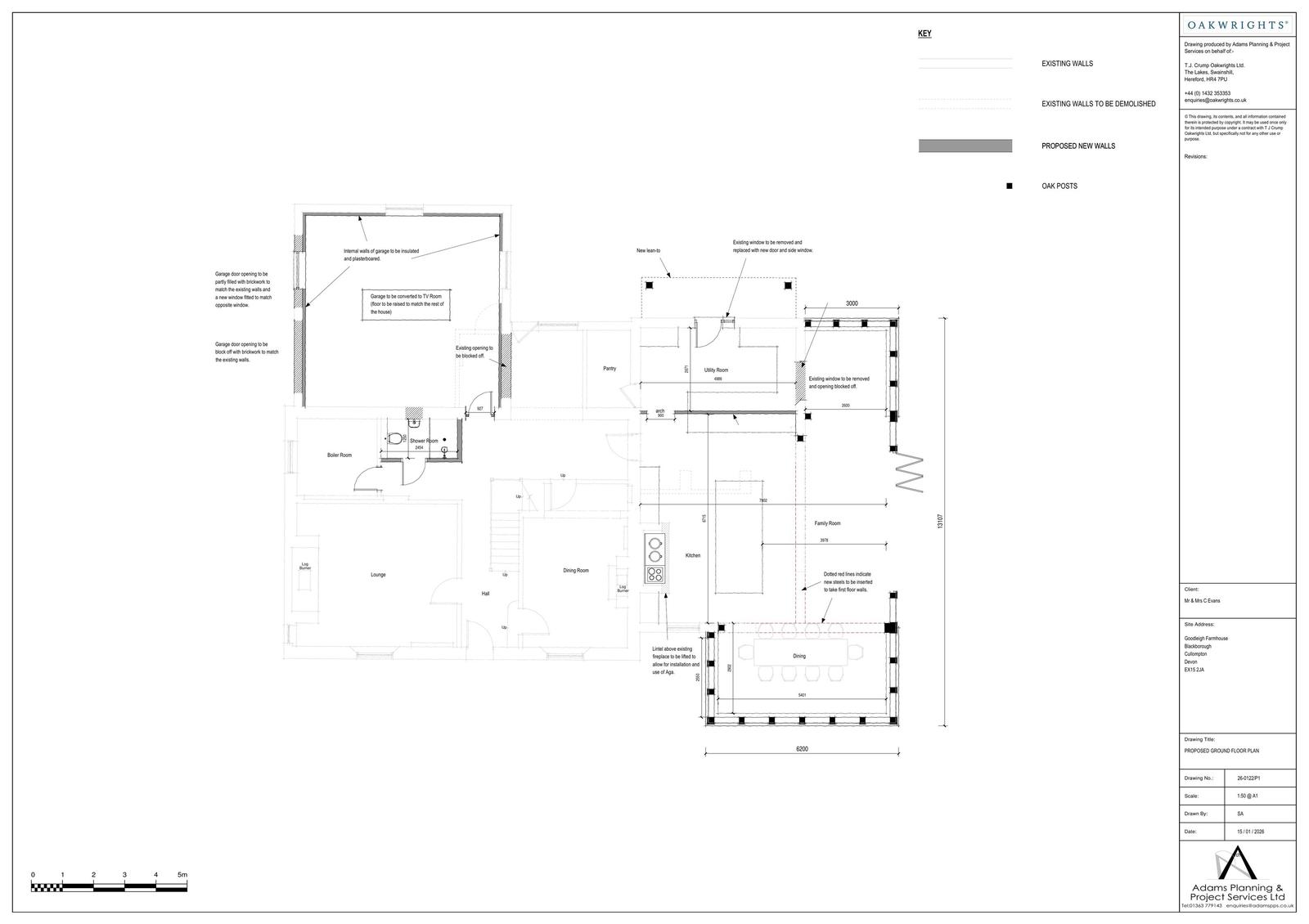
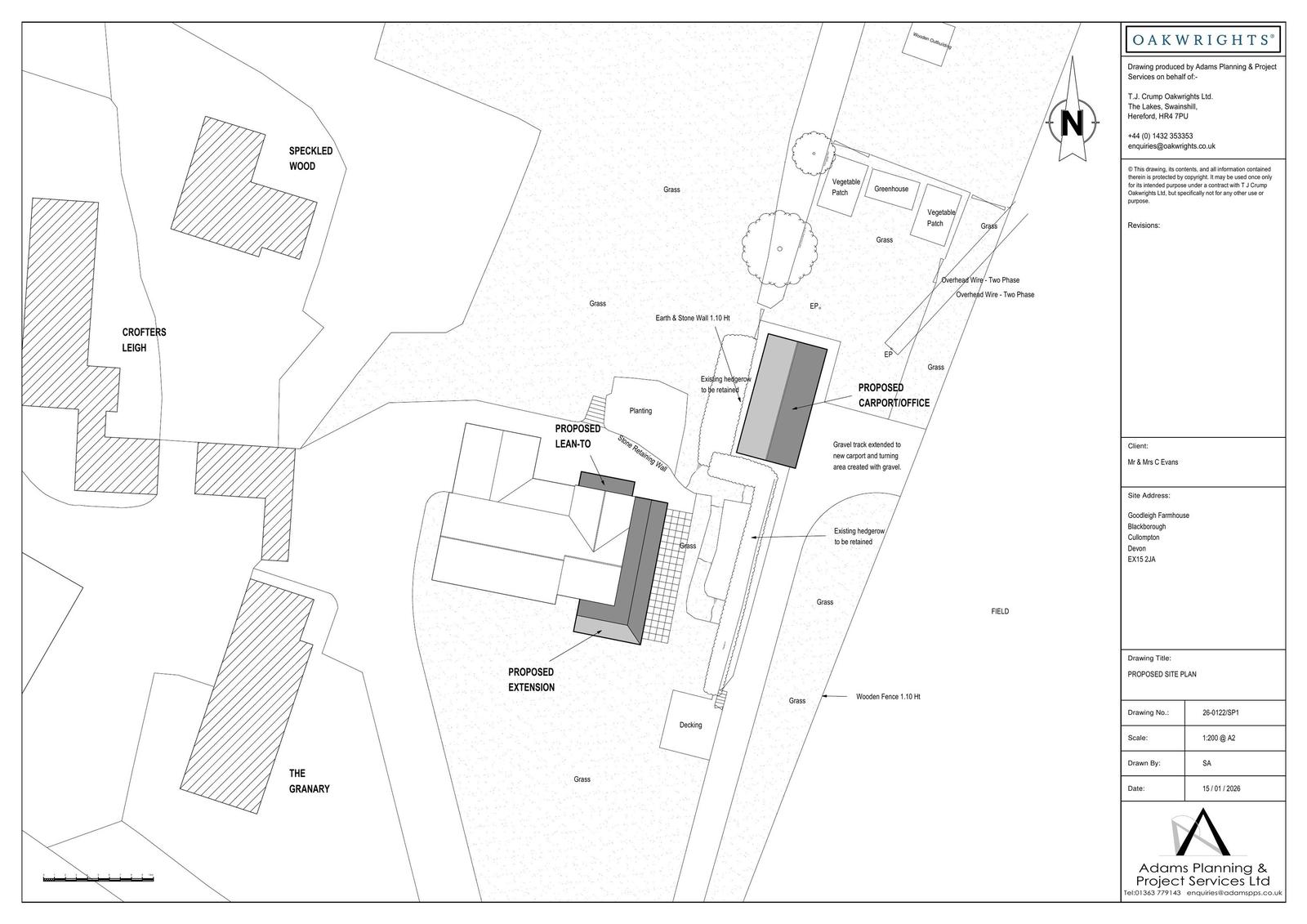
Erection of extension following demolition of existing sunroom, conversion of existing garage to accommodation, erection of new lean-to porch and erection of new carport/office

Documents

Application Form
Archived · Original link
Consultee Comment
Archived · Original link
Correspondence/Report
Archived · Original link
Supporting Information
Archived · Original link
Proposed Plan
Archived · Original link
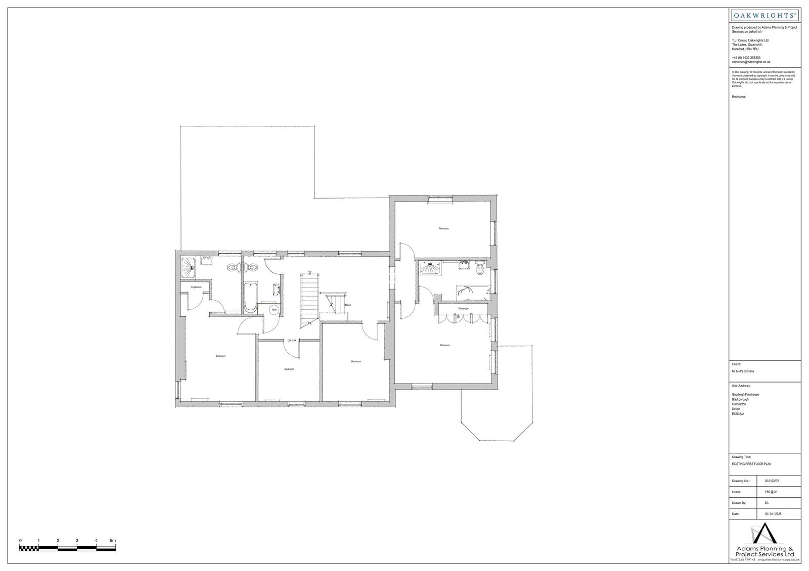
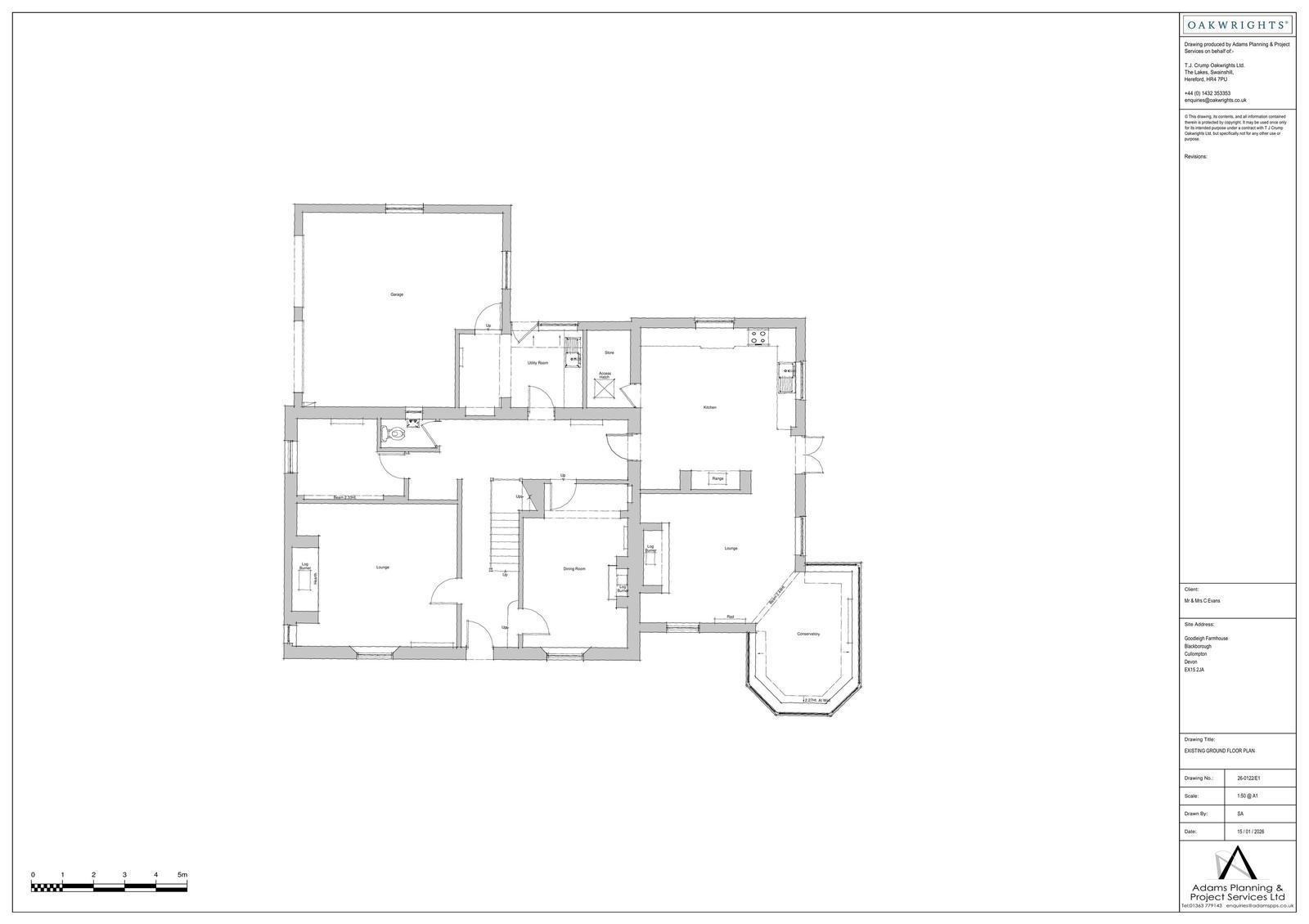
Existing Plan
Archived · Original link
Existing Plan
Archived · Original link
Proposed Plan
Archived · Original link
Consultee Comment
Archived · Original link
Existing Plan
Archived · Original link
Proposed Plan
Archived · Original link
Consultee Comment
Archived · Original link
Site Location Plan
Archived · Original link
Proposed Plan
Archived · Original link
Consultee Comment
Archived · Original link
Supporting Information
Archived · Original link

Have your say

Your comment matters. Councils must consider every representation that raises material planning considerations.

Write a comment