← Mid Devon District Council

Status

Awaiting decision New housing
Received
Not recorded
New homes
2

Full proposal

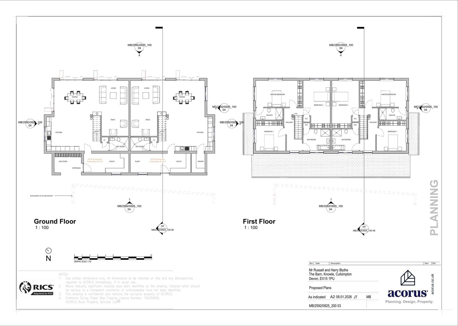
Erection of two self build dwellings and associated infrastructure utilising the Class Q fallback

Documents

Proposed Plan
Archived · Original link
Proposed Plan
Archived · Original link
Proposed Plan
Archived · Original link
Supporting Information
Archived · Original link
Proposed Plan
Archived · Original link
Site Location Plan
Archived · Original link
Proposed Plan
Archived · Original link

Have your say

Your comment matters. Councils must consider every representation that raises material planning considerations.

Write a comment