← Mid Sussex District Council

Status

Pending Consideration Change of use
Received
04 Nov 2025
New homes
4

Summary

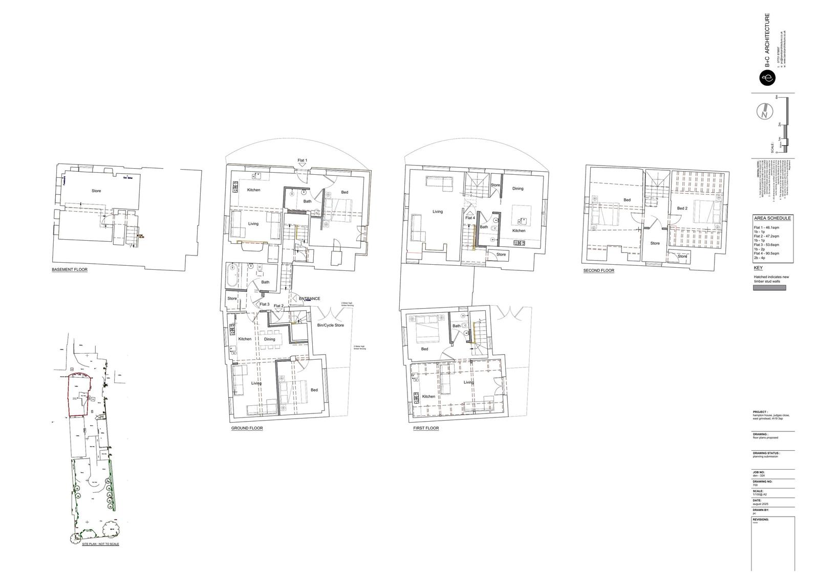
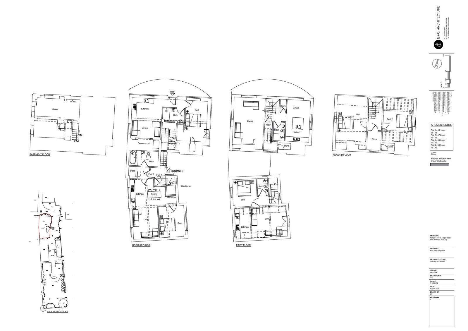
Change of use from Class E to residential to form 4 flats via internal reconfiguration.

Full proposal

Change of use of building from Class E to residential to form 4no flats, consisting of internal changes to the floor plan. (Revised plans received 27.11.2025) (Revised description agreed 01.12.2025)

Documents

101 Site / Block plan
Latest plan
Not yet archived · Original link
Application form
Application form
Not yet archived · Original link
Disability Access-East Grinstead Area
Representation letter
Not yet archived · Original link
East Grinstead Town Council
Consultation response
Not yet archived · Original link
Existing Basement Plan
Latest plan
Not yet archived · Original link
Existing Elevations
Latest plan
Not yet archived · Original link
Existing First Floor Plan
Latest plan
Not yet archived · Original link
Existing Ground Floor Plan
Latest plan
Not yet archived · Original link
Existing Second Floor Plan
Latest plan
Not yet archived · Original link
Heritage Statement
Supporting statement
Not yet archived · Original link
High Street, East Grinstead
Representation letter
Not yet archived · Original link
Location Plan and Block Plan
Latest plan
Not yet archived · Original link
MSDC Conservation Officer
Consultation response
Not yet archived · Original link
MSDC Neighbour Notification Sheet
Site notes and file notes
Not yet archived · Original link
MSDC Street Naming and Numbering
Consultation response
Not yet archived · Original link
Planning Statement
Supporting statement
Not yet archived · Original link
Proposed Elevations
Latest plan
Not yet archived · Original link
Proposed Elevations inc Fence detail - Superseded
Superseded plan
Not yet archived · Original link
Latest plan
Archived · Original link
Superseded plan
Archived · Original link
Site notes and file notes
Site notes and file notes
Not yet archived · Original link
Site notes and file notes
Site notes and file notes
Not yet archived · Original link
Site Notice
Photograph
Not yet archived · Original link
Site Notice
Photograph
Not yet archived · Original link
Topographical survey
Latest plan
Not yet archived · Original link
WSCC Highways
Consultation response
Not yet archived · Original link
WSCC Highways
Consultation response
Not yet archived · Original link

Have your say

Your comment matters. Councils must consider every representation that raises material planning considerations.

Write a comment