← Mid Sussex District Council

Status

Pending Consideration New housing
Received
04 Aug 2025
New homes
270

Summary

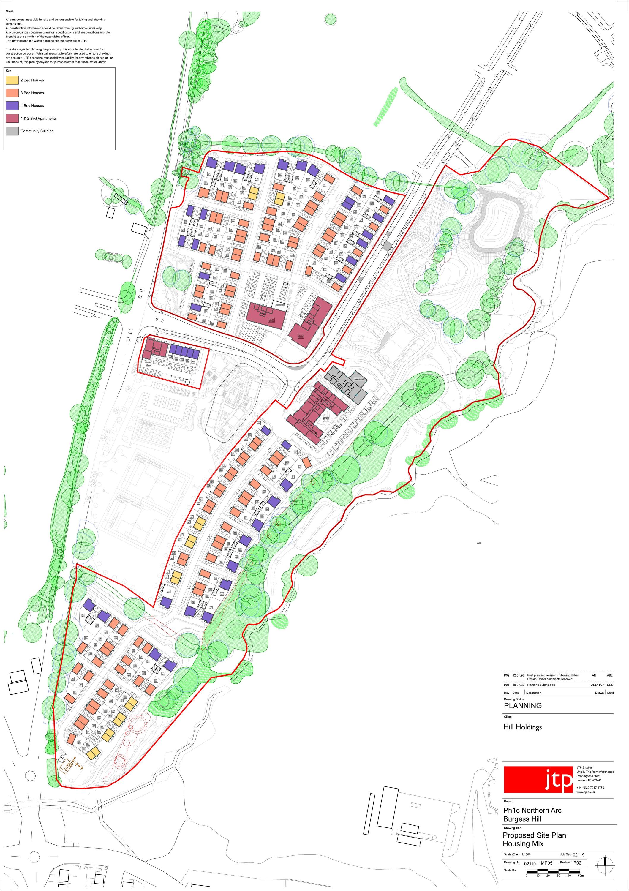
Reserved matters for Eastern Neighbourhood: up to 270 dwellings, extra-care, commercial space, community building and parkland.

Full proposal

Reserved matters application to consider access, appearance, landscaping, layout and scale for parcels 1.7, 1.7b, 1.8 and OS1.2 comprising: a) Eastern Neighbourhood Centre: Up to 270 residential dwellings and extra care units; commercial floorspace; the community building, the neighbourhood square, cycle and pedestrian connections, parking and associated infrastructure. b) Eastern Parkland comprising open space, multi-use games areas (MUGA), public art, green circle cycle link and associated infrastructure. (Amended Plans received 13/01/2026)

Documents

02119_Outgoing_Document_Register_Rev250808
Correspondence
Not yet archived · Original link
02119_Ph1c - Brookleigh Design Principles Statement Chpt 06 - Chpt 07 - Chpt 08
Supporting statement
Not yet archived · Original link
02119_Ph1c - Brookleigh Design Principles Statement - Appendix
Supporting statement
Not yet archived · Original link
02119_Ph1c - Brookleigh Design Principles Statement Chpt 00 Introduction
Supporting statement
Not yet archived · Original link
02119_Ph1c - Brookleigh Design Principles Statement Chpt 01
Supporting statement
Not yet archived · Original link
02119_Ph1c - Brookleigh Design Principles Statement Chpt 02 - Chpt 03
Supporting statement
Not yet archived · Original link
02119_Ph1c - Brookleigh Design Principles Statement Chpt 04A
Supporting statement
Not yet archived · Original link
02119_Ph1c - Brookleigh Design Principles Statement Chpt 04B
Supporting statement
Not yet archived · Original link
02119_Ph1c - Brookleigh Design Principles Statement Chpt 04C
Supporting statement
Not yet archived · Original link
02119_Ph1c - Brookleigh Design Principles Statement Chpt 05A
Supporting statement
Not yet archived · Original link
02119_Ph1c - Brookleigh Design Principles Statement Chpt 05B
Supporting statement
Not yet archived · Original link
02119_Ph1c - Brookleigh Design Principles Statement Chpt 05C
Supporting statement
Not yet archived · Original link
02119_Ph1c - Brookleigh Design Principles Statement Chpt 05D
Supporting statement
Not yet archived · Original link
02119_Ph1c - Brookleigh Design Principles Statement Chpt 05E
Supporting statement
Not yet archived · Original link
02119_Ph1c - Brookleigh Design Principles Statement Chpt 05F
Supporting statement
Not yet archived · Original link
3D Views - 02119_JTP_CB_06- P1
Latest plan
Not yet archived · Original link
Abney (3B6-2) - Type 5 - 02119_JTP_HT_3B_03A-3B6P P1
Latest plan
Not yet archived · Original link
Abney (3B6-2) - Type 6- 02119_JTP_HT_3B_03B-3B6P P1
Latest plan
Not yet archived · Original link
Affordable (S-O 2B4) - Type 4 - 02119_JTP_HT_2B_03A-2B4P P1
Superseded plan
Not yet archived · Original link
Affordable (S-O 2B4) - Type 6 - 02119_JTP_HT_2B_03B-2B4P P1
Superseded plan
Not yet archived · Original link
Amended 2B4P - Affordable (S/O 2B4) - Type 4 - Semi - M4(1), NDSS - HT_2B_03A Rev P2
Latest plan
Not yet archived · Original link
Amended 2B4P - Affordable (S/O 2B4) - Type 6 - Semi - M4(1), NDSS - HT_2B_03B Rev P2
Latest plan
Not yet archived · Original link
Amended 2B4P - Purbeck (2B4-1) - Type 6 - Semi - M4(1), NDSS - HT_2B_01D Rev P2
Latest plan
Not yet archived · Original link
Amended 3B5P - Kings (3B5-2) - Type 1 - Detached - Rear Garden - M4(1), NDSS - HT_3B_05A Rev P2
Latest plan
Not yet archived · Original link
Amended 3B6P - Walbury (3B6-4) - Type 2 - Detached - Side Window - M4(1), NDSS - HT_3B_08A Rev P2
Latest plan
Not yet archived · Original link
Amended 3B6P - Walbury (3B6-4) - Type 2 - Semi - M4(1), NDSS - HT_3B_12A Rev P2
Latest plan
Not yet archived · Original link
Amended 3B6P - Walbury (3B6-4) - Type 3 - Detached - EBLR Corner - M4(1), NDSS - HT_3B_11A Rev P2
Latest plan
Not yet archived · Original link
Amended 3B6P - Walbury (3B6-4) - Type 4 - Detached - Side Window - M4(1), NDSS - HT_3B_08B Rev P2
Latest plan
Not yet archived · Original link
Amended 3B6P - Walbury (S.O 3B6-4) - Type 4 - 5 Unit Terrace - M4(1), NDSS - ELEVATIONS & SECTION - HT_3B_13B Rev P2
Latest plan
Not yet archived · Original link
Amended 3B6P - Walbury (S.O 3B6-4) - Type 4 - 5 Unit Terrace - M4(1), NDSS - PLANS - HT_3B_13A Rev P2
Latest plan
Not yet archived · Original link
Amended 4B8P - Wainwright (4B8-2) - Type 4 - Detached - M4(1), NDSS - HT_4B_03B Rev P2
Latest plan
Not yet archived · Original link
Amended Bin & Cycle Store - BCS_00
Latest plan
Not yet archived · Original link
Amended Block B - 3D View - BB_05 Rev P2
Latest plan
Not yet archived · Original link
Amended Block B - North & West Elevations - BB_04 Rev P2
Latest plan
Not yet archived · Original link
Amended Block B - Roof Plan - BB_02 Rev P2
Latest plan
Not yet archived · Original link
Amended Block B - South & East Elevations - BB_03 Rev P2
Latest plan
Not yet archived · Original link
Amended Block B Ground & First Floor Plan - BB_00 Rev P3
Latest plan
Not yet archived · Original link
Amended Block B Second & Third Floor Plan - BB_01 Rev P3
Latest plan
Not yet archived · Original link
Amended Boundary Treatment Plan - 12112-FPCR-ZZ-ZZ-DR-L-0032 rev P04
Latest plan
Not yet archived · Original link
Amended Green Infrastructure Plan - 12112-FPCR-ZZ-ZZ-DR-L-0015 rev P13
Latest plan
Not yet archived · Original link
Amended Landscape Cross Sections 2 of 3 - 12112-FPCR-ZZ-ZZ-DR-L-0034 Rev P02
Latest plan
Not yet archived · Original link
Amended Landscape Cross Sections 3 of 3 - 12112-FPCR-ZZ-ZZ-DR-L-0035 Rev P02
Latest plan
Not yet archived · Original link
Amended Plans Cover Letter
Supporting statement
Not yet archived · Original link
Amended Proposed Illustrative Masterplan - 02119_MP10 Rev P02
Latest plan
Not yet archived · Original link
Amended Proposed Site Layout (1 of 2) - 02119_MP01A Rev P03
Latest plan
Not yet archived · Original link
Amended Proposed Site Layout (2 of 2) 02119_MP01B Rev P03
Latest plan
Not yet archived · Original link
Amended Proposed Site Layout Parking Strategy (1 of 2)
Latest plan
Not yet archived · Original link
Amended Proposed Site Layout Parking Strategy (2 of 2) - 02119_MP02B Rev P03
Latest plan
Not yet archived · Original link
Amended Proposed Site Layout Refuse Strategy (1 of 2) - 02119_MP03A Rev P02
Latest plan
Not yet archived · Original link
Amended Proposed Site Layout Refuse Strategy (1 of 2) - 02119_MP03B Rev P02
Latest plan
Not yet archived · Original link
Amended Street Elevation - Sheet 1 - SE_01 Rev P2
Latest plan
Not yet archived · Original link
Amended Street Elevation - Sheet 2 - SE_02 Rev P2
Latest plan
Not yet archived · Original link
Amended Street Elevation - Sheet 3 - SE_03 Rev P2
Latest plan
Not yet archived · Original link
Amended Street Elevation - Sheet 4 - SE_04 Rev P2
Latest plan
Not yet archived · Original link
Amended Street Elevation - Sheet 6 - SE_06 Rev P2
Latest plan
Not yet archived · Original link
Amended Street Elevation Isaacs Lane SE_07 Rev P1
Latest plan
Not yet archived · Original link
Amended Substation Plan - SUB_00 Rev P1
Latest plan
Not yet archived · Original link
Amended Typical Tree Pit Details - 12112-FPCR-ZZ-ZZ-DR-L-0036 Rev P01
Latest plan
Not yet archived · Original link
Appendix 1 - Main Drainage Layout Sheet 1 - BUR-WAC-ZZZ-00-D-C-10401
Latest plan
Not yet archived · Original link
Appendix 1 - Main Drainage Layout Sheet 2 - BUR-WAC-ZZZ-00-D-C-10402
Latest plan
Not yet archived · Original link
Appendix 1 - Main Drainage Layout Sheet 3 - BUR-WAC-ZZZ-00-D-C-10403
Latest plan
Not yet archived · Original link
Appendix 2 - Adoptable Drainage Construction Details Sheet 1
Latest plan
Not yet archived · Original link
Appendix 2 - Adoptable Drainage Construction Details Sheet 2
Latest plan
Not yet archived · Original link
Appendix 2 - Detention Basin P19 Details
Latest plan
Not yet archived · Original link
Appendix 2 - Water Quality Pond WQ02 Details
Latest plan
Not yet archived · Original link
Appendix 2 -Water Quality Pond WQ03 Details
Latest plan
Not yet archived · Original link
Appendix 3 - Flow Calculations Area 9.3
Supporting statement
Not yet archived · Original link
Appendix 3 - Flow Calculations Area 9.4
Supporting statement
Not yet archived · Original link
Appendix 3 - Flow Calculations Area 9.5
Supporting statement
Not yet archived · Original link
Appendix 4 - Greenfield runoff rate estimation DA 9.3
Supporting statement
Not yet archived · Original link
Appendix 4 - Greenfield runoff rate estimation DA 9.4
Supporting statement
Not yet archived · Original link
Appendix 4 - Greenfield runoff rate estimation DA 9.5
Supporting statement
Not yet archived · Original link
Application form
Application form
Not yet archived · Original link
Arboriculture Impact Assessment
Supporting statement
Not yet archived · Original link
Bindon (4B7-2) - Type 2 - 02119_JTP_HT_4B_01B-4B7P P1
Latest plan
Not yet archived · Original link
Bindon (4B7-2) - Type 3 - 02119_JTP_HT_4B_01C-4B7P - P1
Latest plan
Not yet archived · Original link
Bindon (4B7-2) - Type 3 02119_JTP_HT_4B_02A-4B7P P1
Latest plan
Not yet archived · Original link
Bindon (4B7-2) - Type 4- 02119_JTP_HT_4B_02B-4B7P - P1
Superseded plan
Not yet archived · Original link
Bindon (4B7-2)-Type 4- 02119_JTP_HT_4B_1D-4B7P P1
Latest plan
Not yet archived · Original link
Biodiversity Statement and Metric Assessment
Supporting statement
Not yet archived · Original link
Block A - 3D View 2 - 02119_JTP_BA_08 P1
Latest plan
Not yet archived · Original link
Block A - Ground and First Floor Plan - 02119_JTP_BA_00 P1
Latest plan
Not yet archived · Original link
Block A - North and West Elevations - 02119_JTP_BA_04- P1
Latest plan
Not yet archived · Original link
Block A - Roof Plan - 02119_JTP_BA_02 P1
Latest plan
Not yet archived · Original link
Block A - Second and Third Floor Plan - 02119_JTP_BA_01 P1
Latest plan
Not yet archived · Original link
Block A - South and East Elevations - 02119_JTP_BA_03 P1
Latest plan
Not yet archived · Original link
Block B - 3D View - 02119_JTP_BB_05 - P1
Superseded plan
Not yet archived · Original link
Block B - Ground and first floor plans. DWG no BB_00 Rev P2
Superseded plan
Not yet archived · Original link
Block B - North and West Elevation - 02119_JTP_BB_04 P1
Superseded plan
Not yet archived · Original link
Block B - Roof Plan - 02119_JTP_BB_02
Superseded plan
Not yet archived · Original link
Block B - Second and third floor plan. DWG no BB_01 Rev P2
Superseded plan
Not yet archived · Original link
Block B - South and East Elevation - 02119_JTP_BB_03 P1
Superseded plan
Not yet archived · Original link
Block C - 3D View - 02119_JTP_BC_02- P1
Latest plan
Not yet archived · Original link
Block C - Elevations - 02119_JTP_BC_01 P1
Latest plan
Not yet archived · Original link
Block C - Floor Plans - 02119_JTP_BC_00 P1
Latest plan
Not yet archived · Original link
BNG Metric
Supporting statement
Not yet archived · Original link
Brookleigh Ph. 1C Environmental Statement of Compliance - July 2025
Supporting statement
Not yet archived · Original link
BUR-WAC-ZZZ-00-D-C-10006
Latest plan
Not yet archived · Original link
Burgess Hill Town Council
Consultation response
Not yet archived · Original link
Burgess Hill Town Council
Consultation response
Not yet archived · Original link
Burgess Hill Town Council Comments
Consultation response
Not yet archived · Original link
Burgess Hill Town Council Comments
Consultation response
Not yet archived · Original link
Community Building Ground floor plan DWG no CB_00 Rev P2
Latest plan
Not yet archived · Original link
Conservation Officer Comments
Consultation response
Not yet archived · Original link
Contaminated Land
Consultation response
Not yet archived · Original link
Contaminated Land
Consultation response
Not yet archived · Original link
Cover letter
Correspondence
Not yet archived · Original link
Drainage Technical Note
Supporting statement
Not yet archived · Original link
East and South Elevations - 02119_JTP_CB_04 P1
Latest plan
Not yet archived · Original link
Ecological Walkover survey
Supporting statement
Not yet archived · Original link
Ecology Consultants Comments
Consultation response
Not yet archived · Original link
Energy and Sustainability Assessment
Supporting statement
Not yet archived · Original link
Environment Agency
Consultation response
Not yet archived · Original link
Environment Agency – Solent & South Downs
Consultation response
Not yet archived · Original link
Environmental Noise Assessment
Supporting statement
Not yet archived · Original link
Environmental Noise Assessment - ProPG Appraisal
Supporting statement
Not yet archived · Original link
External Levels Plan Sheet 4 - BUR-WAC-ZZZ-00-D-C-10004
Latest plan
Not yet archived · Original link
External Levls Plan Sheet 1 - BUR-WAC-ZZZ-00-D-C-10001
Latest plan
Not yet archived · Original link
External Levls Plan Sheet 2 - BUR-WAC-ZZZ-00-D-C-10002
Latest plan
Not yet archived · Original link
External Levls Plan Sheet 3 - BUR-WAC-ZZZ-00-D-C-10003
Latest plan
Not yet archived · Original link
External Levls Plan Sheet 4 - BUR-WAC-ZZZ-00-D-C-10004
Superseded plan
Not yet archived · Original link
External Levls Plan Sheet 5 - BUR-WAC-ZZZ-00-D-C-10005-
Superseded plan
Not yet archived · Original link
External Levls Plan Sheet 5 - BUR-WAC-ZZZ-00-D-C-10005-
Latest plan
Not yet archived · Original link
Extra Care Home - 3D Views - 02119_JTP_EC_109 - P1
Latest plan
Not yet archived · Original link
Extra Care Home - East and North Elevations - 02119_JTP_EC_107 P1
Latest plan
Not yet archived · Original link
Extra Care Home - First Floor Plan - 02119_JTP_EC_102 P1
Latest plan
Not yet archived · Original link
Extra Care Home - GIA Plans-D2. - 02119_JTP_EC_112
Latest plan
Not yet archived · Original link
Extra Care Home - Ground Floor Plan - 02119_JTP_EC_101 P1
Latest plan
Not yet archived · Original link
Extra Care Home - Roof Plan - 02119_JTP_EC_105 P1
Latest plan
Not yet archived · Original link
Extra Care Home - Second Floor Plan - 02119_JTP_EC_103 P1
Latest plan
Not yet archived · Original link
Extra Care Home - Sections 02119_JTP_EC_10 P1
Latest plan
Not yet archived · Original link
Extra Care Home - Third Floor Plan - 02119_JTP_EC_104 P1
Latest plan
Not yet archived · Original link
Extra Care Home - West and South Elevations - 02119_JTP_EC_106 - P1
Latest plan
Not yet archived · Original link
Farleigh (3B5-1 - 02119_JTP_HT_3B_02C-3B5P - P1
Latest plan
Not yet archived · Original link
Farleigh (3B5-1) Type 4 - 02119_JTP_HT_3B_01A-3B5P - P1
Latest plan
Not yet archived · Original link
Farleigh (3B5-1) Type 4 - 02119_JTP_HT_3B_02A-3B5P P1
Latest plan
Not yet archived · Original link
Farleigh (3B5-1) Type 5 - 02119_JTP_HT_3B_01B-3B5P - P1
Latest plan
Not yet archived · Original link
Farleigh (3B5-1) Type 5 - 02119_JTP_HT_3B_02B-3B5P - P1
Latest plan
Not yet archived · Original link
Farleigh (3B5-1) Type 6 - 02119_JTP_HT_3B_01C-3B5P - P1
Latest plan
Not yet archived · Original link
Fire Appliance Tracking 1 of 3 - 12824_2202_P5
Superseded plan
Not yet archived · Original link
Fire Appliance Tracking 2 of 3 - 12824_2203_P5
Superseded plan
Not yet archived · Original link
Fire Appliance Tracking 3 of 3 - 12824_2205_P4
Superseded plan
Not yet archived · Original link
First Floor Plan - 02119_JTP_CB_01 P1
Latest plan
Not yet archived · Original link
Garages - 02119_JTP_G_00 P1
Latest plan
Not yet archived · Original link
Green Infrastructure Strategy - 12112-FPCR-ZZ-ZZ-DR-L-0015-P10-GI
Superseded plan
Not yet archived · Original link
GREEN INFRASTRUCTURE STRATEGY - 12112-FPCR-ZZ-ZZ-DR-L-0015revP11
Superseded plan
Not yet archived · Original link
Haddington (3B6-1) - Type 2 - 02119_JTP_HT_3B_06A-3B6P P1
Latest plan
Not yet archived · Original link
Haddington (3B6-1) - Type 4 - 02119_JTP_HT_3B_06B-3B6P P1
Latest plan
Not yet archived · Original link
Haddington (3B6-1) - Type 4 - 02119_JTP_HT_3B_06G-3B6P P1
Latest plan
Not yet archived · Original link
Haddington (3B6-1) - Type 5 - 02119_JTP_HT_3B_06C-3B6P P1
Latest plan
Not yet archived · Original link
Haddington (3B6-1) - Type 5 - 02119_JTP_HT_3B_06D-3B6P - P1
Latest plan
Not yet archived · Original link
Haddington (3B6-1) - Type 6 - 02119_JTP_HT_3B_06E-3B6P - P1
Latest plan
Not yet archived · Original link
Haddington (3B6-1) - Type 6 - 02119_JTP_HT_3B_06F-3B6P P1
Latest plan
Not yet archived · Original link
Heritage Statement
Supporting statement
Not yet archived · Original link
Highways Technical Note
Supporting statement
Not yet archived · Original link
Historic Environments Consultant Comments
Consultation response
Not yet archived · Original link
Historic Environments Consultation Response
Consultation response
Not yet archived · Original link
Housing Enabling Officer
Consultation response
Not yet archived · Original link
Housing Officer Comments
Consultation response
Not yet archived · Original link
Housing Officer Comments
Consultation response
Not yet archived · Original link
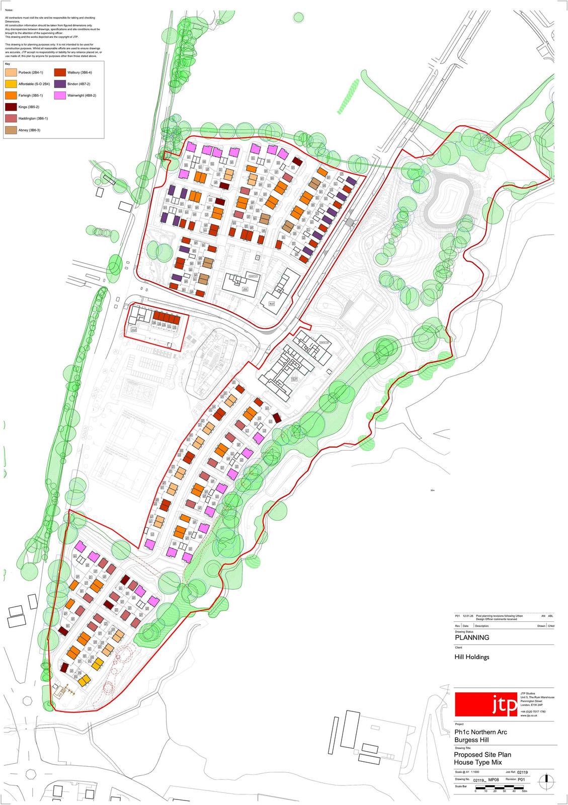
Housing Type Schedule
Supporting statement
Not yet archived · Original link
Kings (3B5-2) - Type 2 - 02119_JTP_HT_3B_04A-3B5P P1
Latest plan
Not yet archived · Original link
Kings (3B5-2) - Type 4 - 02119_JTP_HT_3B_05B-3B5P P1
Latest plan
Not yet archived · Original link
Kings (3B5-2) - Type 6 - 02119_JTP_HT_3B_04B-3B5P - P1
Latest plan
Not yet archived · Original link
Landscape Cross Sections 1 of 3 - 12112-FPCR-ZZ-ZZ-DR-L-0033 Rev P02
Latest plan
Not yet archived · Original link
Landscape Management Plan (B) - 12112-L
Supporting statement
Not yet archived · Original link
Large Car Tracking for Private Drive - 12824_2206_P4
Latest plan
Not yet archived · Original link
LB Notice
Site notes and file notes
Not yet archived · Original link
MSDC Contaminated Land.
Consultation response
Not yet archived · Original link
MSDC Contaminated Land.
Consultation response
Not yet archived · Original link
MSDC Neighbour Notification Sheet
Site notes and file notes
Not yet archived · Original link
MSDC Street Naming and Numbering
Consultation response
Not yet archived · Original link
Overheating Assessment
Supporting statement
Not yet archived · Original link
Place Services
Consultation response
Not yet archived · Original link
Planning Statement
Supporting statement
Not yet archived · Original link
Public Art Delivery Plan
Supporting statement
Not yet archived · Original link
Public Art Strategy - 12112-FPCR-XX-XX-DR-L-0030
Latest plan
Not yet archived · Original link
Purbeck (2B4-1) - Neighbourhood Centre - Type 5- 02119_JTP_HT_2B_02A-2B4P P1
Latest plan
Not yet archived · Original link
Purbeck (2B4-1) - Type 2 - 02119_JTP_HT_2B_01A-2B4P P1
Latest plan
Not yet archived · Original link
Purbeck (2B4-1) - Type 4 - 02119_JTP_HT_2B_01B-2B4P P1
Latest plan
Not yet archived · Original link
Purbeck (2B4-1) - Type 5 - 02119_JTP_HT_2B_01C-2B4P P1
Superseded plan
Not yet archived · Original link
Purbeck (2B4-1) - Type 5 - 02119_JTP_HT_2B_01C-2B4P P2
Latest plan
Not yet archived · Original link
Refuse Vehicle Tracking 1 of 3 - 12824_2200_P6
Superseded plan
Not yet archived · Original link
Refuse Vehicle Tracking 2 of 3 - 12824_2201_P6
Superseded plan
Not yet archived · Original link
Refuse Vehicle Tracking 3 of 3 - 12824_2204_P3
Superseded plan
Not yet archived · Original link
Response to Consultees
Supporting statement
Not yet archived · Original link
Response to LLFA
Supporting statement
Not yet archived · Original link
Response to LLFA
Supporting statement
Not yet archived · Original link
Response to WSCC Highways Comments
Supporting statement
Not yet archived · Original link
Roof Plan - 02119_JTP_CB_02 P1
Latest plan
Not yet archived · Original link
Sections - 02119_JTP_CB_05 P1
Latest plan
Not yet archived · Original link
Site Entrance Street Elevation - 02119_JTP_SE_07 P1
Superseded plan
Not yet archived · Original link
Site notes and file notes
Site notes and file notes
Not yet archived · Original link
Site notes and file notes
Site notes and file notes
Not yet archived · Original link
Site notes and file notes
Site notes and file notes
Not yet archived · Original link
Site notes and file notes
Site notes and file notes
Not yet archived · Original link
Site notes and file notes
Site notes and file notes
Not yet archived · Original link
Site notes and file notes
Site notes and file notes
Not yet archived · Original link
Site notice
Site notes and file notes
Not yet archived · Original link
Site notice
Site notes and file notes
Not yet archived · Original link
Southern Water
Consultation response
Not yet archived · Original link
Southern Water
Consultation response
Not yet archived · Original link
Southern Water Capacity Check
Consultation response
Not yet archived · Original link
Southern Water Capacity Check
Consultation response
Not yet archived · Original link
Southern Water GIS
Consultation response
Not yet archived · Original link
Statement of Community Involvement Brookleigh (Northern Arc) Phase 1c
Supporting statement
Not yet archived · Original link
Storm Network 4 Drainage Calculations
Supporting statement
Not yet archived · Original link
Storm Network 5 Drainage Calculations
Supporting statement
Not yet archived · Original link
Street Elevations - Sheet 1 - 02119_JTP_SE_01 P1
Superseded plan
Not yet archived · Original link
Street Elevations - Sheet 3 - 02119_JTP_SE_03 P1
Superseded plan
Not yet archived · Original link
Street Elevations - Sheet 4 - 02119_JTP_SE_04 P1
Superseded plan
Not yet archived · Original link
Street Elevations - Sheet 5 - 02119_JTP_SE_05 P1
Latest plan
Not yet archived · Original link
Street Elevations - Sheet 6 - 02119_JTP_SE_06 P1
Superseded plan
Not yet archived · Original link
SUPERSEDED Kings (3B5-2) - Type 1 - 02119_JTP_HT_3B_05A-3B5P P1
Superseded plan
Not yet archived · Original link
Superseded Proposed Illustrative Masterplan - 02119_MP10
Superseded plan
Not yet archived · Original link
SUPERSEDED Purbeck (2B4-1) - Type 6 - 02119_JTP_HT_2B_01D-2B4P P1
Superseded plan
Not yet archived · Original link
superseded Street Elevations - Sheet 2 - 02119_JTP_SE_02 P1
Superseded plan
Not yet archived · Original link
Sussex Police
Consultation response
Not yet archived · Original link
Sussex Police
Consultation response
Not yet archived · Original link
Transport Assessment Addendum
Supporting statement
Not yet archived · Original link
Tree Officer Comments
Consultation response
Not yet archived · Original link
Urban Designers Comments
Consultation response
Not yet archived · Original link
Visibility Splays 1 of 2 - 12824_2207_P3
Superseded plan
Not yet archived · Original link
Visibility Splays 2 of 2 - 12824_2208_P3
Superseded plan
Not yet archived · Original link
Wainwright (4B8-2) - Type 1 - 02119_JTP_HT_4B_03A-4B8P P1
Latest plan
Not yet archived · Original link
Wainwright (4B8-2) - Type 1 - 02119_JTP_HT_4B_04A-4B8P - P1
Latest plan
Not yet archived · Original link
Wainwright (4B8-2) - Type 1 - 02119_JTP_HT_4B_05A-4B8P - P1
Latest plan
Not yet archived · Original link
Wainwright (4B8-2) - Type 4 - 02119_JTP_HT_4B_03B-4B8P P1
Superseded plan
Not yet archived · Original link
Wainwright (4B8-2) - Type 4 - 02119_JTP_HT_4B_04B-4B8P - P1
Latest plan
Not yet archived · Original link
Wainwright (4B8-2) - Type 6 - 02119_JTP_HT_4B_03C-4B8P - P1
Latest plan
Not yet archived · Original link
Wainwright (4B8-2) - Type 6 - 02119_JTP_HT_4B_04C-4B8P - P1
Latest plan
Not yet archived · Original link
Wainwright (4B8-2) - Type 6 - 02119_JTP_HT_4B_05B-4B8P P1
Latest plan
Not yet archived · Original link
Walbury (3B6-4) - Type 2 - 02119_JTP_HT_3B_07A-3B6P P1
Latest plan
Not yet archived · Original link
Walbury (3B6-4) - Type 2 - 02119_JTP_HT_3B_08A-3B6P - P1
Superseded plan
Not yet archived · Original link
Walbury (3B6-4) - Type 2 - 02119_JTP_HT_3B_10A-3B6P P1
Latest plan
Not yet archived · Original link
Walbury (3B6-4) - Type 2 - 02119_JTP_HT_3B_12A-3B6P P1
Superseded plan
Not yet archived · Original link
Walbury (3B6-4) - Type 3 - 02119_JTP_HT_3B_07B-3B6P P1
Latest plan
Not yet archived · Original link
Walbury (3B6-4) - Type 3 -02119_JTP_HT_3B_10B-3B6P P1
Latest plan
Not yet archived · Original link
Walbury (3B6-4) - Type 3 02119_JTP_HT_3B_11A-3B6P P1
Superseded plan
Not yet archived · Original link
Walbury (3B6-4) - Type 4 - 02119_JTP_HT_3B_08B-3B6P P1
Superseded plan
Not yet archived · Original link
Walbury (3B6-4) - Type 4 - 02119_JTP_HT_3B_12B-3B6P - P1
Latest plan
Not yet archived · Original link
Walbury (3B6-4) - Type 5 - 02119_JTP_HT_3B_09A-3B6P P1
Latest plan
Not yet archived · Original link
Walbury (3B6-4) - Type 6 - 02119_JTP_HT_3B_12D-3B6P P1
Latest plan
Not yet archived · Original link
Walbury (SO 3B6-4) - Type 4 - 02119_JTP_HT_3B_13A-3B6P P1
Superseded plan
Not yet archived · Original link
Walbury (SO 3B6-4) - Type 4 - ELEVATIONS -SECTION - 02119_JTP_HT_3B_13B-3B6P P1
Superseded plan
Not yet archived · Original link
West and North Elevations - 02119_JTP_CB_03 P1
Latest plan
Not yet archived · Original link
WSCC Extra care comments
Correspondence
Not yet archived · Original link
WSCC FRS Water and Access Hydrant Condition
Consultation response
Not yet archived · Original link
WSCC FRS Water and Access Hydrant Condition Email
Consultation response
Not yet archived · Original link
WSCC Highways
Consultation response
Not yet archived · Original link
WSCC Highways
Consultation response
Not yet archived · Original link
WSCC Highways Comments
Consultation response
Not yet archived · Original link
WSCC Lead Local Authority
Consultation response
Not yet archived · Original link
WSCC Lead Local Flood Authority
Consultation response
Not yet archived · Original link
WSCC LLFA Comments
Consultation response
Not yet archived · Original link

Have your say

Your comment matters. Councils must consider every representation that raises material planning considerations.

Write a comment