← Mid Sussex District Council

Status

Pending Consideration New housing
Received
15 Aug 2025
New homes
2

Full proposal

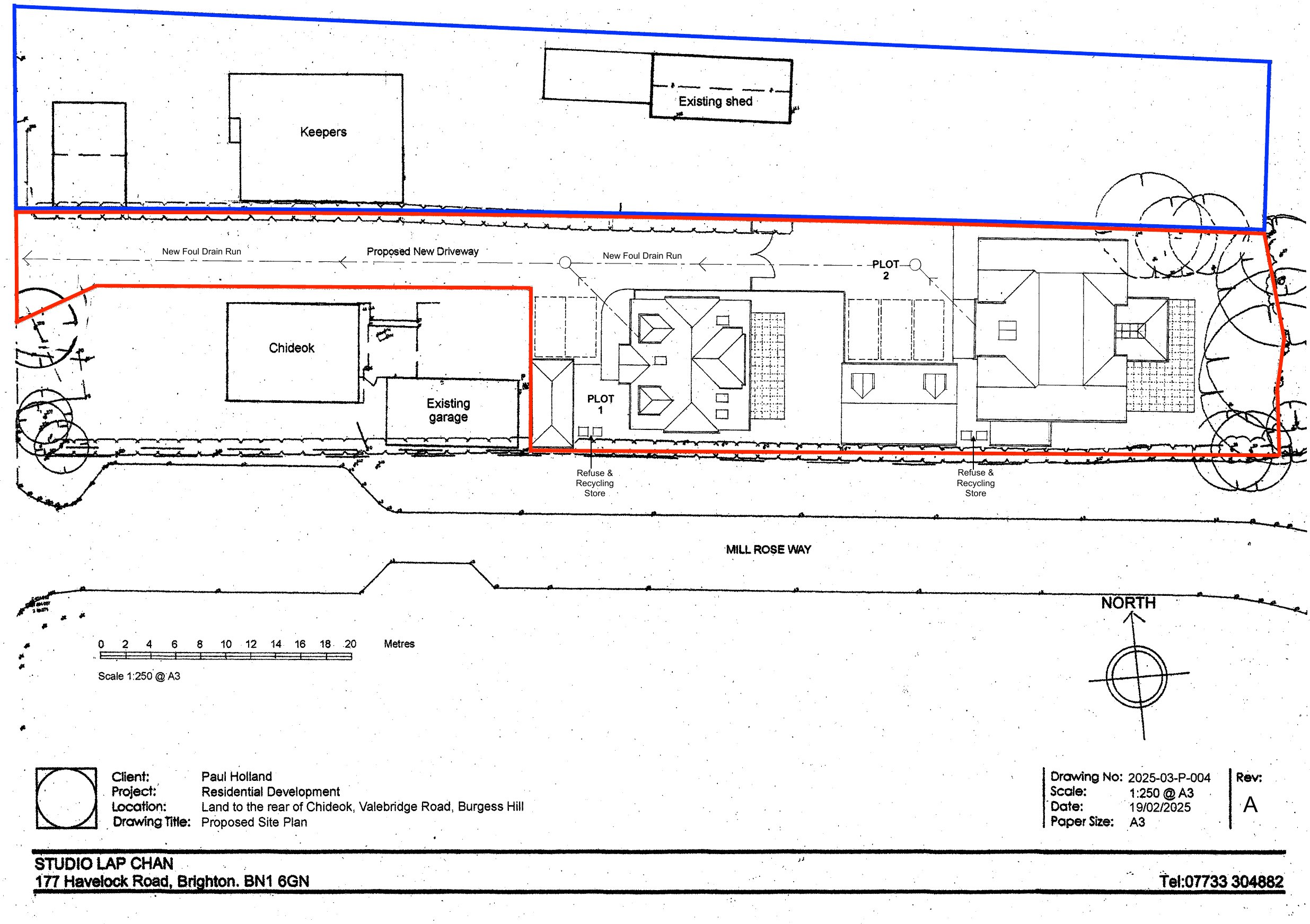
Construction of 2 no houses with detached garages and retrospective permission for the creation of a new access from Valebridge Road (Flood Risk Assessment received 12.01.2026) (Tree information received 18.02.2026) (Revised description agreed 19.02.2026)

Documents

Application form
Application form
Not yet archived · Original link
Arboricultural Impact Assessment
Supporting statement
Not yet archived · Original link
Arboricultural Method Statement
Supporting statement
Not yet archived · Original link
Bio-diversity Net Gain Exemption statement
Supporting statement
Not yet archived · Original link
Block plan. DWG no 2025-03-P-002
Latest plan
Not yet archived · Original link
Burgess Hill Town Council
Consultation response
Not yet archived · Original link
Design and Access Statement
Supporting statement
Not yet archived · Original link
Flood Risk Assessment
Supporting statement
Not yet archived · Original link
Lewes District Council
Representation letter
Not yet archived · Original link
Location plan. DWG no 2025-03-P-001 Rev B
Latest plan
Not yet archived · Original link
MSDC Neighbour Notification Sheet
Site notes and file notes
Not yet archived · Original link
MSDC Street Naming and Numbering
Consultation response
Not yet archived · Original link
Proposed east and west elevations plot 2. DWG no 2025-03-P-012 rev A
Latest plan
Not yet archived · Original link
Proposed elevations plot 1. DWG no 2025-03-P-008
Latest plan
Not yet archived · Original link
Proposed first floor plan plot 1. DWG no 2025-03-P-006
Latest plan
Not yet archived · Original link
Proposed first floor plan plot 2. DWG no 2025-03-P-010 rev A
Latest plan
Not yet archived · Original link
Proposed ground floor plan plot 1. DWG no 2025-03-P-005
Latest plan
Not yet archived · Original link
Proposed ground floor plan plot 2. DWG no 2025-03-P-009
Latest plan
Not yet archived · Original link
Proposed north and south elevations plot 2. DWG no 2025-03-P-013 rev B
Latest plan
Not yet archived · Original link
Proposed roof plan and elevations to garage plot 1. DWG no 2025-03-P-007
Latest plan
Not yet archived · Original link
Proposed roof plan plot 2. DWG no 2025-03-P-011 rev A
Latest plan
Not yet archived · Original link
Site notes and file notes
Site notes and file notes
Not yet archived · Original link
Site notes and file notes
Site notes and file notes
Not yet archived · Original link
Southern Water
Consultation response
Not yet archived · Original link
Southern Water
Consultation response
Not yet archived · Original link
Southern Water GIS
Consultation response
Not yet archived · Original link
Southern Water GIS
Consultation response
Not yet archived · Original link
Tree Protection Plan
Supporting statement
Not yet archived · Original link
WSCC Highways
Consultation response
Not yet archived · Original link

Have your say

Your comment matters. Councils must consider every representation that raises material planning considerations.

Write a comment