← Mid Sussex District Council

Status

Pending Consideration House extension
Received
14 Oct 2025
New homes
0

Full proposal

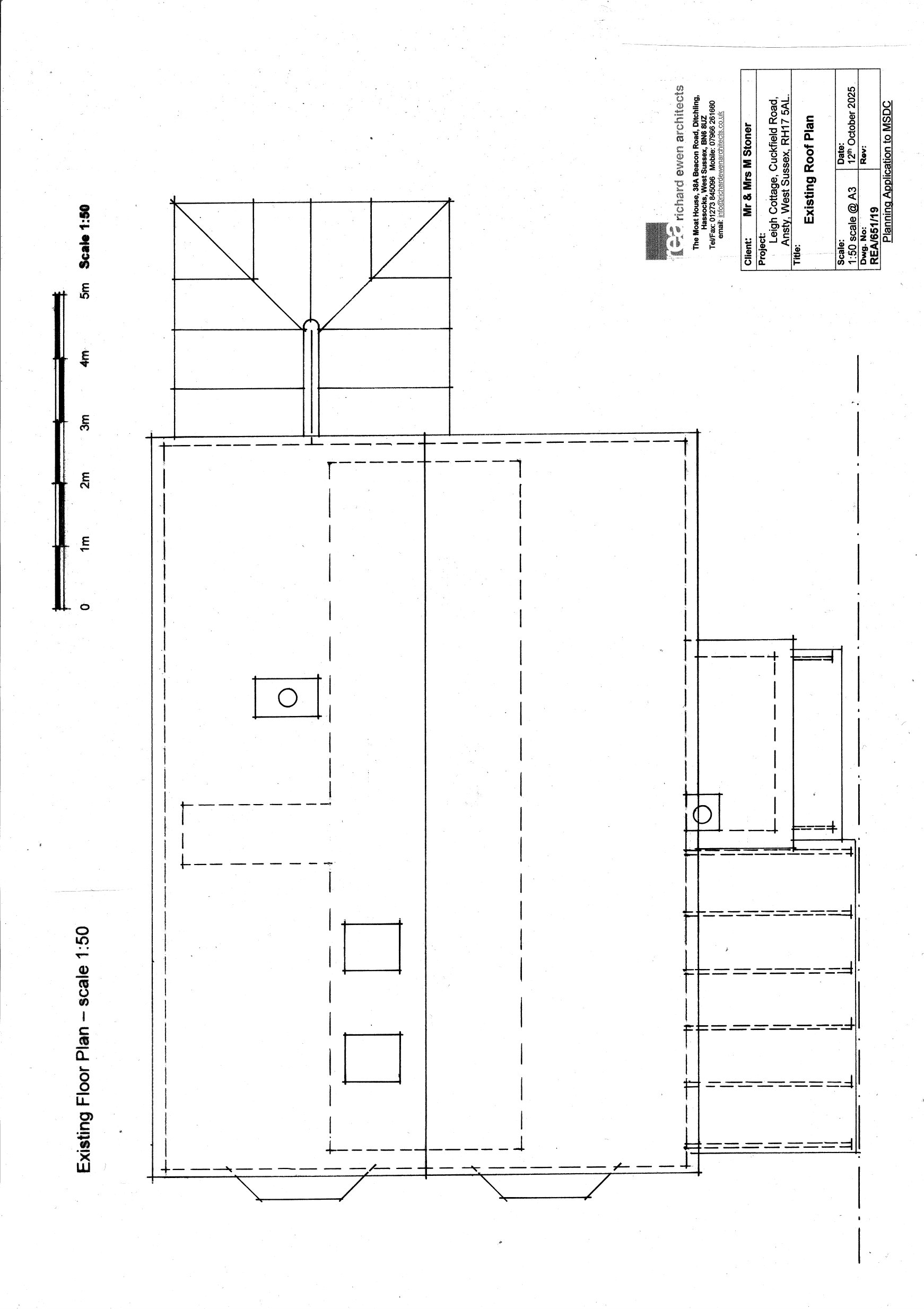
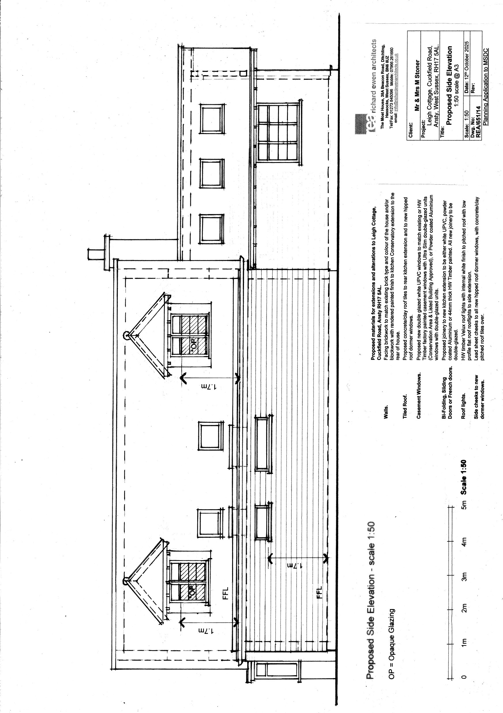
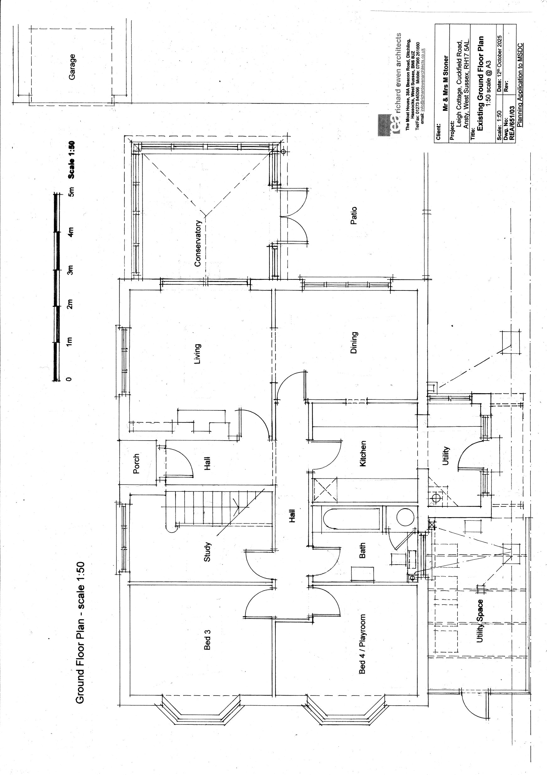
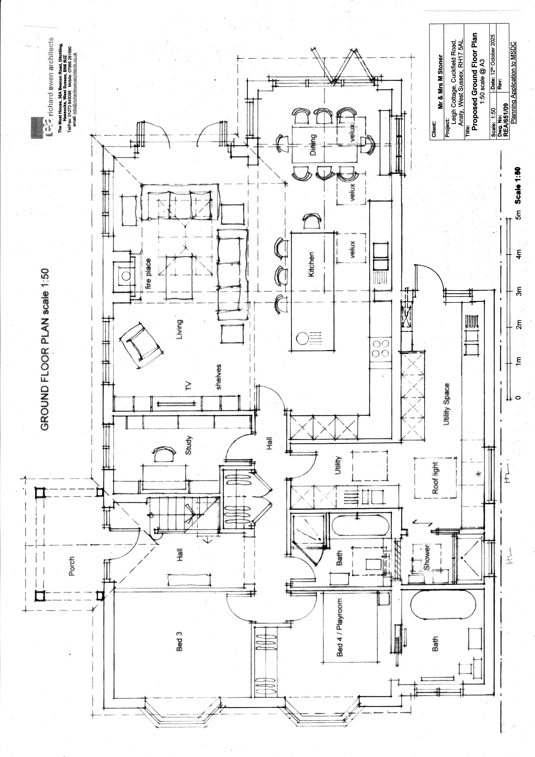
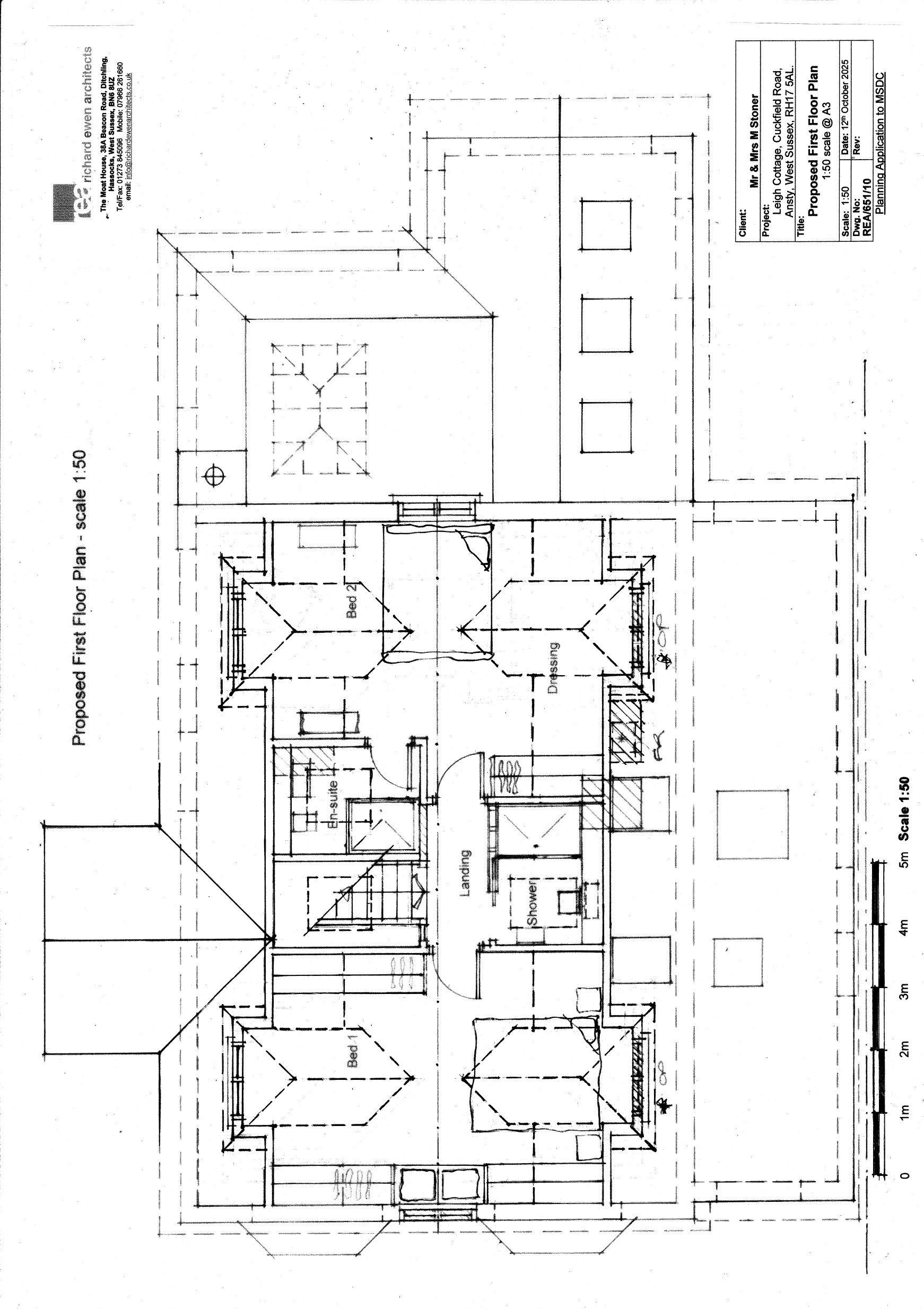
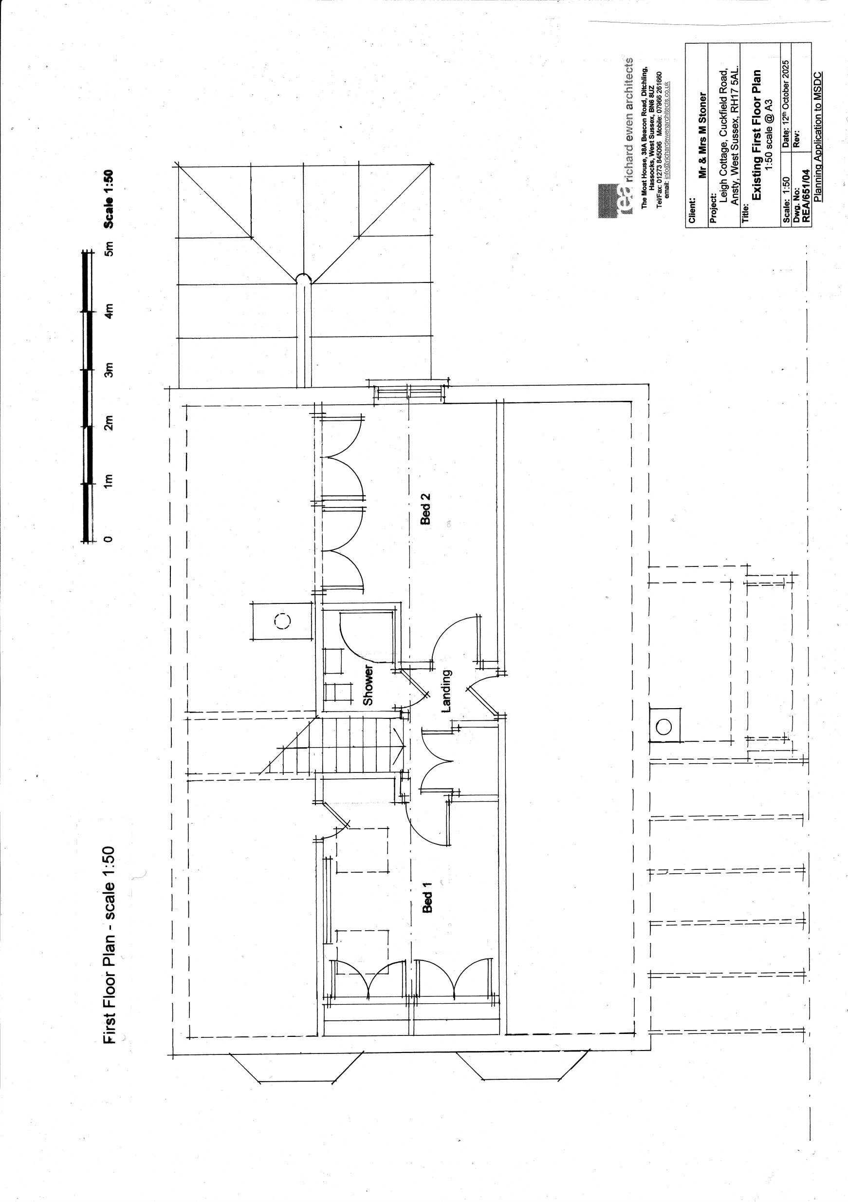
Rear and side single storey extension, new entrance porch and 4 no. dormer windows to main roof. Supporting Arboricultural Impact Assessment, Tree Protection Plan and Tree Constraints Plan received 13.02.2026.

Documents

Application form
Archived · Original link
Consultation response
Archived · Original link
Consultation response
Archived · Original link
Consultation response
Archived · Original link
Consultation response
Archived · Original link
Supporting statement
Archived · Original link
Consultation response
Archived · Original link
Supporting statement
Archived · Original link
Supporting statement
Archived · Original link

Have your say

Your comment matters. Councils must consider every representation that raises material planning considerations.

Write a comment