← Mid Sussex District Council

Status

Pending Consideration New housing
Received
15 Oct 2025
New homes
2

Summary

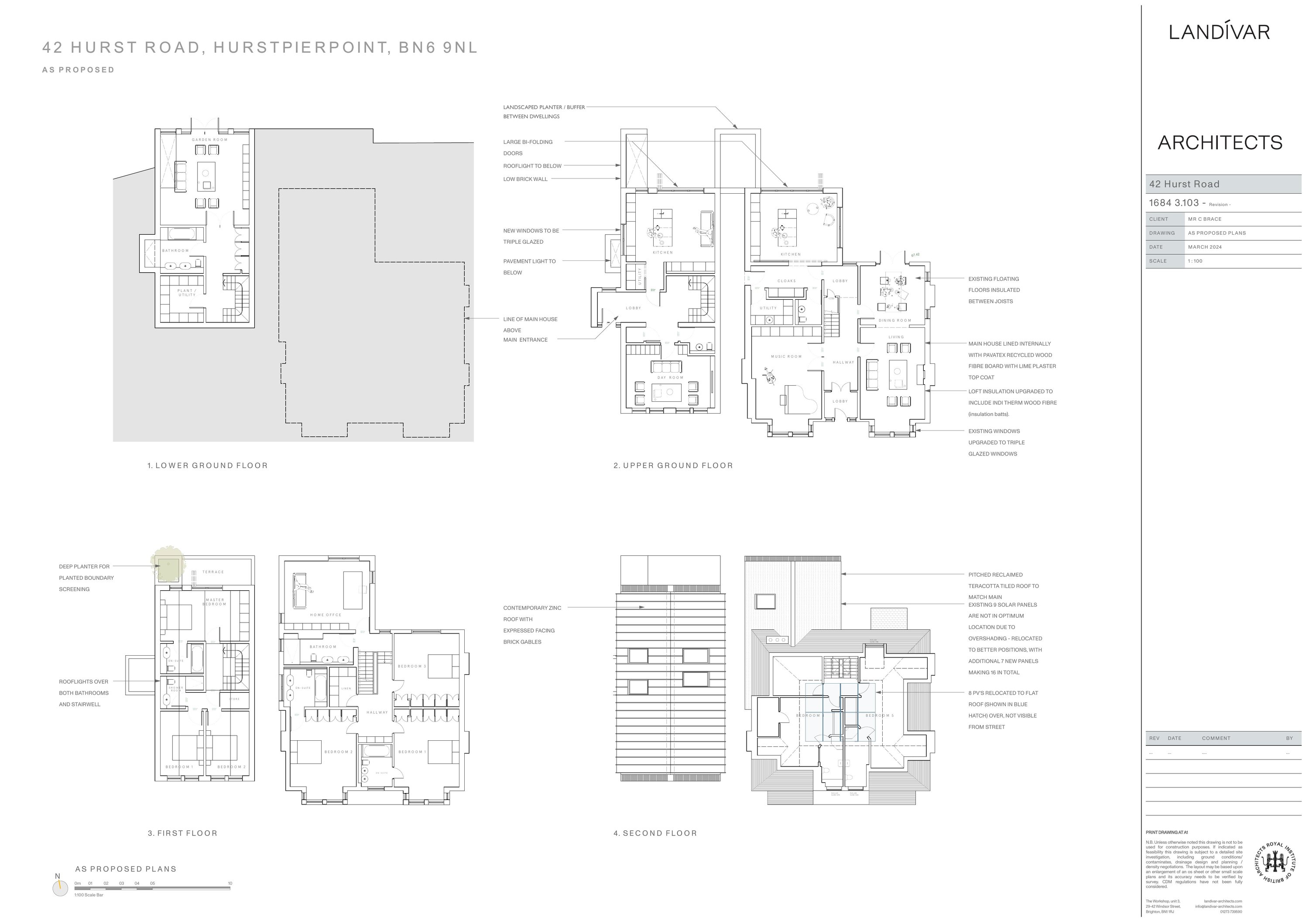
Subdivide residential plot to create two additional dwellings while retaining existing dwelling.

Full proposal

Subdivision of the existing residential plot to create 2no residential dwellings, alongside retention of existing dwelling. Amended drawings received on 26.01.2026.

Documents

1 Ham Farm Cottages Hurst Road
Representation letter
Not yet archived · Original link
1 Manor Cottages
Representation letter
Not yet archived · Original link
100 Wickham Hill
Representation letter
Not yet archived · Original link
100 Wickham Hill
Representation letter
Not yet archived · Original link
105 Iden Hurst
Representation letter
Not yet archived · Original link
140 Cuckfield Road
Representation letter
Not yet archived · Original link
143 Western Road
Representation letter
Not yet archived · Original link
16 Fairfield Crescent
Representation letter
Not yet archived · Original link
16 Ledgers Meadow
Representation letter
Not yet archived · Original link
21 Manor Gardens
Representation letter
Not yet archived · Original link
23 Iden Hurst
Representation letter
Not yet archived · Original link
25 Hurst Road
Representation letter
Not yet archived · Original link
25 Hurst Road
Representation letter
Not yet archived · Original link
29 Hurst Road
Representation letter
Not yet archived · Original link
29 Hurst Road
Representation letter
Not yet archived · Original link
3 Fairfield Crescent
Representation letter
Not yet archived · Original link
3 Hurst Road
Representation letter
Not yet archived · Original link
3 West Terrace
Representation letter
Not yet archived · Original link
31 Hurst Road
Representation letter
Not yet archived · Original link
36 Hassocks Road
Representation letter
Not yet archived · Original link
36 Hassocks Road
Representation letter
Not yet archived · Original link
36 Highfield Drive
Representation letter
Not yet archived · Original link
36 Highfield Drive
Representation letter
Not yet archived · Original link
36 Hurst Road
Representation letter
Not yet archived · Original link
36 Hurst Road
Representation letter
Not yet archived · Original link
4 Dr Denman Crescent
Representation letter
Not yet archived · Original link
4 Hurst Road
Representation letter
Not yet archived · Original link
4 South Avenue
Representation letter
Not yet archived · Original link
40 Hurst Road
Representation letter
Not yet archived · Original link
40 Hurst Road
Representation letter
Not yet archived · Original link
40 Hurst Road, Hassocks, BN6 9NL
Representation letter
Not yet archived · Original link
43 Blackthorns
Representation letter
Not yet archived · Original link
43 Hassocks Road
Representation letter
Not yet archived · Original link
43 Willow Way
Representation letter
Not yet archived · Original link
44 Hurst Road
Representation letter
Not yet archived · Original link
44 Hurst Road
Representation letter
Not yet archived · Original link
44 Hurst Road
Representation letter
Not yet archived · Original link
44 Hurst Road, Hassocks, West Sussex, BN6 9NL
Representation letter
Not yet archived · Original link
46 Hurst Road
Representation letter
Not yet archived · Original link
47 College Lane
Representation letter
Not yet archived · Original link
48 Weald Close
Representation letter
Not yet archived · Original link
49 Hassocks Road
Representation letter
Not yet archived · Original link
5 Hurst Road
Representation letter
Not yet archived · Original link
5 Hurst Road
Representation letter
Not yet archived · Original link
5 South Avenue
Representation letter
Not yet archived · Original link
52 Hurst Road
Representation letter
Not yet archived · Original link
52 Nursery Close
Representation letter
Not yet archived · Original link
52 Nursery Close
Representation letter
Not yet archived · Original link
54 Hurst Road
Representation letter
Not yet archived · Original link
6 Hurst Road
Representation letter
Not yet archived · Original link
6 Hurst Road
Representation letter
Not yet archived · Original link
6 South Avenue
Representation letter
Not yet archived · Original link
6 Woodland Walk
Representation letter
Not yet archived · Original link
63a Wickham Hill
Representation letter
Not yet archived · Original link
69 Iden Hurst
Representation letter
Not yet archived · Original link
7 Hurst Road
Representation letter
Not yet archived · Original link
72 College Lane
Representation letter
Not yet archived · Original link
72 Wickham Hill
Representation letter
Not yet archived · Original link
74 College Lane
Representation letter
Not yet archived · Original link
8 Mildred, Durrant Way
Representation letter
Not yet archived · Original link
80 Wickham Hill
Representation letter
Not yet archived · Original link
84 Wickham Hill
Representation letter
Not yet archived · Original link
84 Wickham Hill
Representation letter
Not yet archived · Original link
85 Cuckfield Road
Representation letter
Not yet archived · Original link
89 College Lane
Representation letter
Not yet archived · Original link
90 Wickham Hill
Representation letter
Not yet archived · Original link
90 Wickham Hill
Representation letter
Not yet archived · Original link
96 Western Road
Representation letter
Not yet archived · Original link
96 Western Road
Representation letter
Not yet archived · Original link
Amended Existing Block and Location Plan 1684 1.001_Rev B
Latest plan
Not yet archived · Original link
Amended Proposed Block and Location Plan. 1684 3.001_Rev B
Latest plan
Not yet archived · Original link
Appendix to 44 Hurst Road, Hassocks, West Sussex, BN6 9NL
Supporting statement
Not yet archived · Original link
Application Form
Application form
Not yet archived · Original link
Arboricultural Addendum Note
Supporting statement
Not yet archived · Original link
Arboricultural Report
Supporting statement
Not yet archived · Original link
Arborsense - Tree Addendum. Lewis & Co
Superseded Documents
Not yet archived · Original link
As Existing Elevations_1684 1.003
Latest plan
Not yet archived · Original link
As Existing Location and Block Plan_1684 1.001 Rev A
Latest plan
Not yet archived · Original link
As Existing Photographs_1684 1.004
Photograph
Not yet archived · Original link
As Existing Photographs_1684 1.005
Photograph
Not yet archived · Original link
As Proposed Axonometric_1684 3.010
Latest plan
Not yet archived · Original link
As Proposed Context Elevations_1684 3.006 Rev A
Latest plan
Not yet archived · Original link
As Proposed Elevations_1684 3.105 Rev B
Latest plan
Not yet archived · Original link
As Proposed Entry Pavilion_1684 3.008 Rev B
Latest plan
Not yet archived · Original link
As Proposed Location and Block Plan_1684 3.001 Rev A
Latest plan
Not yet archived · Original link
As Proposed Pool Hall Plan_1684 3.003 Rev B
Latest plan
Not yet archived · Original link
As Proposed Sections_1684 3.004 Rev A
Latest plan
Not yet archived · Original link
As Proposed Sections_1684 3.005 Rev A
Latest plan
Not yet archived · Original link
As Proposed Views_1684 3.009 Rev B
Latest plan
Not yet archived · Original link
Barndoor Cottage Sandy Lane
Representation letter
Not yet archived · Original link
Biodiversity Net Gain Statement
Supporting statement
Not yet archived · Original link
BNG Metric
Supporting statement
Not yet archived · Original link
BNG Statement
Supporting statement
Not yet archived · Original link
Corner House Manor Gardens
Representation letter
Not yet archived · Original link
Covering Letter for Arboricultural Addendum Note
Correspondence
Not yet archived · Original link
Crossways Belmont Lane
Representation letter
Not yet archived · Original link
Crossways Belmont Lane
Representation letter
Not yet archived · Original link
Design & Access Statement including Sustainability Statement_1684 Rev B
Design and Access Statement
Not yet archived · Original link
Downland House Sandy Lane
Representation letter
Not yet archived · Original link
Drainage comments
Consultation response
Not yet archived · Original link
Ecology comments - Place Services
Consultation response
Not yet archived · Original link
Expert letter from lighting consultant for 44 Hurst Road sent via Richard Buxton Solicitors
Representation letter
Not yet archived · Original link
Flat 3 Nettlesworth
Representation letter
Not yet archived · Original link
Flat 3 Nettlesworth 76 Wickham Hill
Representation letter
Not yet archived · Original link
Flat 4 Nettlesworth 76 Wickham Hill
Representation letter
Not yet archived · Original link
Foul & Surface Water Drainage Statement
Supporting statement
Not yet archived · Original link
Hassocks Parish Council
Consultation response
Not yet archived · Original link
Hassocks Parish Council
Consultation response
Not yet archived · Original link
Heritage Statement
Supporting statement
Not yet archived · Original link
JP:RR Amended Drawings
Correspondence
Not yet archived · Original link
Lane House Wickham Hill
Representation letter
Not yet archived · Original link
Lane House, Wickham Hill
Representation letter
Not yet archived · Original link
MB:RR Place Services Archaeology
Consultation response
Not yet archived · Original link
MSDC Neighbour Notification Sheet
Site notes and file notes
Not yet archived · Original link
MSDC Street Naming and Numbering
Consultation response
Not yet archived · Original link
objection - 44 Hurst Road
Representation letter
Not yet archived · Original link
objection - 1 Ham Farm Cottages
Representation letter
Not yet archived · Original link
objection - 10 Hurst Road
Representation letter
Not yet archived · Original link
Objection - 10 Hurst Road
Representation letter
Not yet archived · Original link
objection - 11 Hurst Road
Representation letter
Not yet archived · Original link
Objection - 19 Hurst Road
Representation letter
Not yet archived · Original link
objection - 1A Bromley Close
Representation letter
Not yet archived · Original link
objection - 25a Hurst Road
Representation letter
Not yet archived · Original link
Objection - 29 Hurst Road
Representation letter
Not yet archived · Original link
objection - 3 Hurst Road
Representation letter
Not yet archived · Original link
objection - 31 Hurst Road
Representation letter
Not yet archived · Original link
Objection - 33 Hurst Road
Representation letter
Not yet archived · Original link
objection - 33 Hurst Road
Representation letter
Not yet archived · Original link
objection - 40 Hurst Road
Representation letter
Not yet archived · Original link
Objection - 40 Hurst Road
Representation letter
Not yet archived · Original link
objection - 44 Hurst Road
Representation letter
Not yet archived · Original link
objection - 44 Hurst Road
Representation letter
Not yet archived · Original link
objection - 46 Hurst Road
Representation letter
Not yet archived · Original link
objection - 5 Hurst Road
Representation letter
Not yet archived · Original link
objection - 5 Hurst Road
Representation letter
Not yet archived · Original link
Objection - 52 Hurst Road
Representation letter
Not yet archived · Original link
objection - 6 Hurst Road
Representation letter
Not yet archived · Original link
objection - 7 Hurst Road
Representation letter
Not yet archived · Original link
objection - 8 Hurst Road
Representation letter
Not yet archived · Original link
objection - 9 Hurst Road
Representation letter
Not yet archived · Original link
Objection - 94 Wickham Hill
Representation letter
Not yet archived · Original link
objection - Crossways Belmont Lane Hassocks
Representation letter
Not yet archived · Original link
objection - Hambledon - 29 Hurst Road
Representation letter
Not yet archived · Original link
objection - Richard Buxton Solicitors for 44 Hurst Road
Representation letter
Not yet archived · Original link
objection - Silver Trees 27 Hurst Road
Representation letter
Not yet archived · Original link
objection - Silver Trees, 27 Hurst Road
Representation letter
Not yet archived · Original link
Place Services Archaeology comments
Consultation response
Not yet archived · Original link
Planning Statement
Supporting statement
Not yet archived · Original link
Preliminary Ecological Appraisal
Supporting statement
Not yet archived · Original link
Proposed Habitat Plan
Latest plan
Not yet archived · Original link
Silvertrees 27 Hurst Road
Representation letter
Not yet archived · Original link
St Lawrence Way
Representation letter
Not yet archived · Original link
Supporting Letter from agent.
Correspondence
Not yet archived · Original link
Tanglewood 38 Hurst Road
Representation letter
Not yet archived · Original link
Tanglewood 38 Hurst Road
Representation letter
Not yet archived · Original link
The Dell Hurst Road
Representation letter
Not yet archived · Original link
The Oaks Henfield Road
Representation letter
Not yet archived · Original link
Topographical Survey_RMS1242-01
Latest plan
Not yet archived · Original link
Tree Officer comments
Consultation response
Not yet archived · Original link
Tussocks Croft
Representation letter
Not yet archived · Original link
WSCC highways
Consultation response
Not yet archived · Original link

Have your say

Your comment matters. Councils must consider every representation that raises material planning considerations.

Write a comment