← Mid Sussex District Council

Status

Pending Consideration New housing
Received
08 Dec 2025
New homes
125

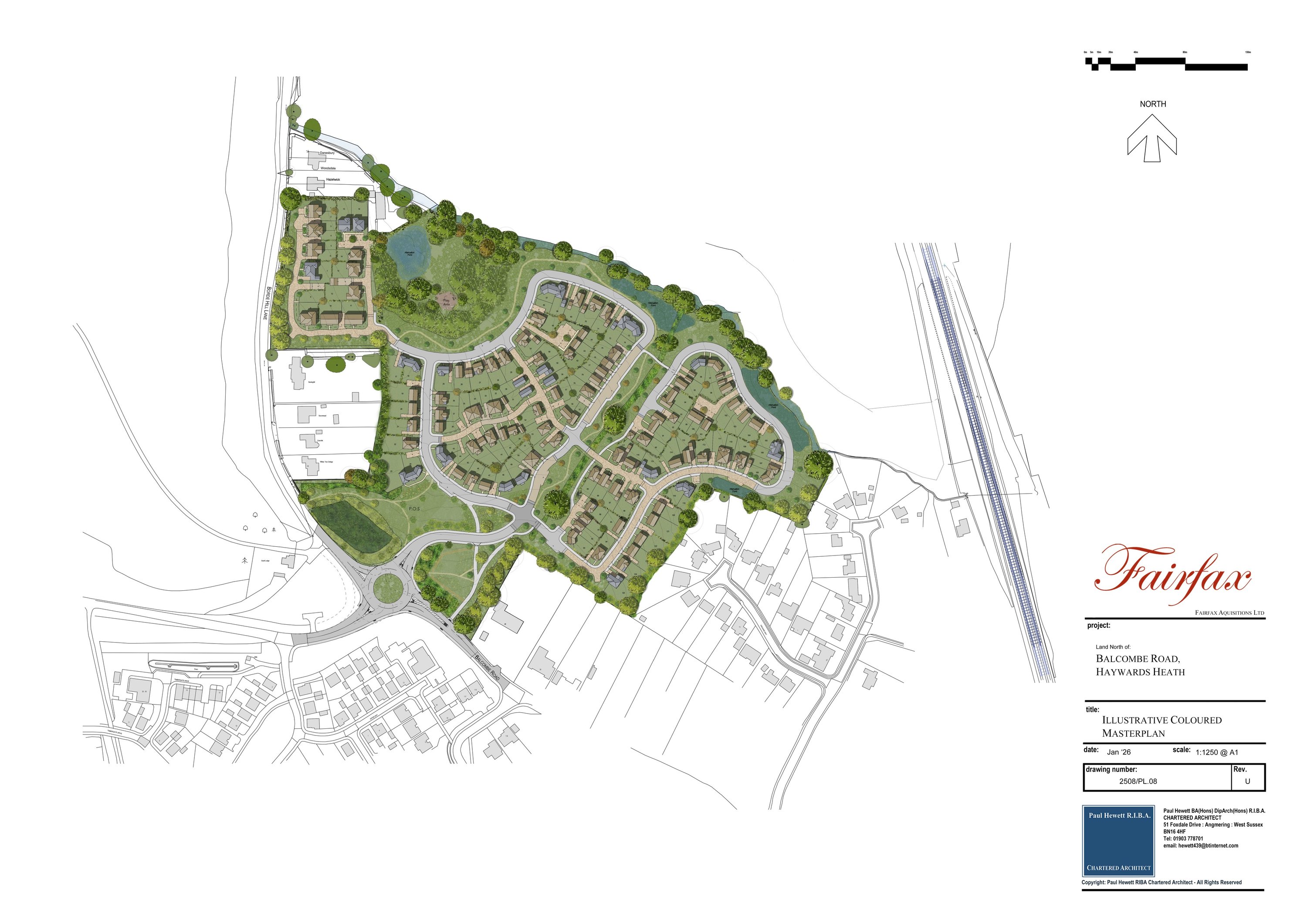
Full proposal

Outline planning application for the erection of up to 125 dwellings, together with the provision of landscaping, open space, and associated development works, with access from Balcombe Road. All matters reserved except for access.

Documents

Danesbury,, Borde Hill Lane,, Haywards Heath,, West Sussex, RH16 1XP
Representation letter
Not yet archived · Original link
Design and Access Statement
Archived · Original link
Supporting statement
Archived · Original link
Latest plan
Archived · Original link
Supporting statement
Archived · Original link

Have your say

Your comment matters. Councils must consider every representation that raises material planning considerations.

Write a comment