DM/26/0124
Mid Sussex District Council
Status
No Objection
House extension
Received
19 Jan 2026
New homes
0
Full proposal
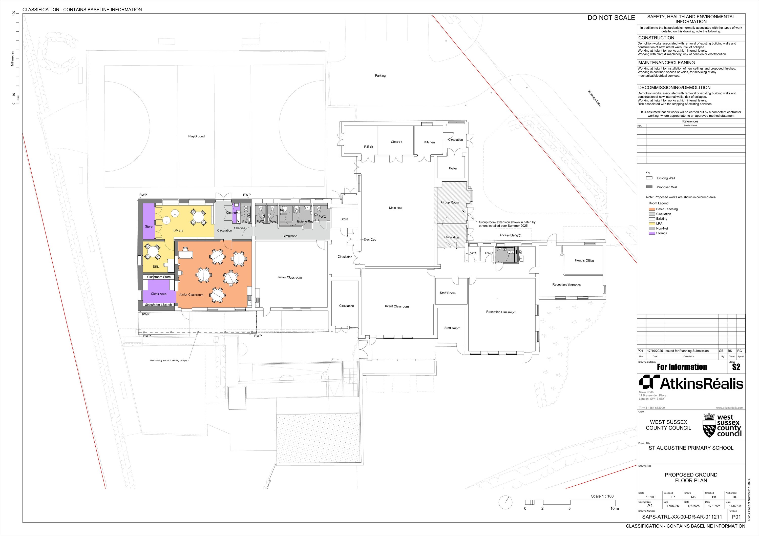
Demolition of the existing modular classroom building and the erection of a single storey side and rear extension with associated works.
Documents
Latest plan
Archived
· Original link
Latest plan
Archived
· Original link
Latest plan
Archived
· Original link
Latest plan
Archived
· Original link
Latest plan
Archived
· Original link
Latest plan
Archived
· Original link
Latest plan
Archived
· Original link
Latest plan
Archived
· Original link
Latest plan
Archived
· Original link
Latest plan
Archived
· Original link
Have your say
Your comment matters. Councils must consider every representation that raises material planning considerations.