← Mid Sussex District Council

Status

Pending Consideration Demolition
Received
21 Jan 2026
New homes
0

Full proposal

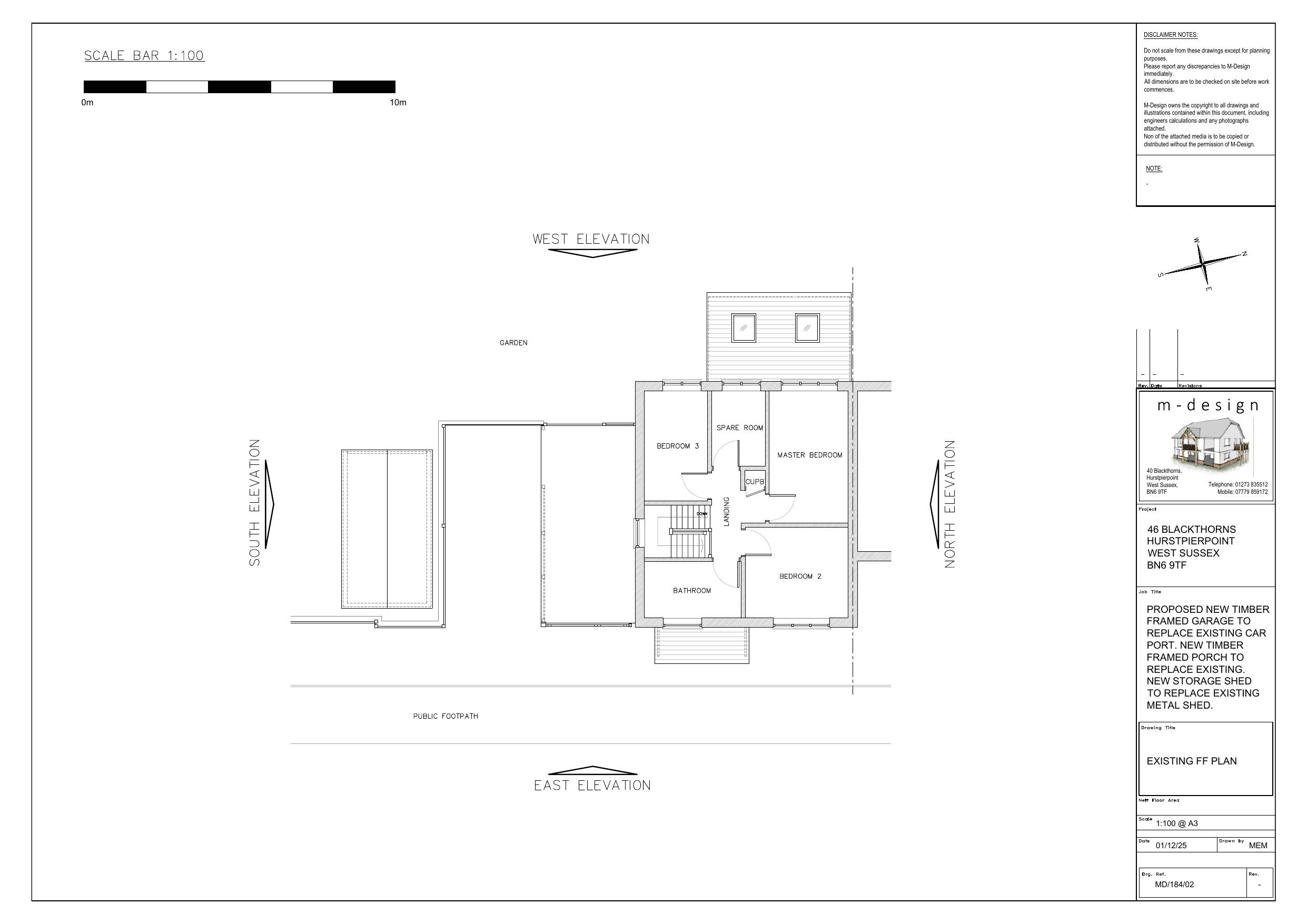
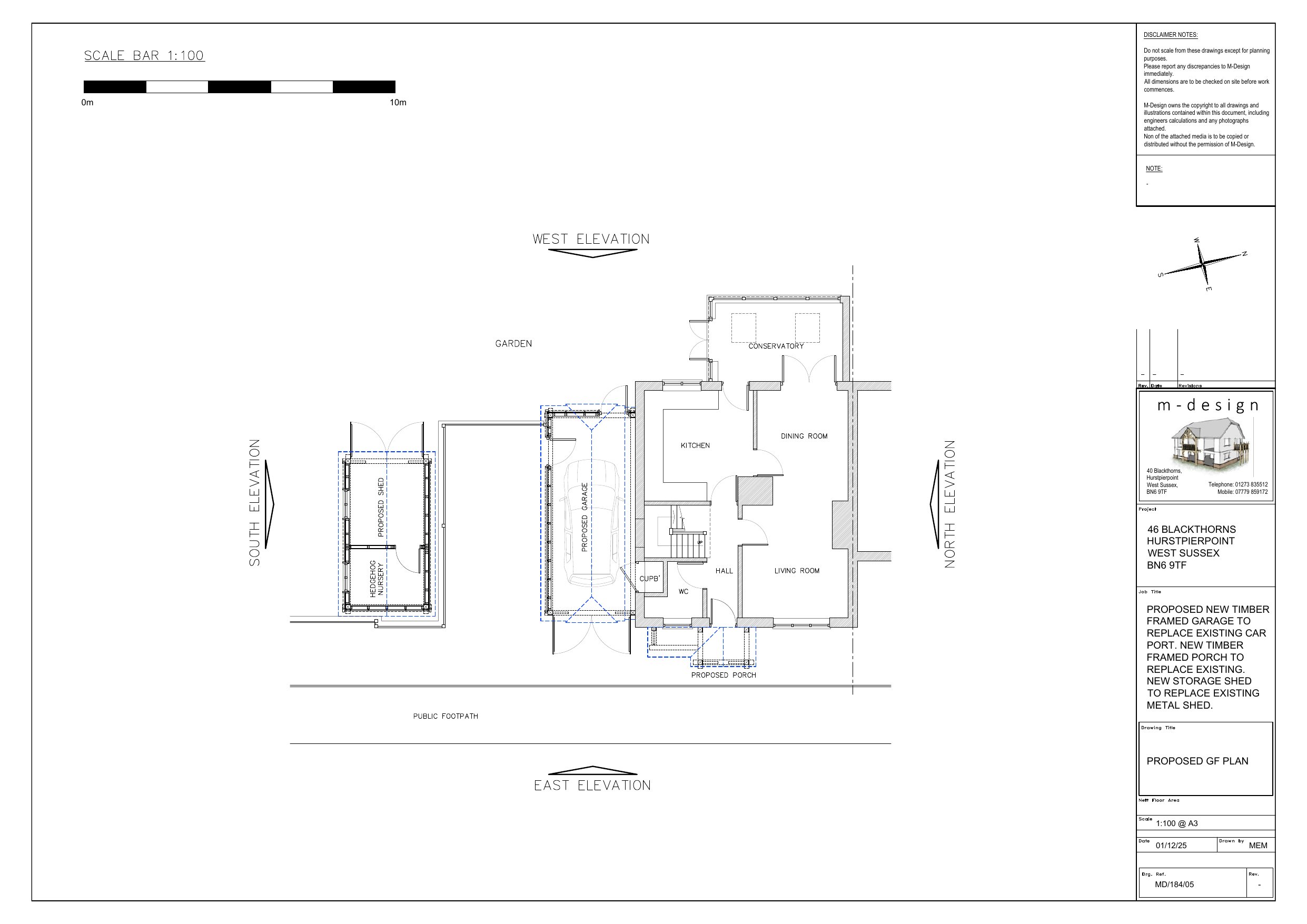
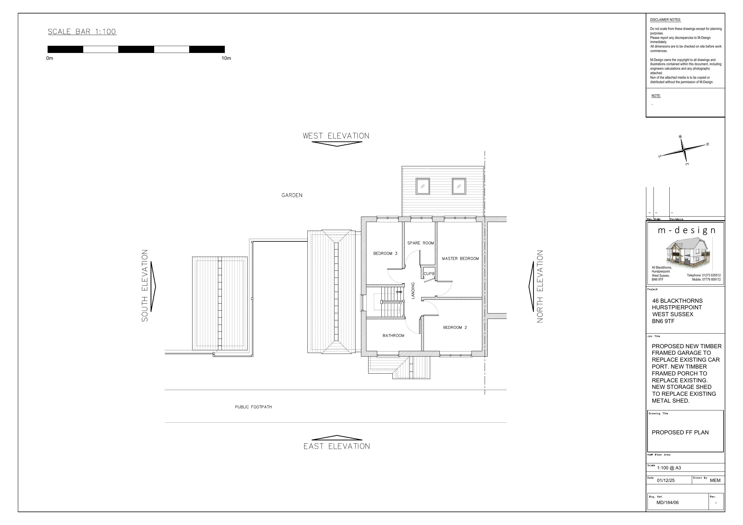
Demolition of car port, shed and porch. Erection of garage, shed and porch

Have your say

Your comment matters. Councils must consider every representation that raises material planning considerations.

Write a comment