DM/26/0154
Mid Sussex District Council
Status
Pending Consideration
Commercial
Received
22 Jan 2026
New homes
0
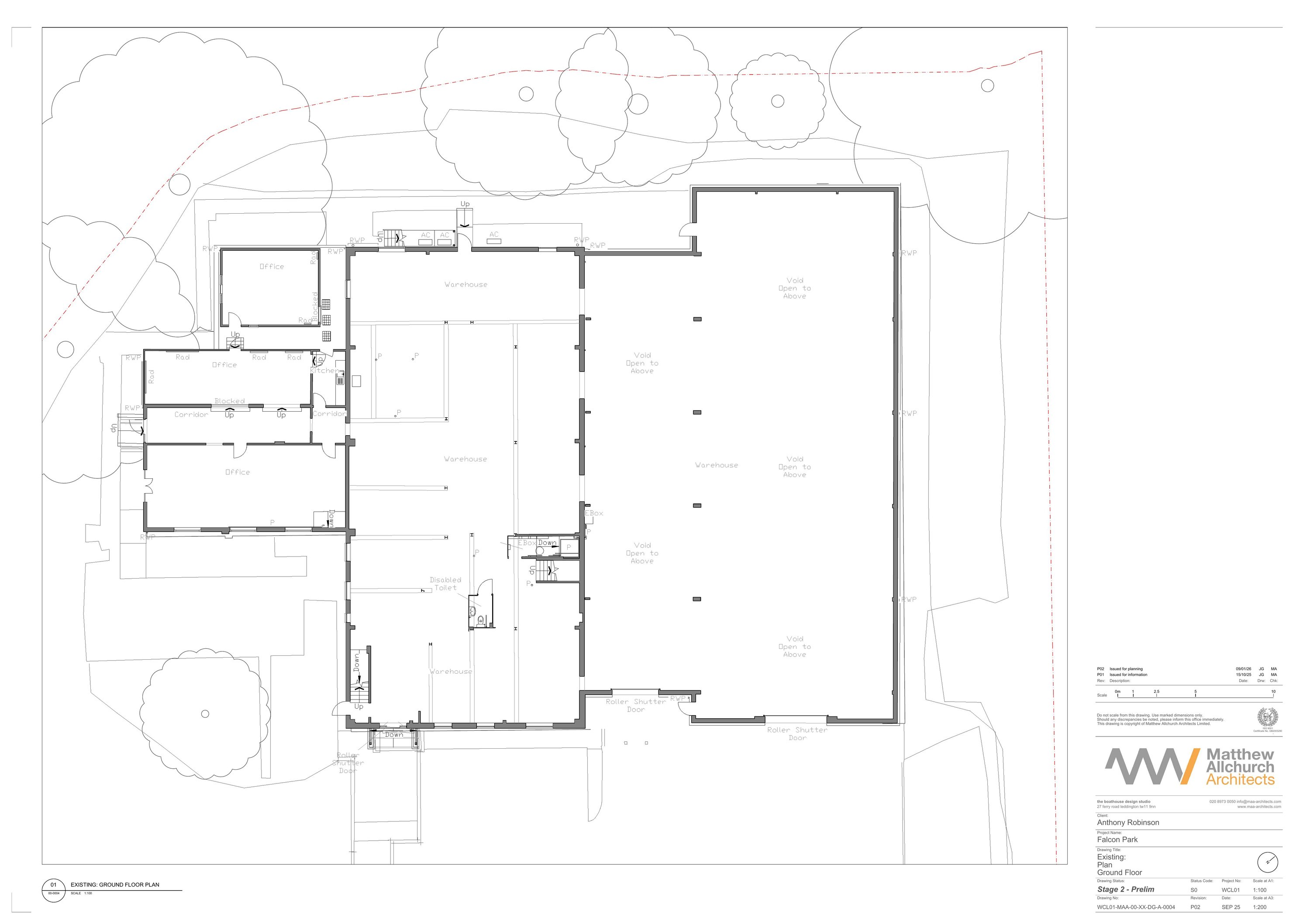
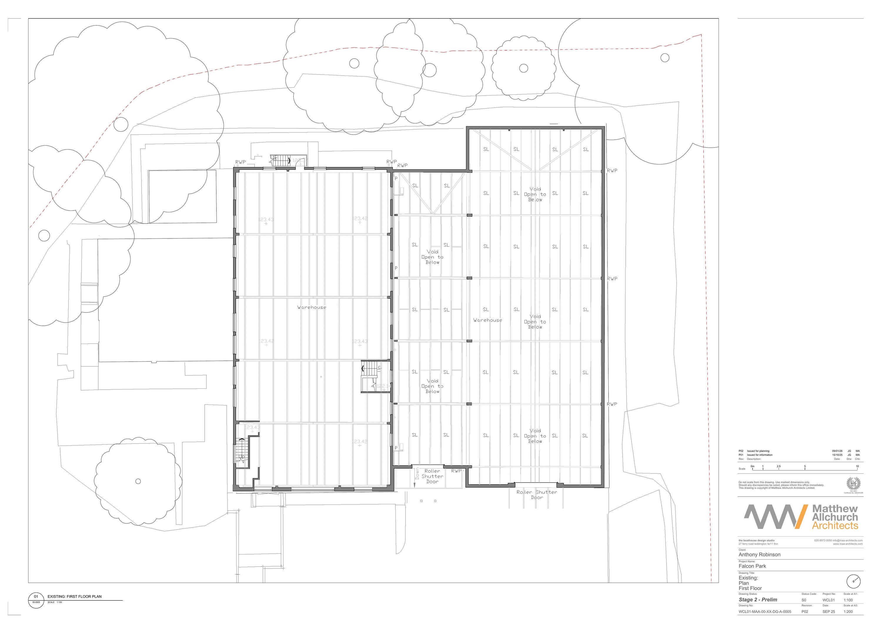
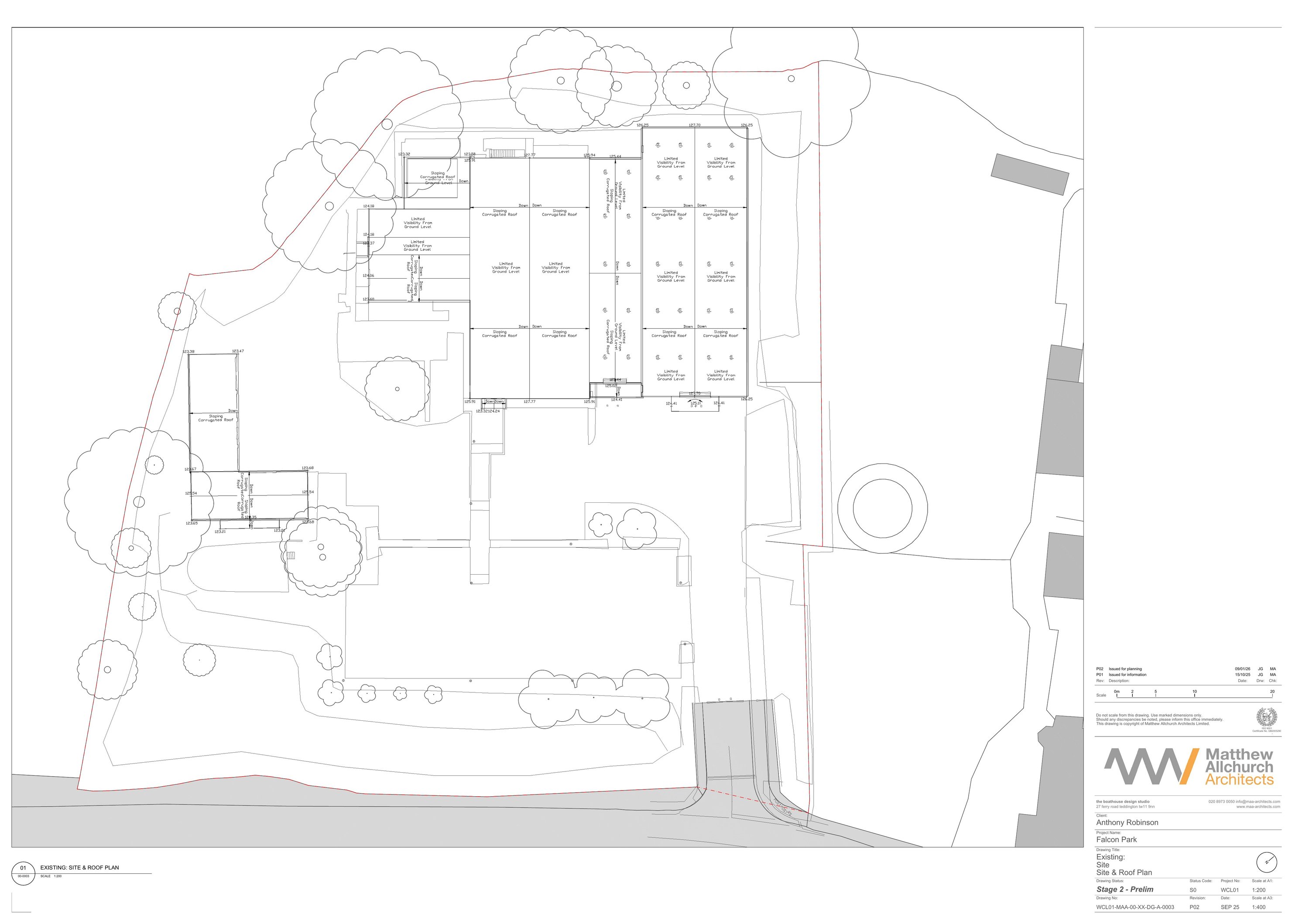
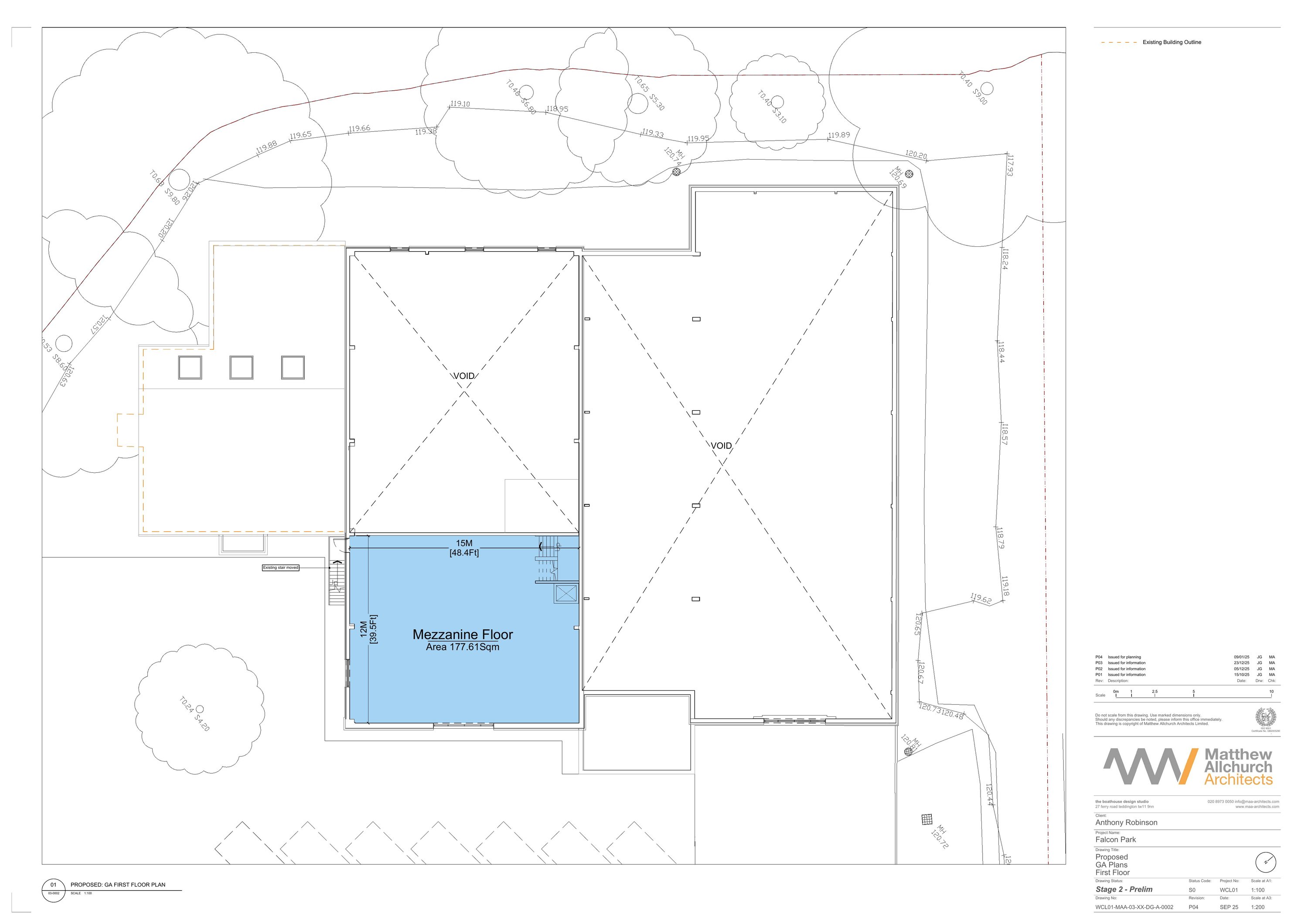
Full proposal
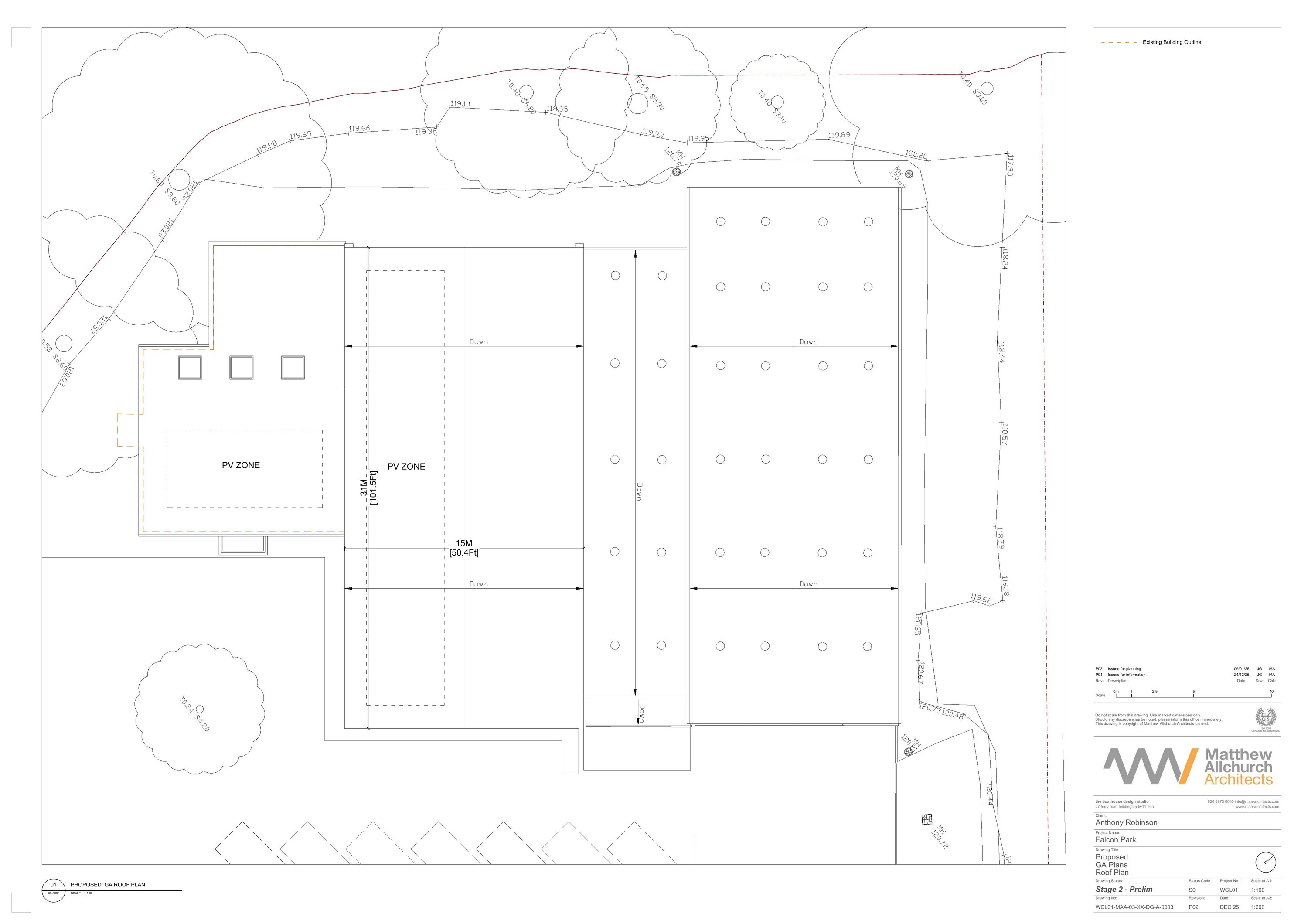
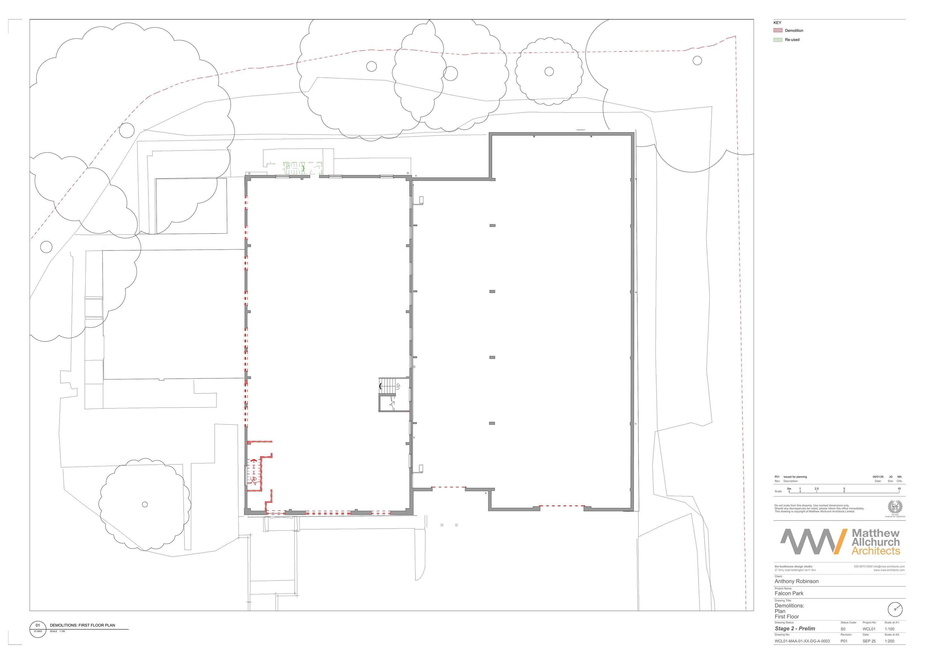
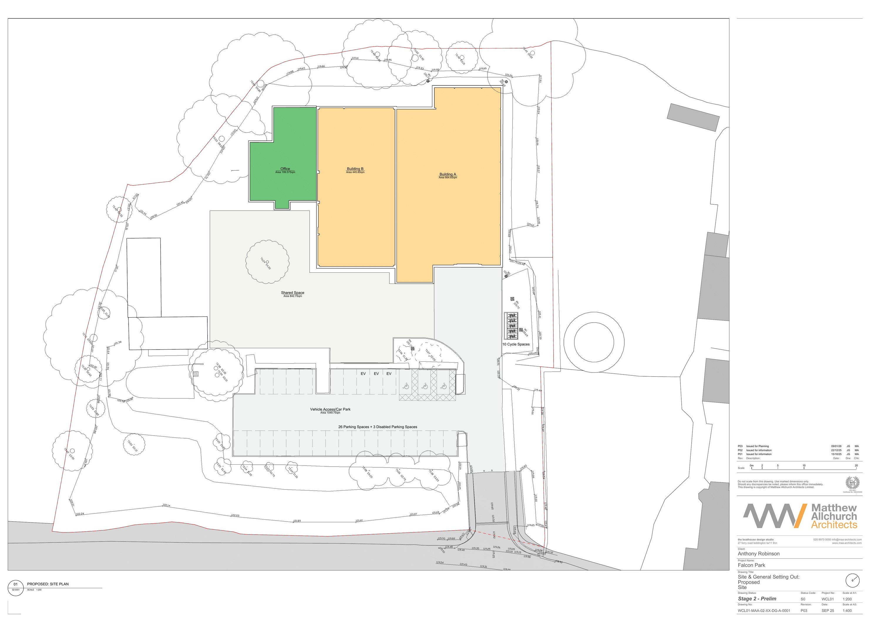
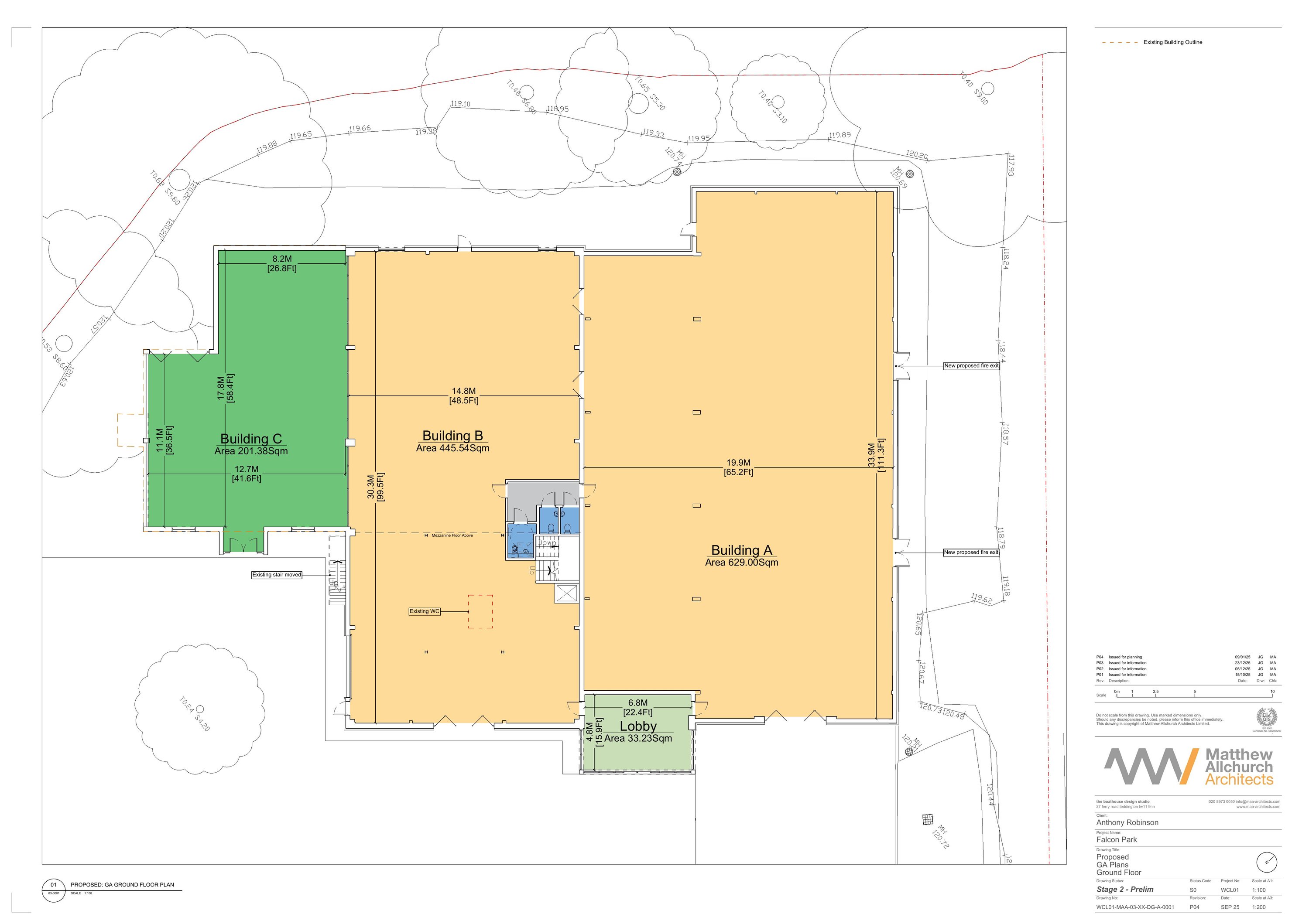
Use of Buildings A and B for storage and distribution (Class B8) along with external alterations to include a single storey front extension to Building A to create a lobby area, recladding, new windows and loading bays, demolition of Building C and construction of a replacement single storey office building (Class E) (Amended elevations received 30.01.2026)
Documents
Latest plan
Archived
· Original link
Latest plan
Archived
· Original link
Latest plan
Archived
· Original link
Have your say
Your comment matters. Councils must consider every representation that raises material planning considerations.