← Mid Sussex District Council

Status

Pending Consideration Change of use
Received
22 Jan 2026
New homes
6

Full proposal

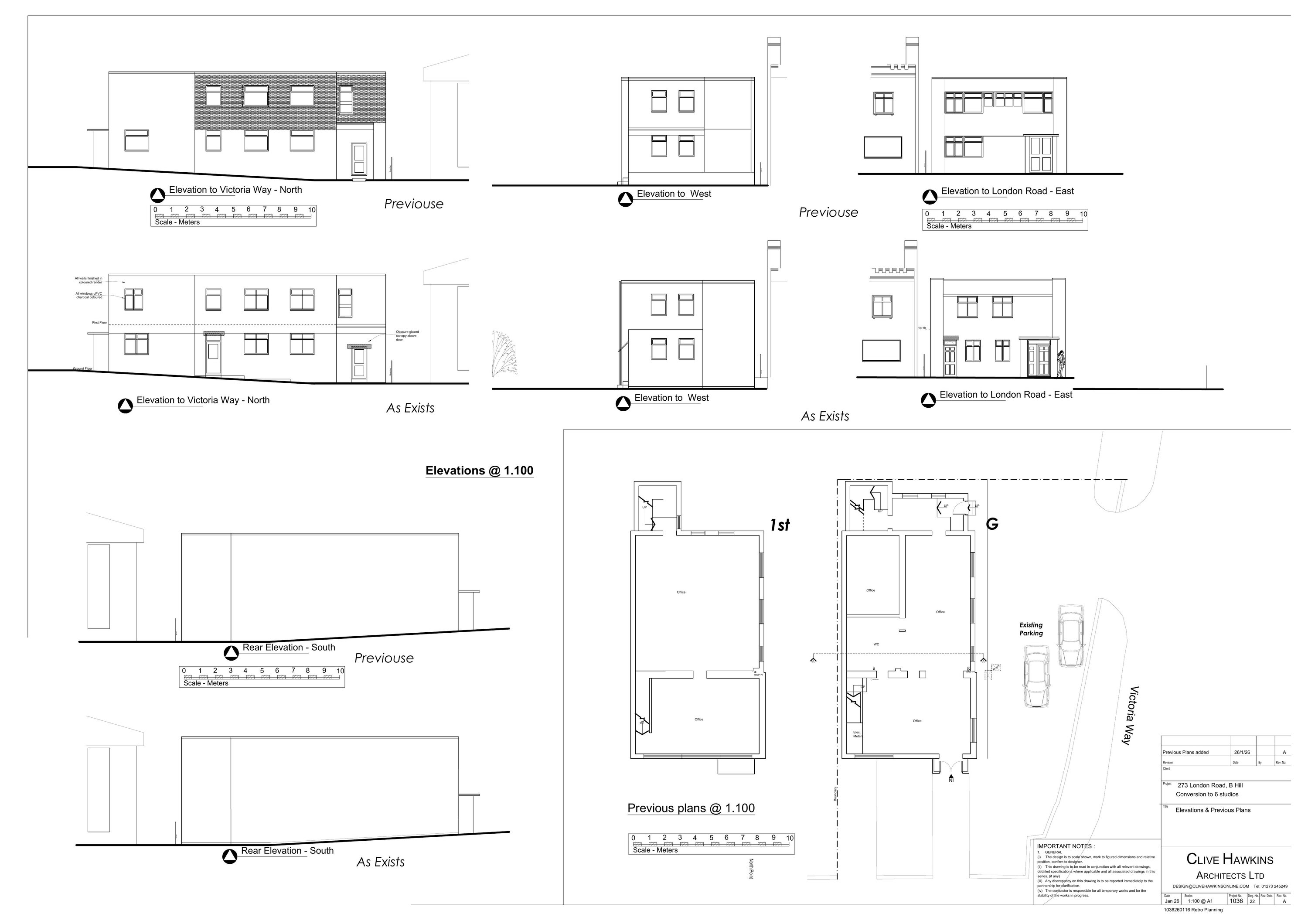
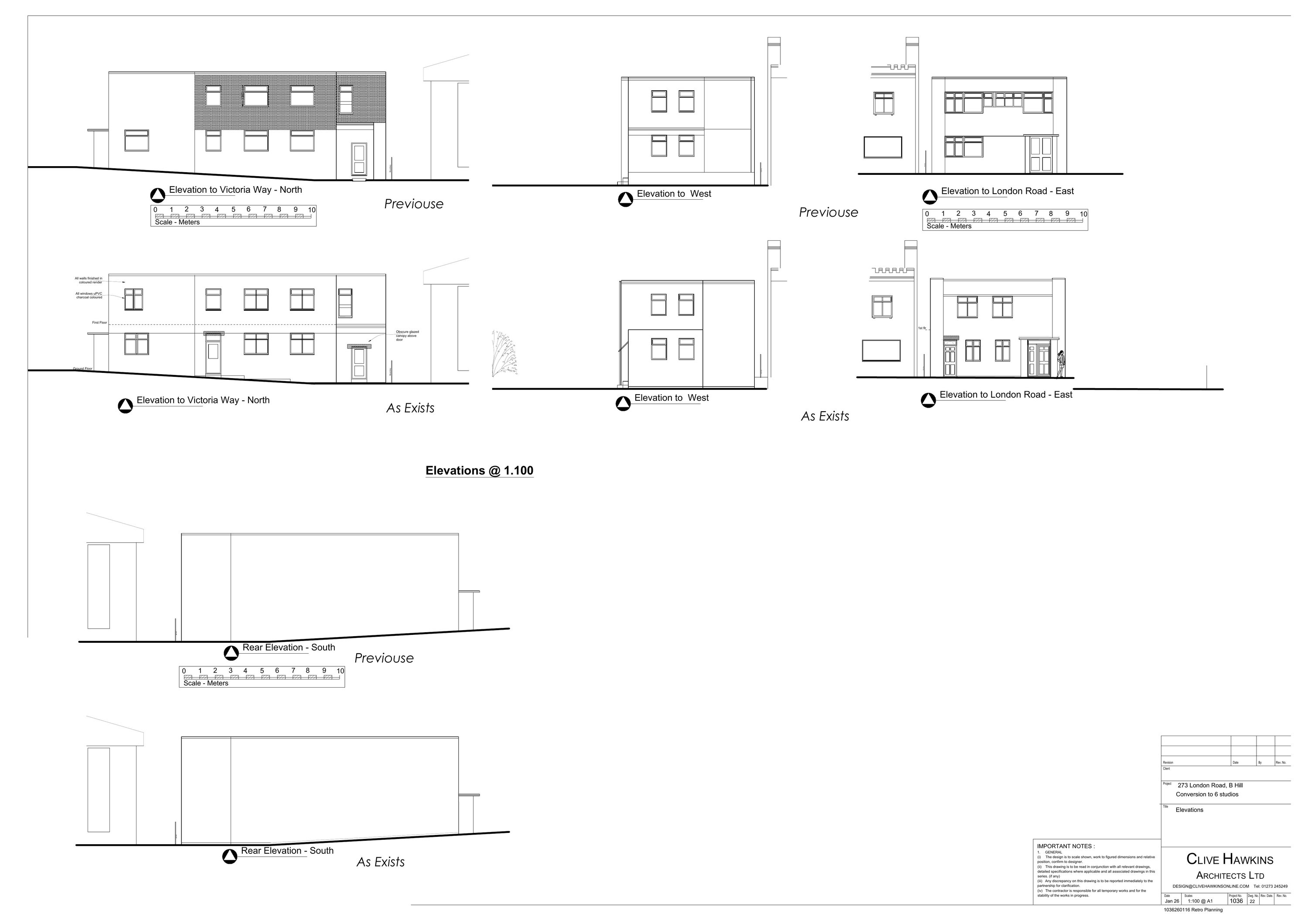
Retrospective application for conversion and external works to building to form 6 flats

Documents

Latest plan
Archived · Original link
Application form
Archived · Original link
Consultation response
Archived · Original link
Correspondence
Archived · Original link
Consultation response
Archived · Original link
Latest plan
Archived · Original link
Site notes and file notes
Archived · Original link
Supporting statement
Archived · Original link
Site notes and file notes
Archived · Original link
Photograph
Archived · Original link
Consultation response
Archived · Original link
Consultation response
Archived · Original link
Supporting statement
Archived · Original link
Consultation response
Archived · Original link
Consultation response
Archived · Original link
Consultation response
Archived · Original link

Have your say

Your comment matters. Councils must consider every representation that raises material planning considerations.

Write a comment