← Mid Sussex District Council

Status

Pending Consideration House extension
Received
Last month
New homes
0

Full proposal

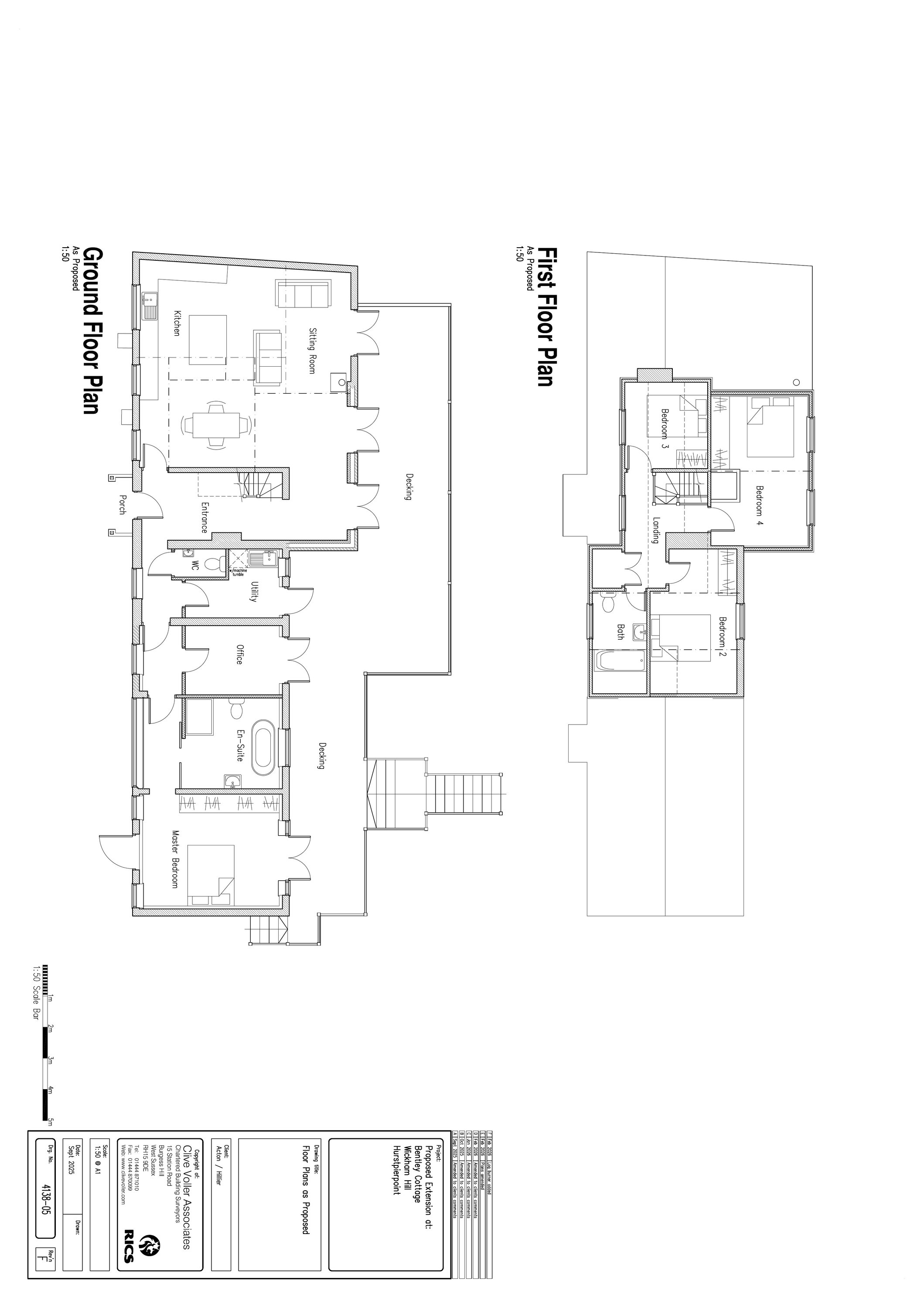
Demolish existing building to rear. Proposed erection of a two storey rear extension. Alterations to South elevation. Decking to rear elevation with steps down to garden level and high privacy screen. Replacing window to existing kitchen with French doors and glass handrail. Addition of a log burner and flue.

Documents

Application form
Archived · Original link
Latest plan
Archived · Original link
Latest plan
Archived · Original link
Site notes and file notes
Archived · Original link
Consultation response
Archived · Original link
Correspondence
Archived · Original link
Latest plan
Archived · Original link
Site notes and file notes
Archived · Original link
Site notes and file notes
Archived · Original link
Consultation response
Archived · Original link
Consultation response
Archived · Original link

Have your say

Your comment matters. Councils must consider every representation that raises material planning considerations.

Write a comment