← Mid Sussex District Council

Status

Pending Consideration House extension
Received
Last month
New homes
0

Full proposal

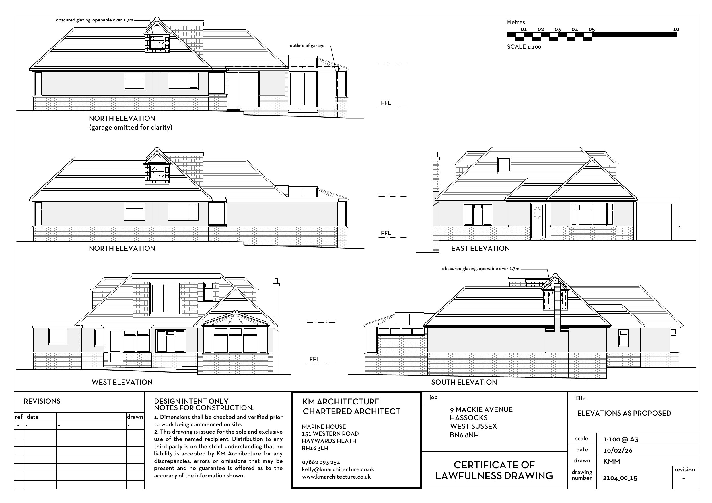
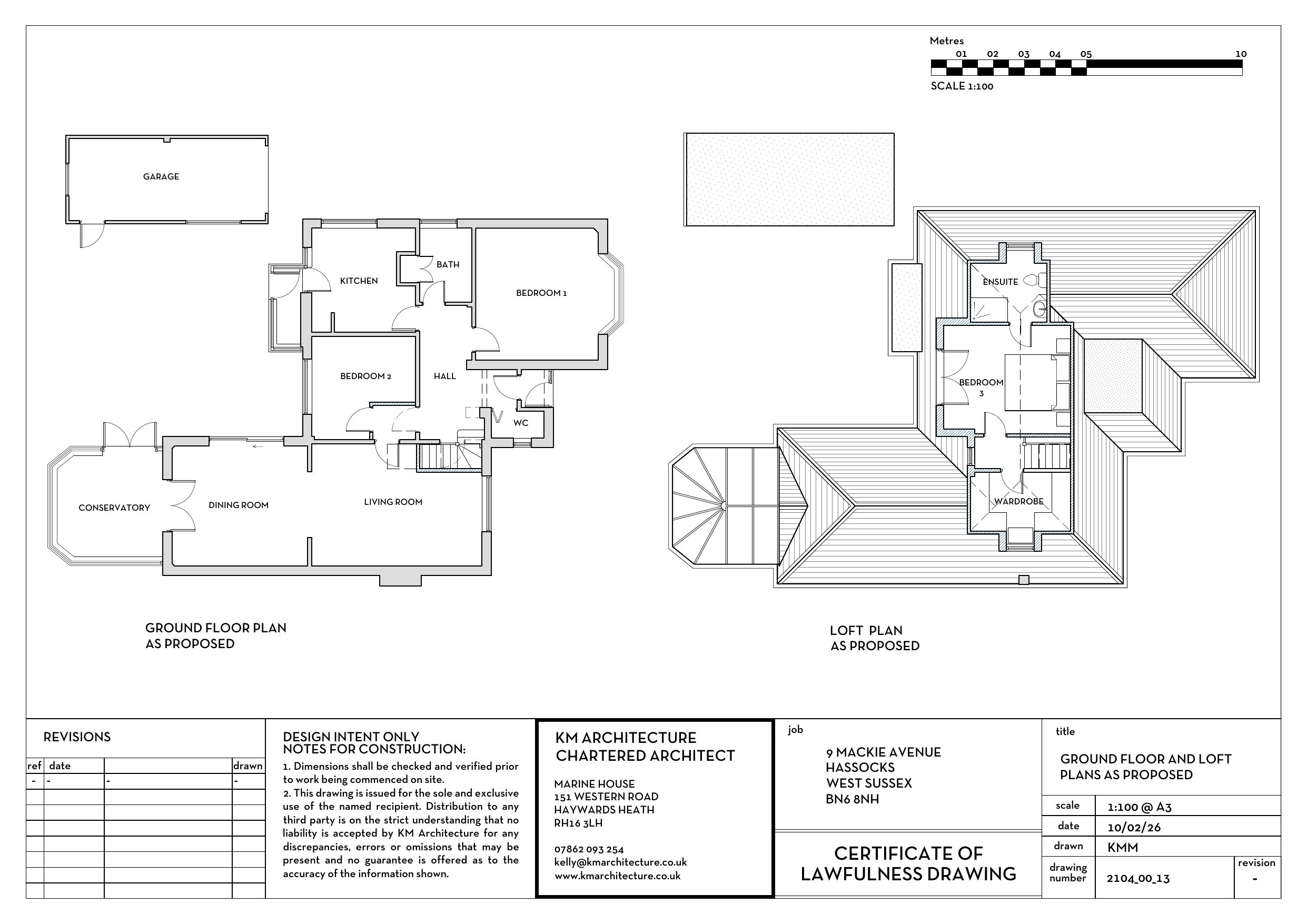
Loft conversion including the addition of a flat-roofed rear dormer, two smaller hipped side dormers and the addition of one roof window.

Have your say

Your comment matters. Councils must consider every representation that raises material planning considerations.

Write a comment