← Mid Sussex District Council

Status

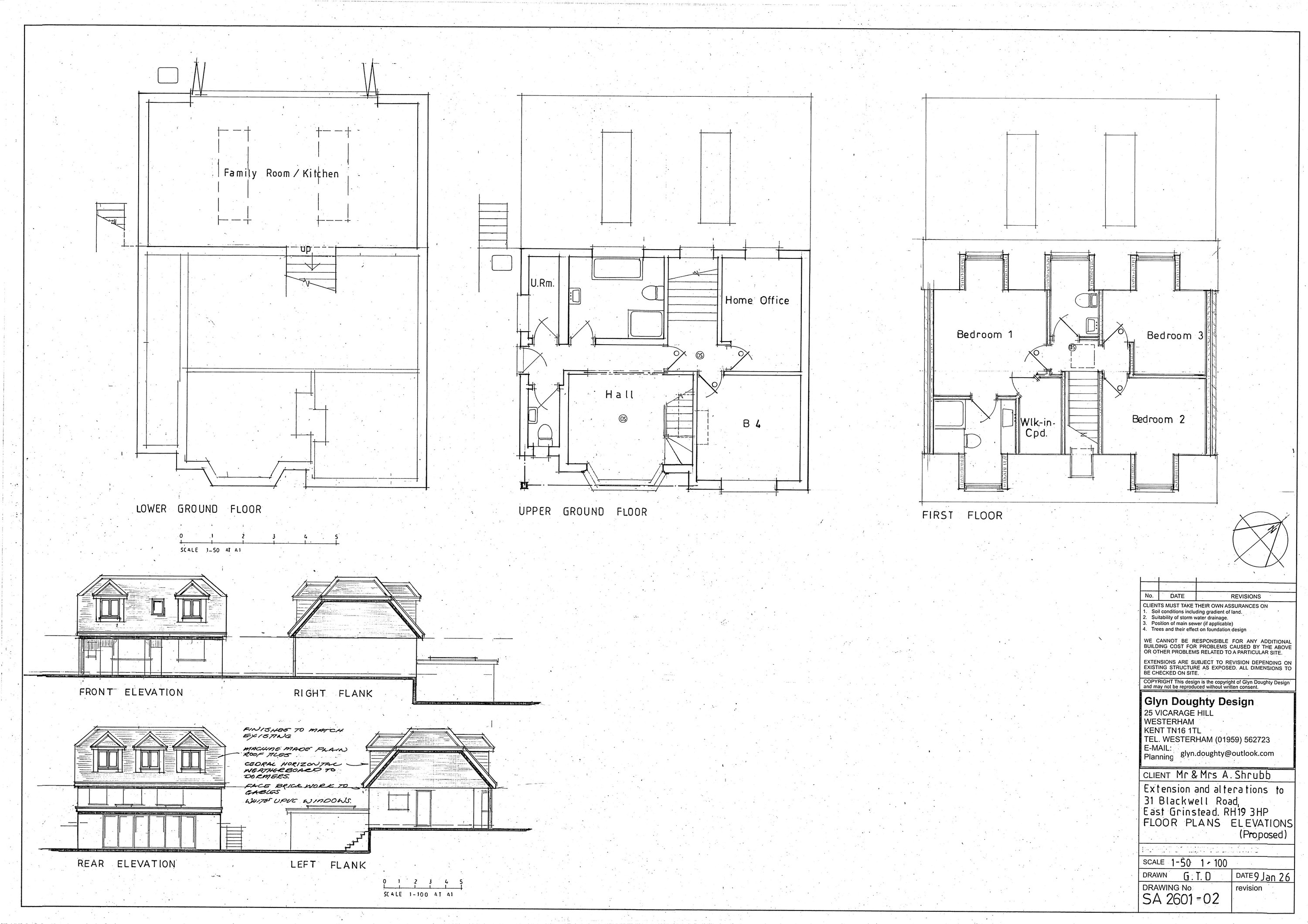
Pending Consideration House extension
Received
Last month
New homes
0

Full proposal

New pitched roof to existing bungalow with 600mm increase in ridge height and first floor dormers to front and rear elevation.

Have your say

Your comment matters. Councils must consider every representation that raises material planning considerations.

Write a comment