← Mid Sussex District Council

Status

Pending Consideration House extension
Received
Last month
New homes
0

Full proposal

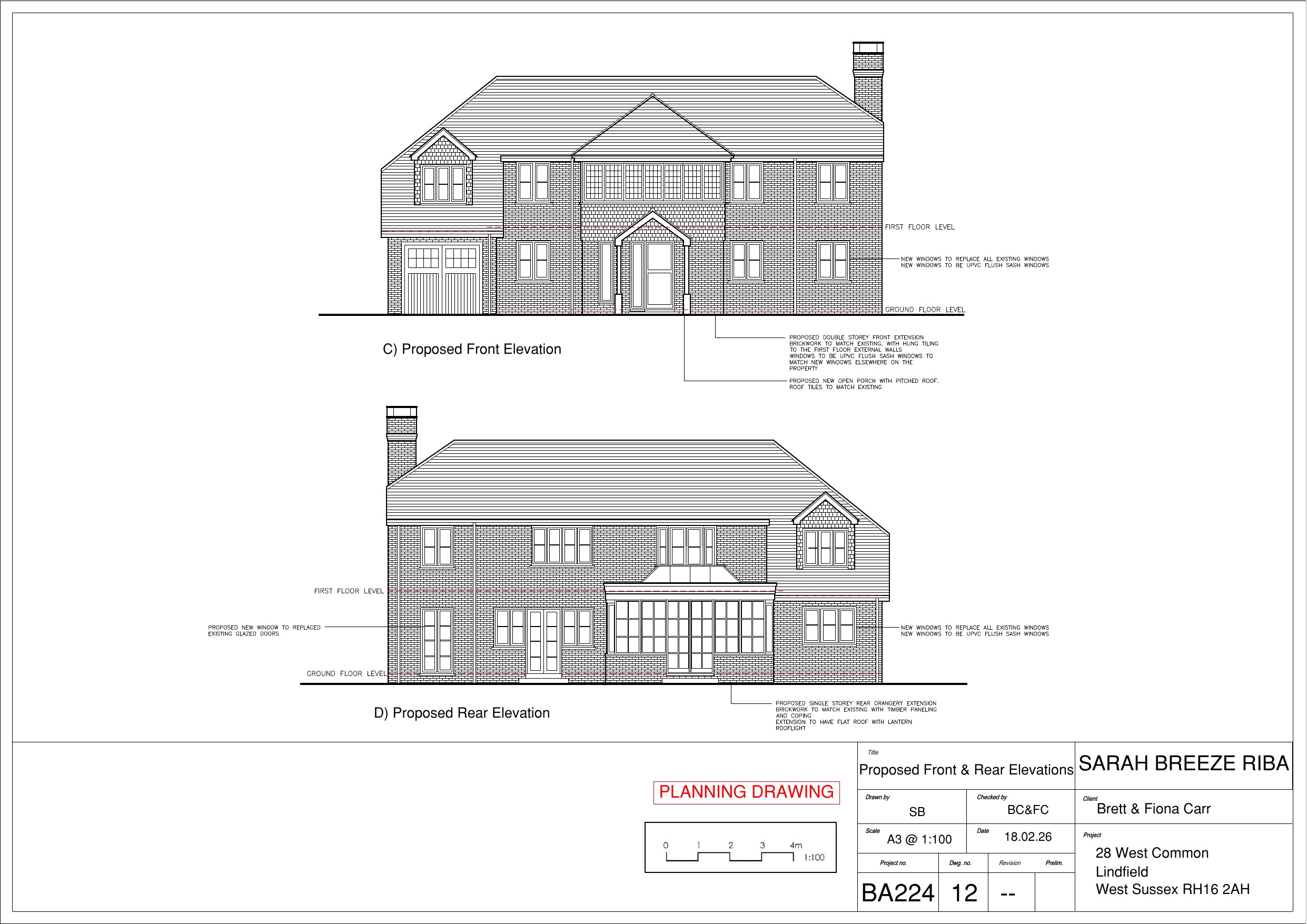
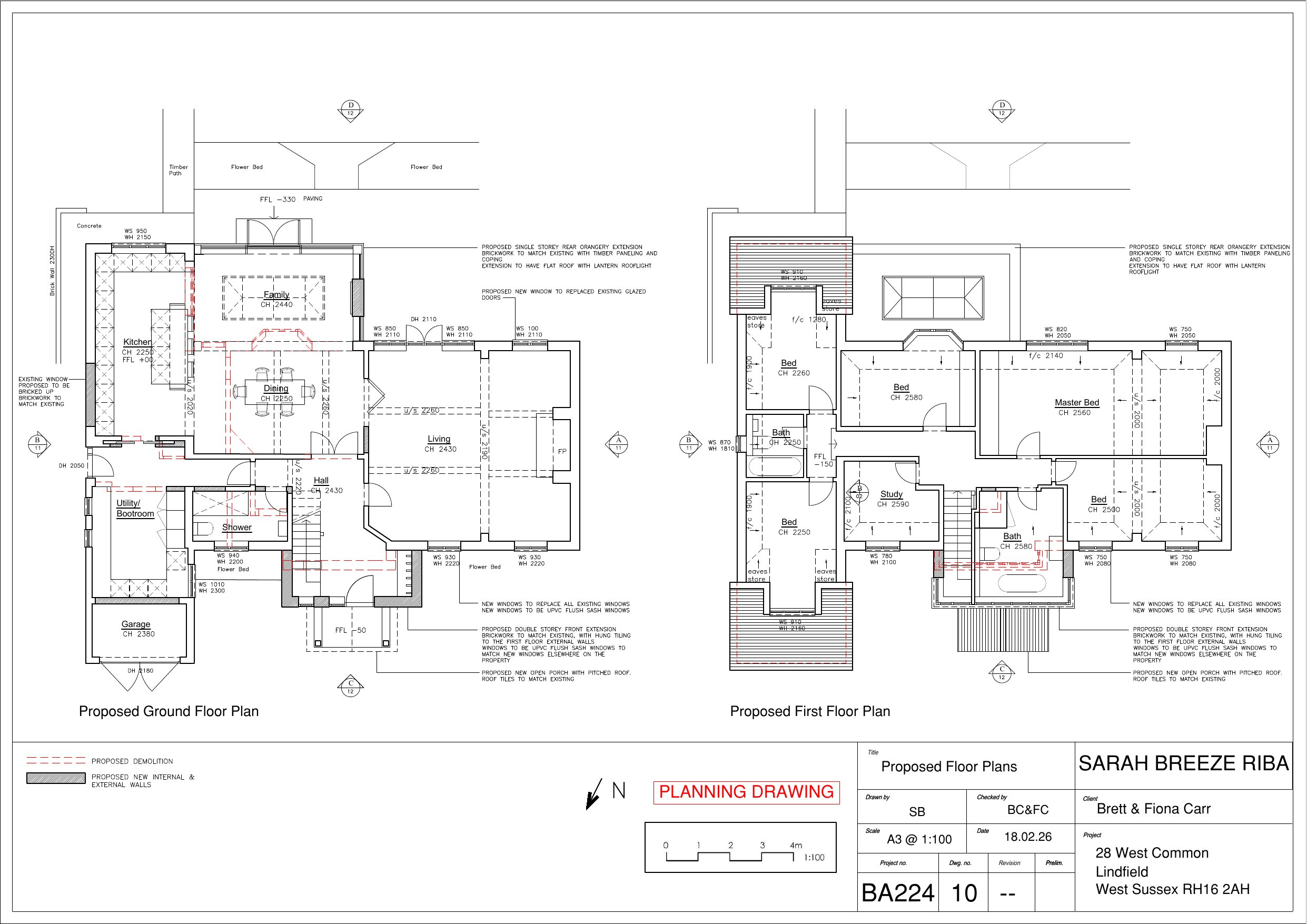
Proposed two storey front extension with pitched roof, single storey rear orangery extension with flat roof. Replacment windows throughtout and open pitch roof porch.

Have your say

Your comment matters. Councils must consider every representation that raises material planning considerations.

Write a comment