← Mid Sussex District Council

Status

Pending Consideration House extension
Received
Last month
New homes
0

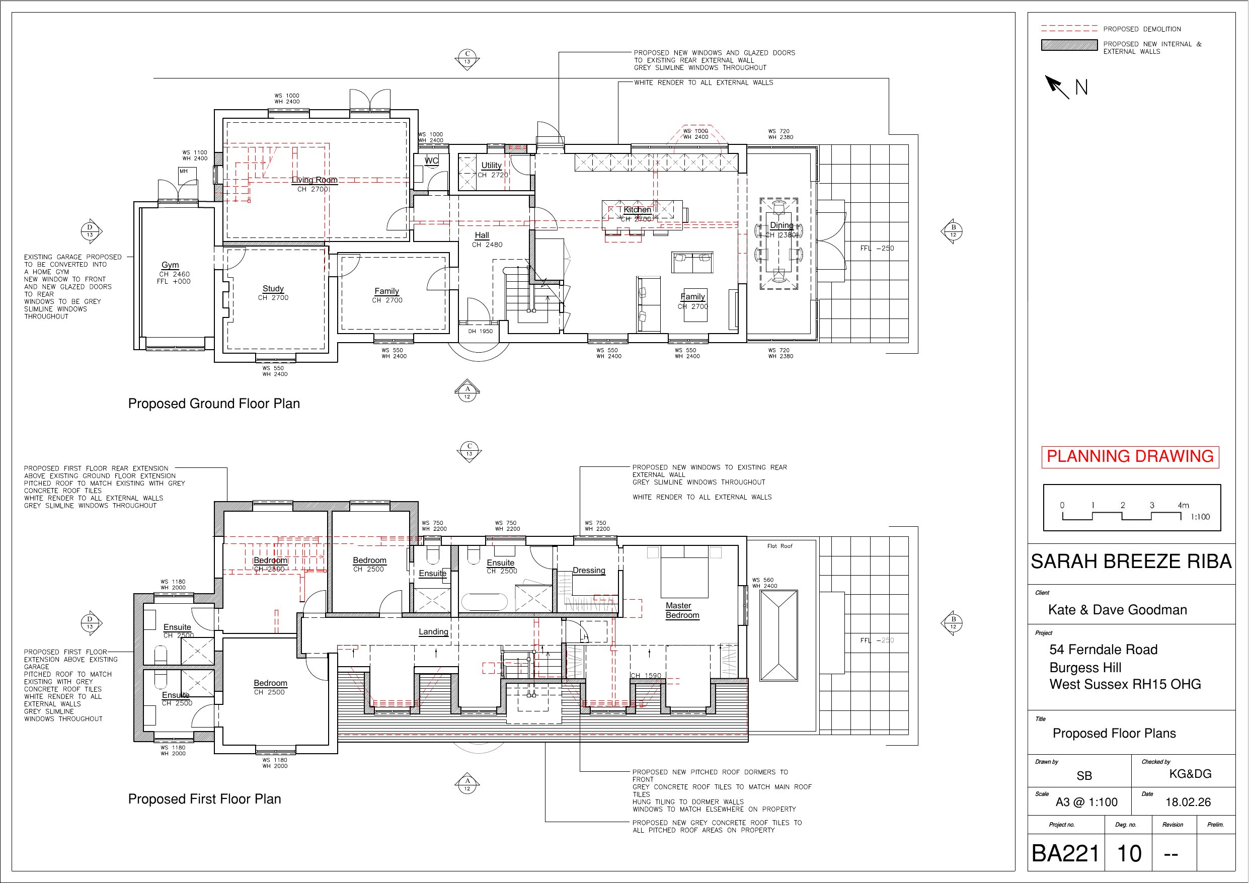
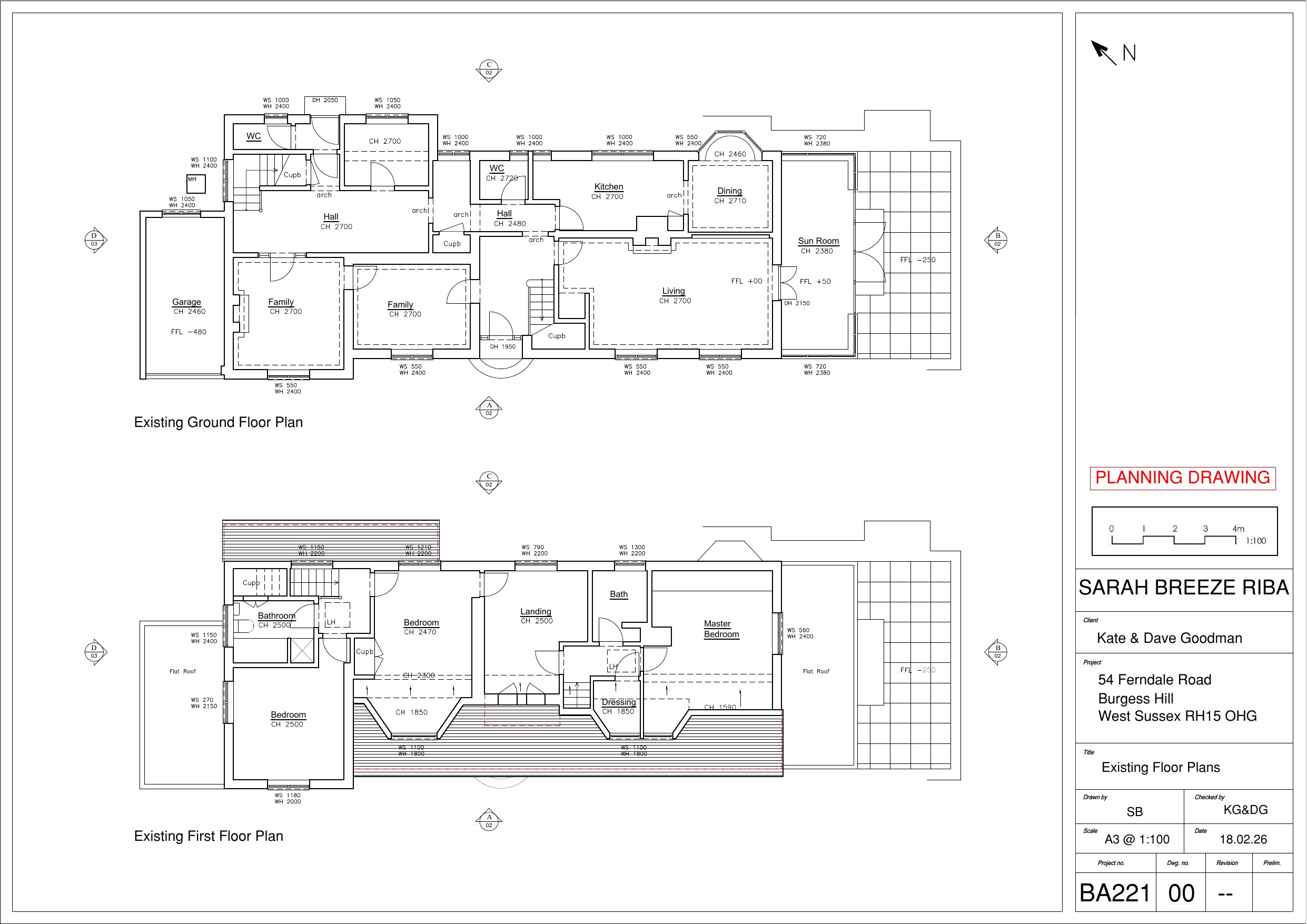
Full proposal

Proposed first floor rear extension, first floor side extension. New pitched roof dormer window to the front. New windows throughout and render to all external walls.

Documents

Application form
Archived · Original link
Latest plan
Archived · Original link
Consultation response
Archived · Original link
Supporting statement
Archived · Original link
Latest plan
Archived · Original link
Supporting statement
Archived · Original link
Latest plan
Archived · Original link
Site notes and file notes
Archived · Original link
Latest plan
Archived · Original link
Site notes and file notes
Archived · Original link
Latest plan
Archived · Original link

Have your say

Your comment matters. Councils must consider every representation that raises material planning considerations.

Write a comment