← Mid Sussex District Council

Status

Pending Consideration House extension
Received
Last month
New homes
0

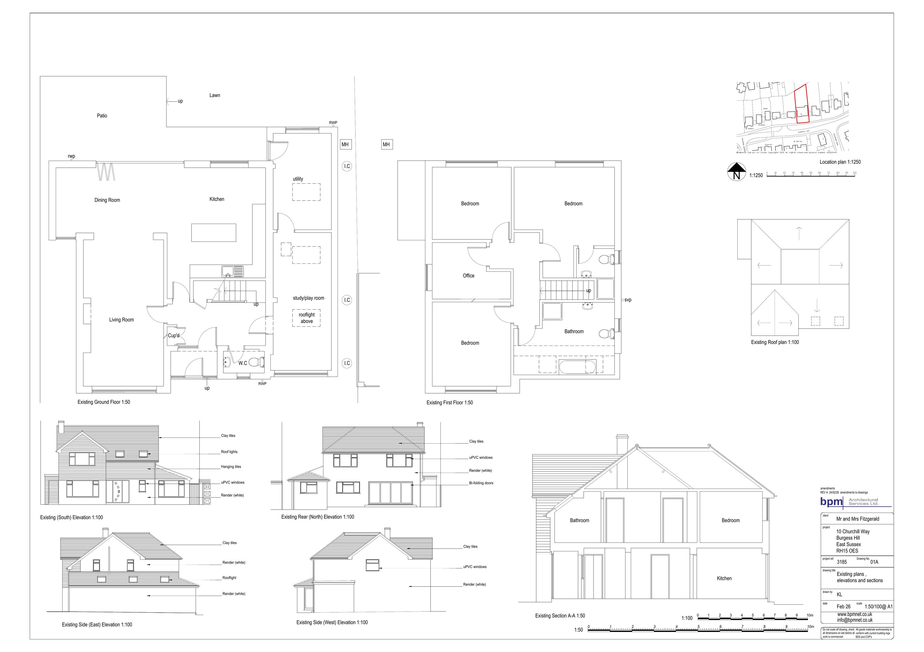
Full proposal

Proposed loft conversion and raising ridge to accommodate loft conversion.

Documents

Application form
Archived · Original link
Consultation response
Archived · Original link
Site notes and file notes
Archived · Original link
Site notes and file notes
Archived · Original link

Have your say

Your comment matters. Councils must consider every representation that raises material planning considerations.

Write a comment