← Mid Sussex District Council

Status

Pending Consideration House extension
Received
Last month
New homes
0

Full proposal

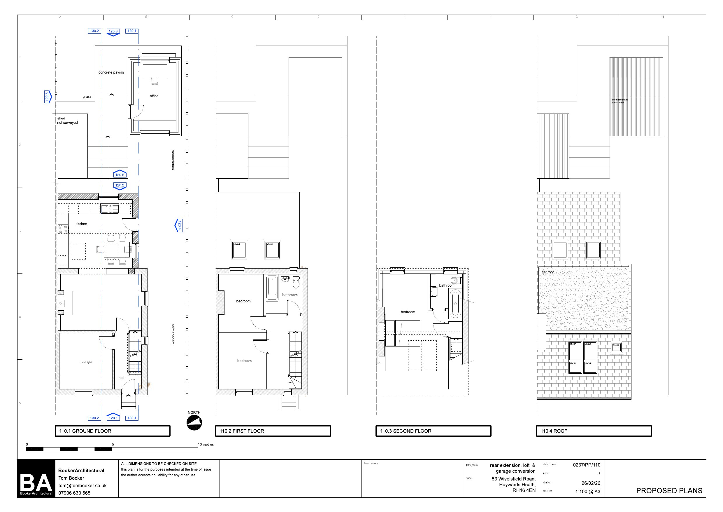
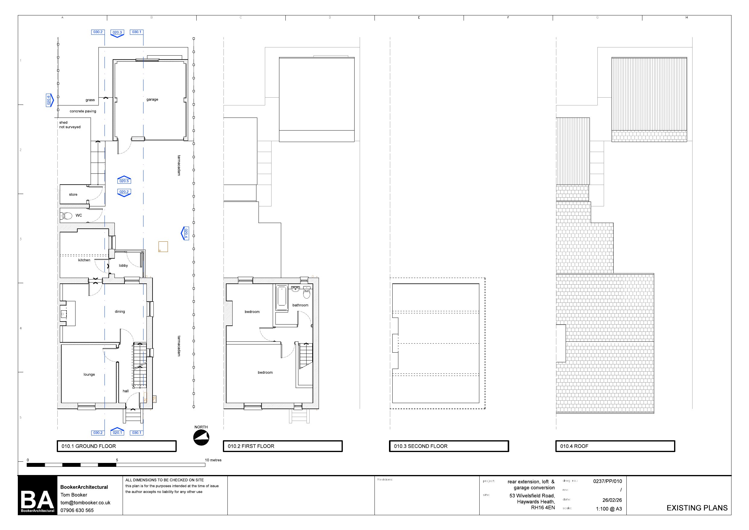
Proposed loft conversion with roof windows to front and rear. Rear single storey extension. Demolition of external WC and store. Demolition of existing detached garage and replacement with a garden office.

Documents

Application form
Archived · Original link
Supporting statement
Archived · Original link
Supporting statement
Archived · Original link
Site notes and file notes
Archived · Original link
Site notes and file notes
Archived · Original link

Have your say

Your comment matters. Councils must consider every representation that raises material planning considerations.

Write a comment