← Mid Sussex District Council

Status

Pending Consideration Change of use
Received
Last month
New homes
0

Full proposal

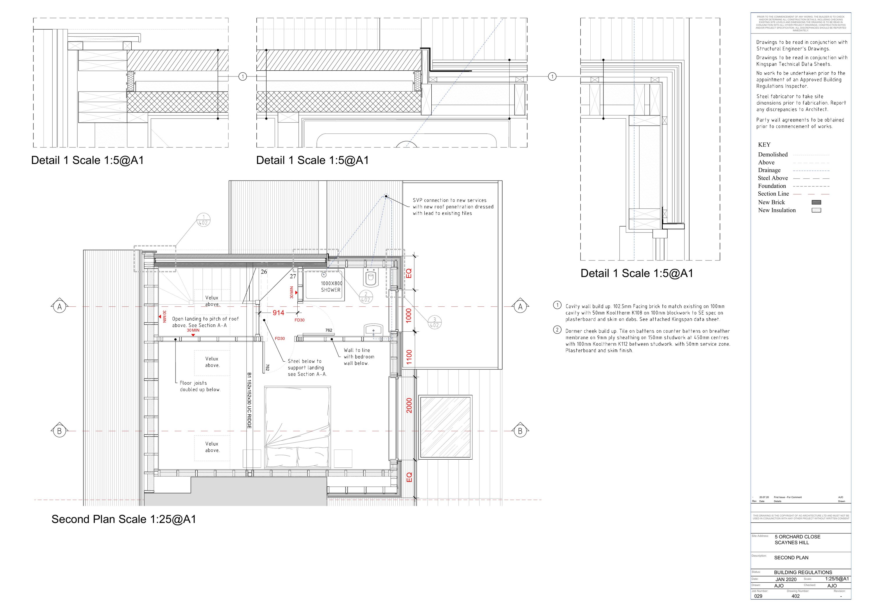
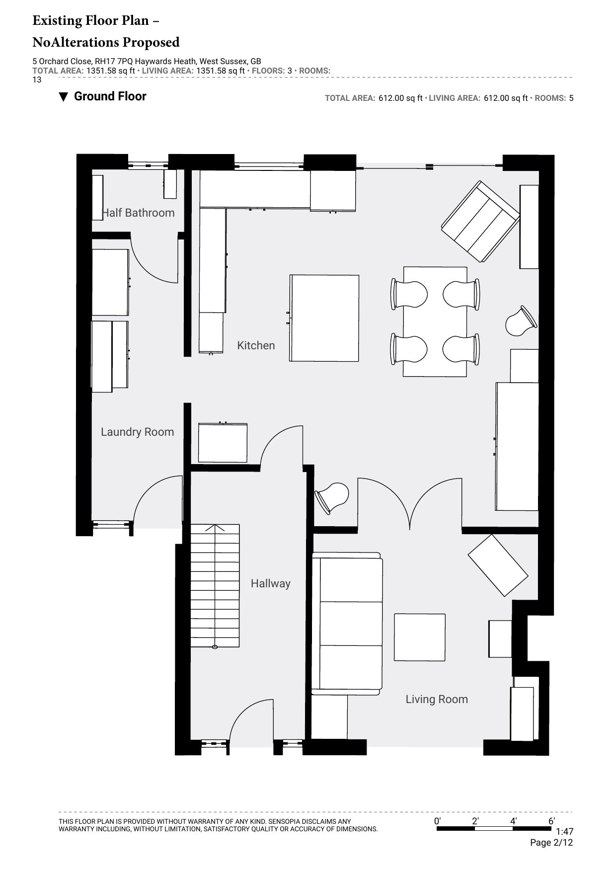
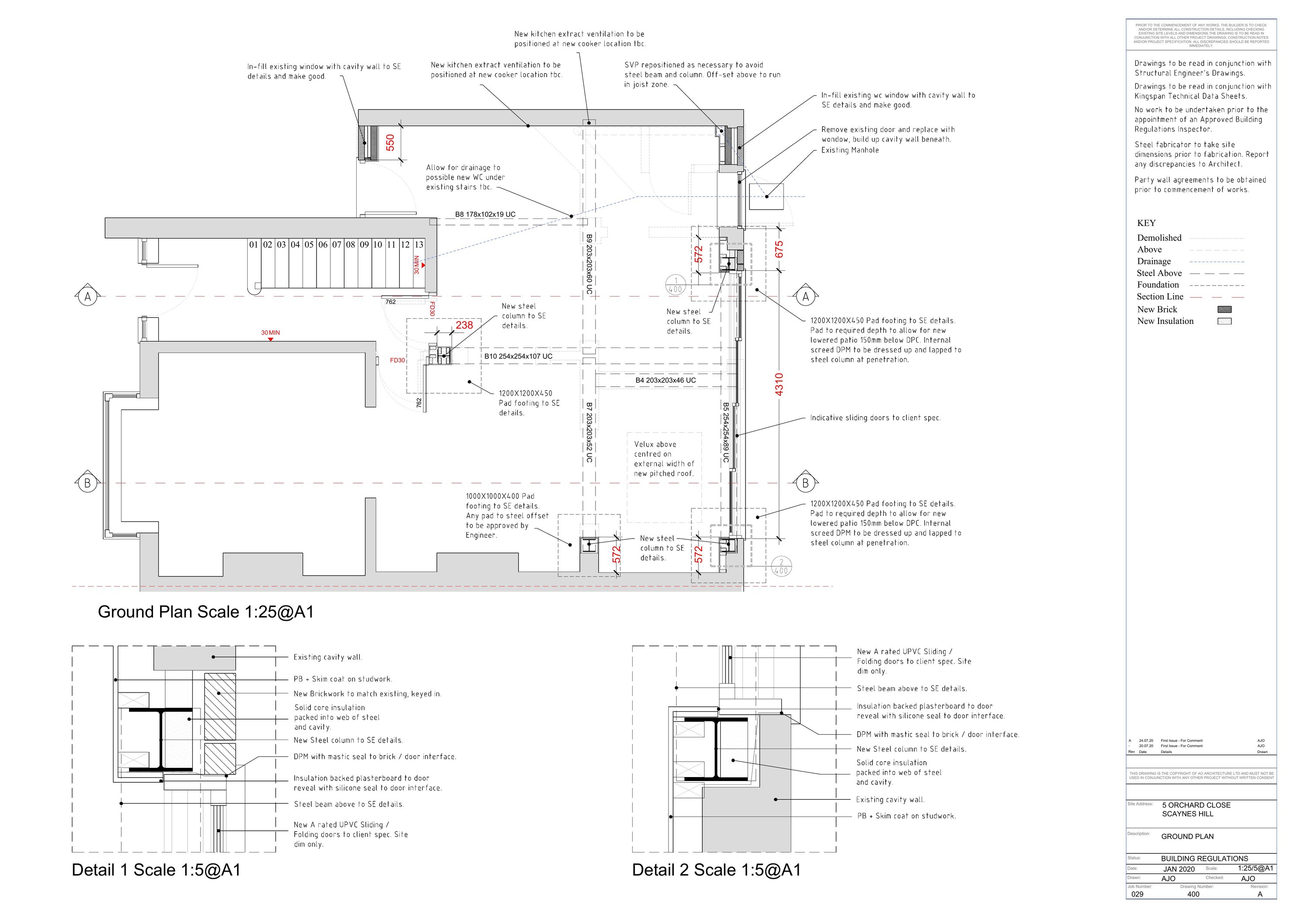
Change of Use from dwellinghouse (Use Class C3) to children's residential care home (Use Class C2) for up to (2/3) children. No external alterations proposed.

Documents

Application form
Archived · Original link
Latest plan
Archived · Original link
Photograph
Archived · Original link
Photograph
Archived · Original link
Supporting statement
Archived · Original link
Latest plan
Archived · Original link
Supporting statement
Archived · Original link
Photograph
Archived · Original link
Photograph
Archived · Original link
Photograph
Archived · Original link
Site notes and file notes
Archived · Original link

Have your say

Your comment matters. Councils must consider every representation that raises material planning considerations.

Write a comment