← Middlesbrough Council

Status

Decision Issued House extension
Received
04 Nov 2024
New homes
0

Full proposal

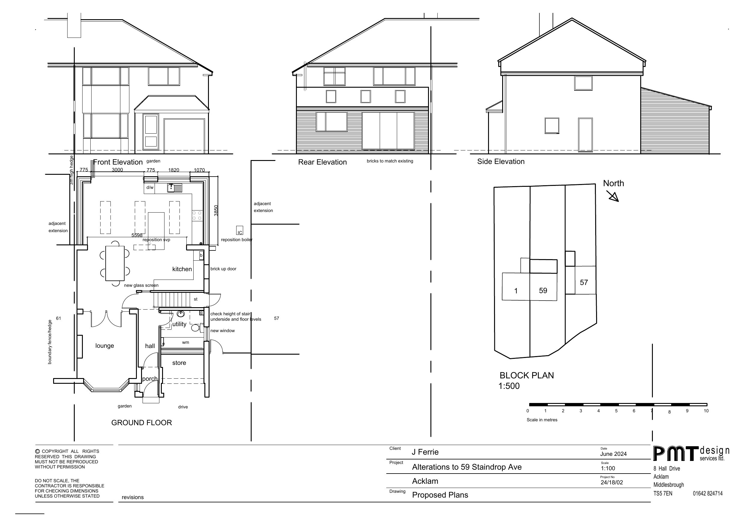
Single storey extension to rear of house (Length 3.5m, Height 3.6m, Eaves 2.25m)

Documents

2418 Ferrie Existing-Planning Rev A
Revised Drawing
Not yet archived · Original link
Revised Drawing
Archived · Original link
Application form redacted
Application Form
Not yet archived · Original link
Consultee Notification List
Consultation Notification List
Not yet archived · Original link
Decision Notice
Decision
Not yet archived · Original link
Existing plans & elevations
Drawing
Not yet archived · Original link
Location plan
Drawing
Not yet archived · Original link
Neighbour Notification List
Neighbour Notification List
Not yet archived · Original link
Officer Report
Report
Not yet archived · Original link
Revised Plan Ground Floor Elevations & Block Plan
Revised Drawing
Not yet archived · Original link

Have your say

Your comment matters. Councils must consider every representation that raises material planning considerations.

Write a comment