← Middlesbrough Council

Status

Decision Issued House extension
Received
11 Nov 2024
New homes
0

Full proposal

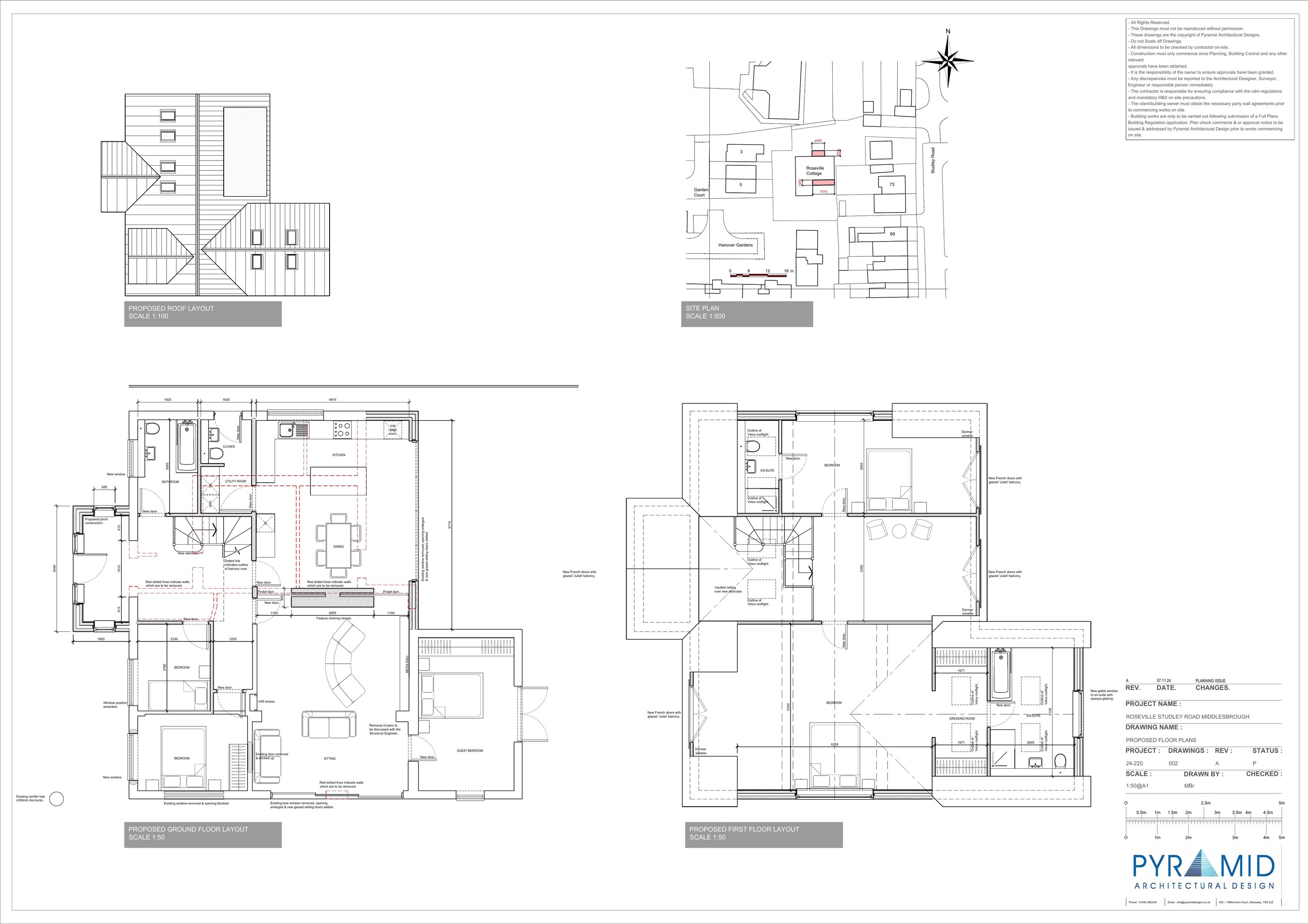
Extension and alterations of existing bunaglow to create two storey dwelling

Documents

Application form redacted
Application Form
Not yet archived · Original link
Consultee Notification List
Consultation Notification List
Not yet archived · Original link
Decision Notice
Decision
Not yet archived · Original link
Existing plans & elevations
Drawing
Not yet archived · Original link
Location plan
Drawing
Not yet archived · Original link
Neighbour Notification List
Neighbour Notification List
Not yet archived · Original link
Officer Report
Report
Not yet archived · Original link
Proposed elevations
Drawing
Not yet archived · Original link
Proposed Elevations Plan 004 Rev A
Revised Drawing
Not yet archived · Original link

Have your say

Your comment matters. Councils must consider every representation that raises material planning considerations.

Write a comment