25/0042/FUL
Middlesbrough Council
Status
Decision Issued
Change of use
Received
27 Jan 2025
New homes
0
Summary
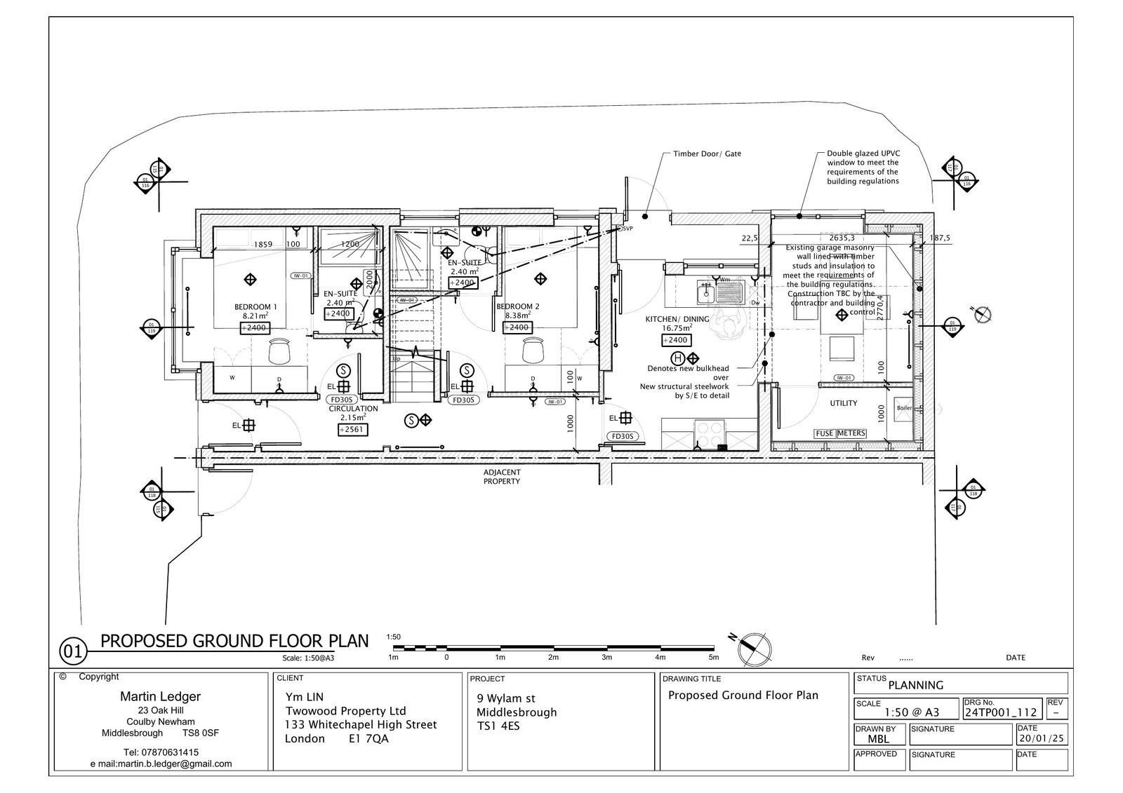
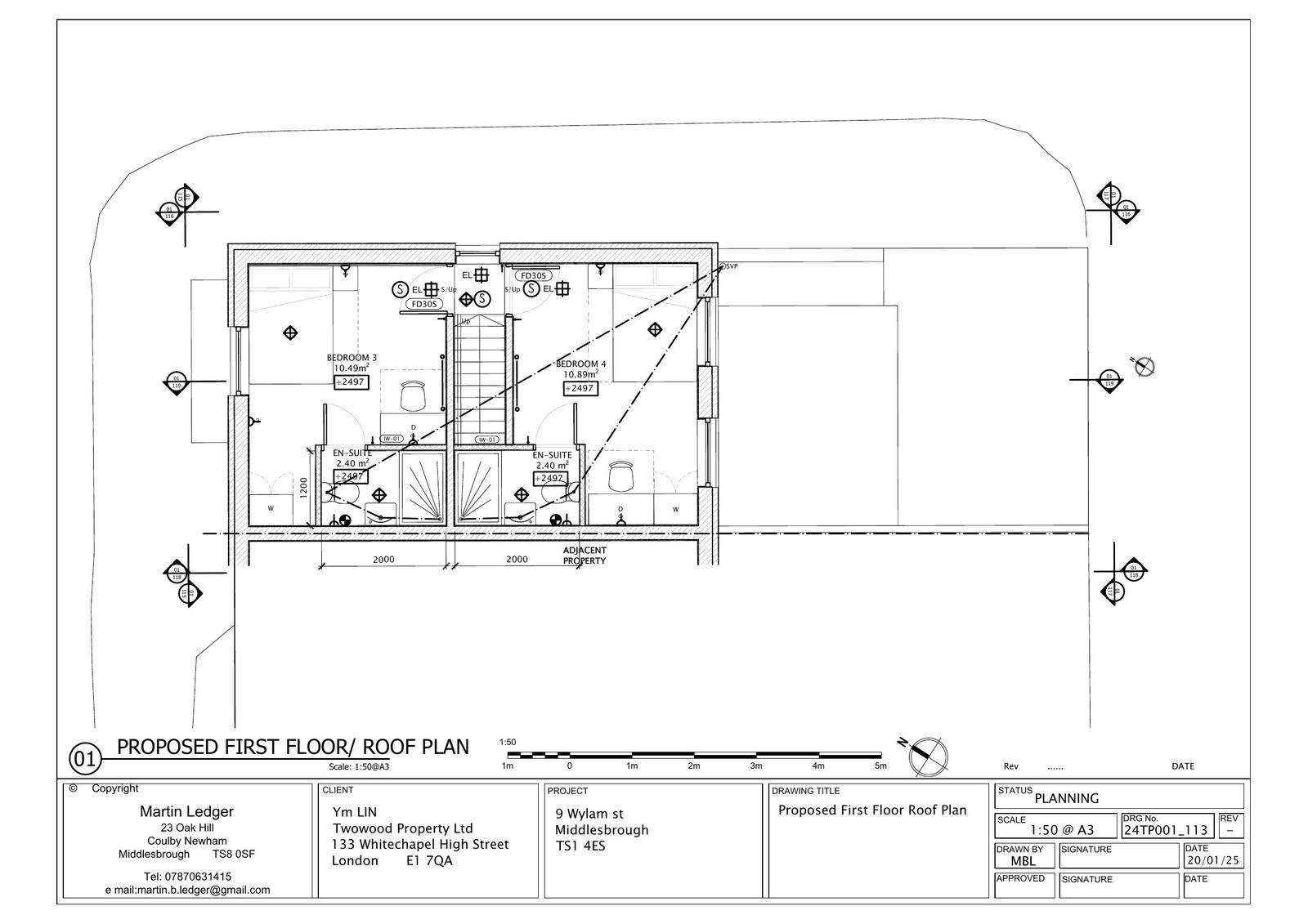
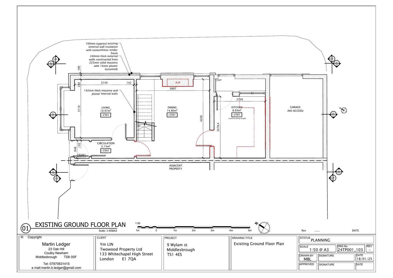
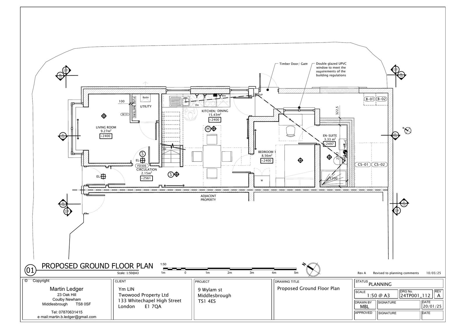
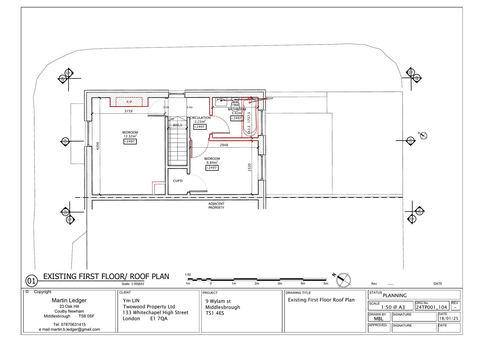
Conversion of dwelling to three-bed HMO, including extension and rear alterations.
Full proposal
Conversion of dwellinghouse to 3 bed HMO including extension and alteartion to existing rear offshoot
Documents
Revised Drawing
Archived
· Original link
Revised Drawing
Archived
· Original link
Revised Drawing
Archived
· Original link
Have your say
Your comment matters. Councils must consider every representation that raises material planning considerations.