← Back to Middlesbrough Council

Status

Pending Consideration New housing
Received 16 Apr 2025
New dwellings 15

What you can do

Take Action

Make your voice heard. Authorities need to hear from people who support new homes.

Summary

Erection of 15 residential bungalows with landscaping and parking.

Full Proposal

Erection of 15 no. residential bungalows including landscaping, parking and ancillary site infrastructure

Detail pages

Documents

(DRAFT) Section 106 agreement
Supporting Documents
Not downloaded · Council link
12 Plot Type 5
Drawing
Not downloaded · Council link
13 Plot Type 4
Drawing
Not downloaded · Council link
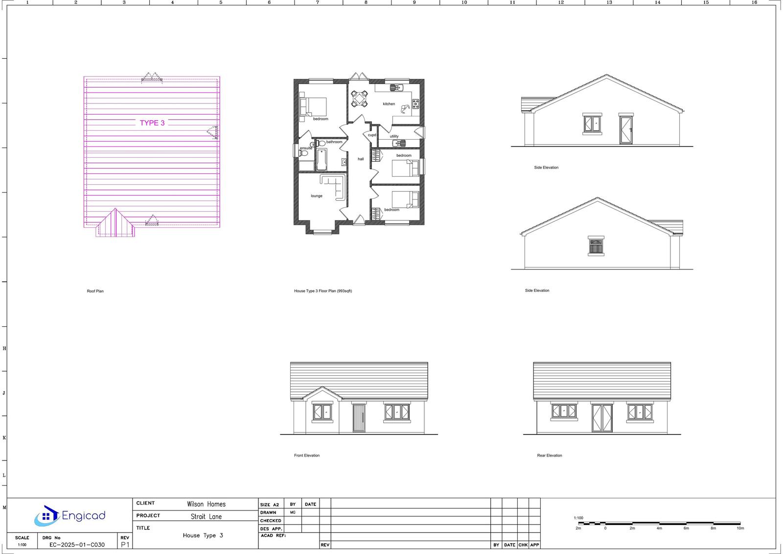
14 Plot Type 3
Drawing
Not downloaded · Council link
25049 BNG Metric v3
Revised Supporting Document
Not downloaded · Council link
25049 BNG V3
Revised Supporting Document
Not downloaded · Council link
2517.01 Strait Lane Landscape Plan Rev D
Revised Drawing
Not downloaded · Council link
2517.01 Strait Lane Landscape Plan Rev E
Revised Drawing
Not downloaded · Council link
2517.02 Strait Lane Open Space Plan
Drawing
Not downloaded · Council link
6 Plot Type 1
Drawing
Not downloaded · Council link
9 Plot Type 2
Drawing
Not downloaded · Council link
Air quality assessment
Supporting Documents
Not downloaded · Council link
Application form redacted
Application Form
Not downloaded · Council link
Bio-diversity net gain assessment
Supporting Documents
Not downloaded · Council link
BioC23265 Habitat Management Plan_V20
Revised Supporting Document
Not downloaded · Council link
BioC23265 Memorandum of Understanding_V2
Revised Supporting Document
Not downloaded · Council link
Bird view
Drawing
Not downloaded · Council link
Boundary Treatments Plan Dwg. 2517.10
Revised Drawing
Not downloaded · Council link
Brick Roof Tile Sheet
Revised Supporting Document
Not downloaded · Council link
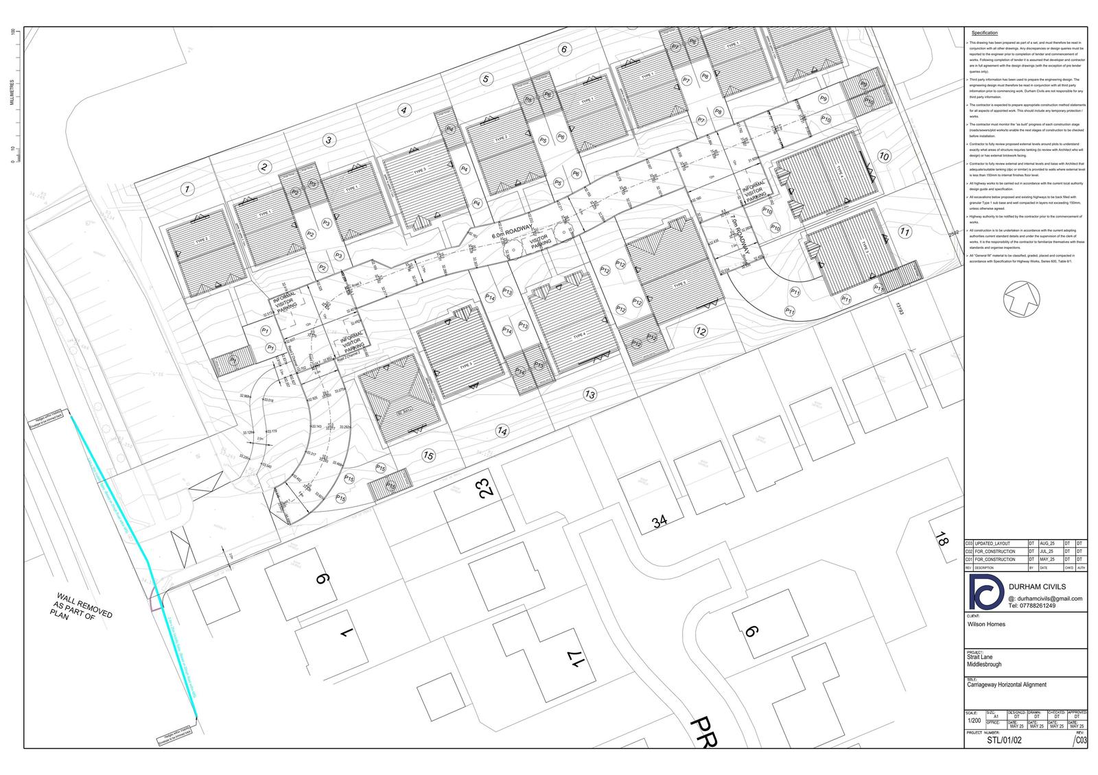
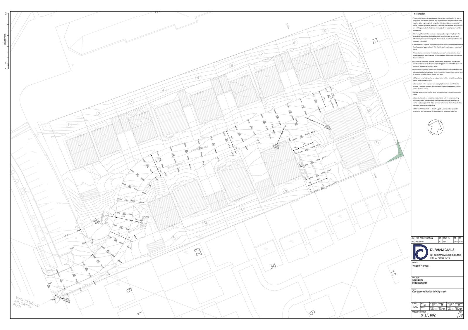
Carriageway horizontal alignment Dwg no. STL/01/02
Drawing
Not downloaded · Council link
Construction Management Plan Strait Lane Sept 2025
Revised Supporting Document
Not downloaded · Council link
Construction management plan
Supporting Documents
Not downloaded · Council link
Consultee Notification List
Consultation Notification List
Not downloaded · Council link
Copy Of the Evening Gazette Advert 14.05.25
Adverts
Not downloaded · Council link
Covering letter
Supporting Documents
Not downloaded · Council link
Design & access statement
Supporting Documents
Not downloaded · Council link
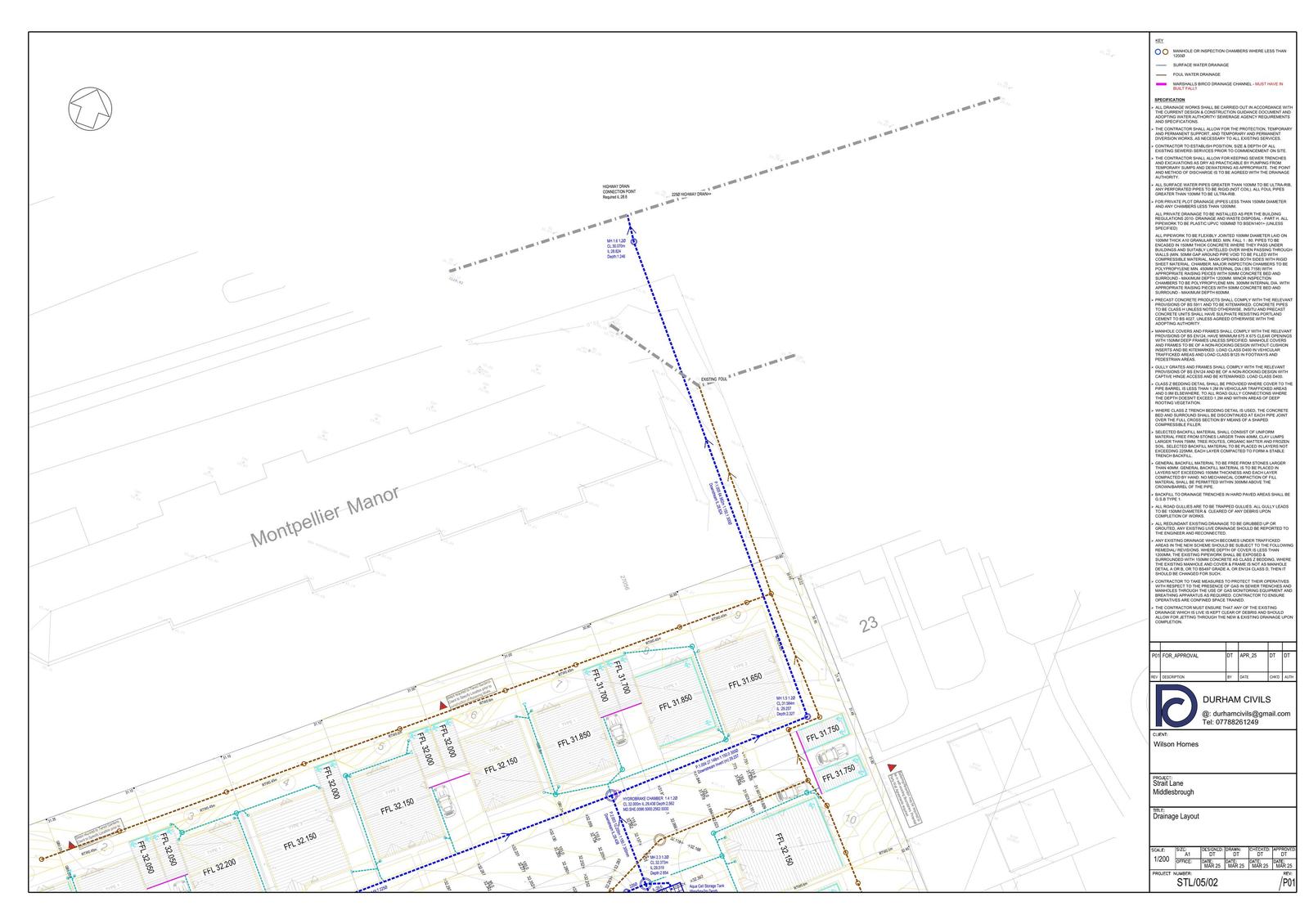
Drainage layout Dwg no. STL/05/01
Drawing
Not downloaded · Council link
Drainage layout Dwg no. STL/05/01
Drawing
Not downloaded · Council link
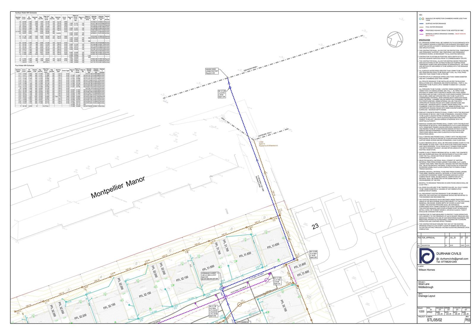
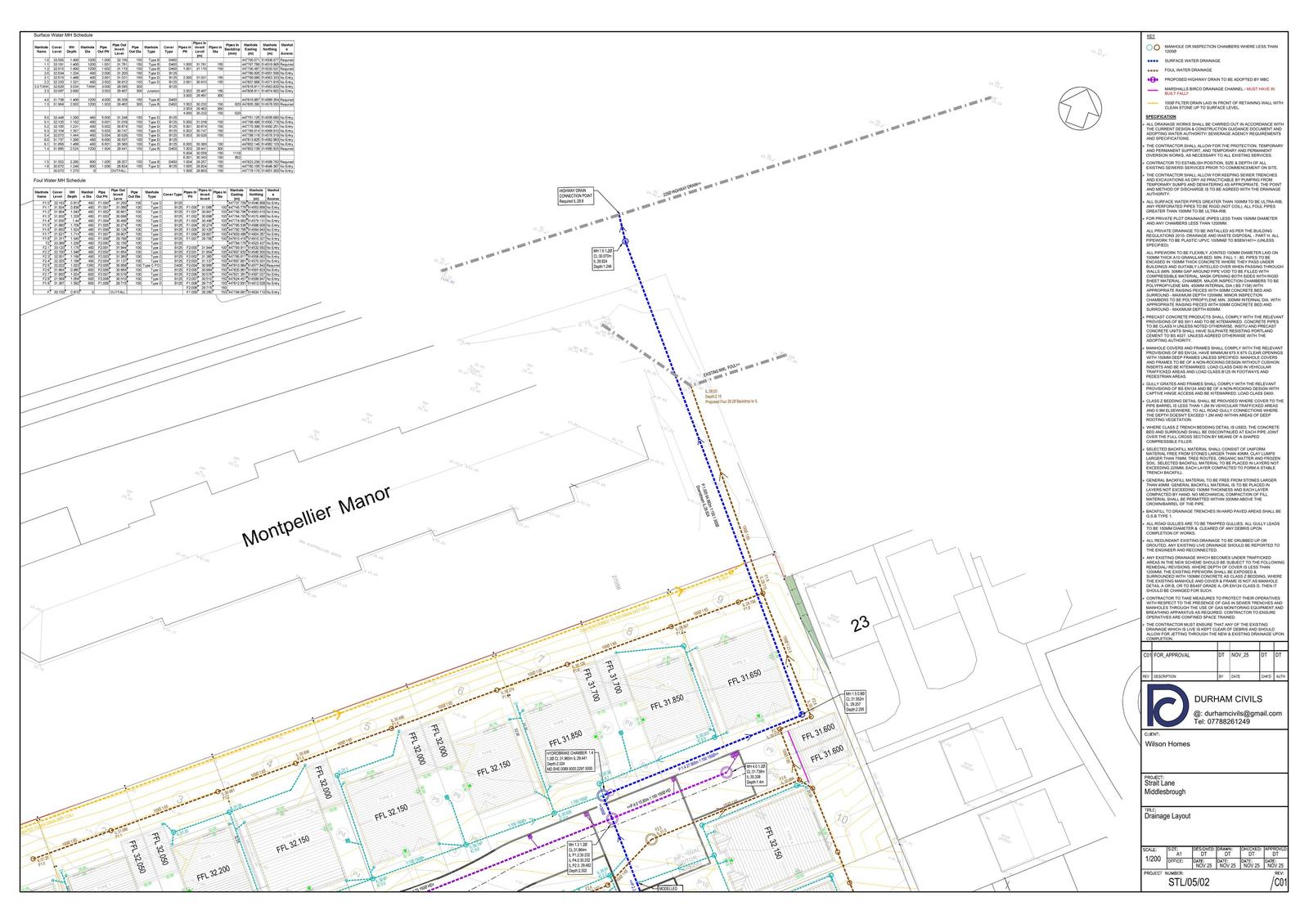
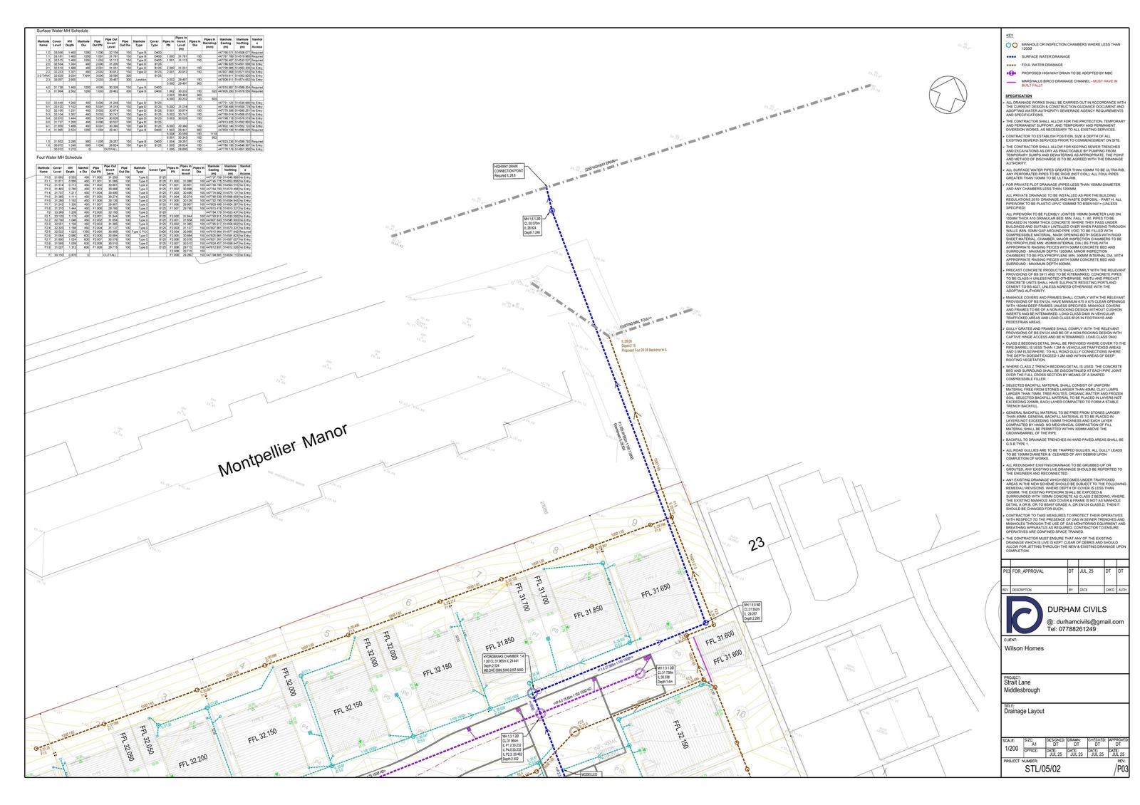
Drainage layout Dwg no. STL/05/02
Drawing
Not downloaded · Council link
Drainage layout Dwg no. STL/05/02
Drawing
Not downloaded · Council link
Drainage maintenance plan Dwg no. STL/05/03
Drawing
Not downloaded · Council link
Drainage series Dwg no. STL/05/01 REV P03
Revised Drawing
Not downloaded · Council link
Drainage series Dwg no. STL/05/02 REV P03
Revised Drawing
Not downloaded · Council link
Drainage standard details
Supporting Documents
Not downloaded · Council link
Drainage Strategy REV Bm
Revised Drawing
Not downloaded · Council link
Drainage strategy REV C
Supporting Documents
Not downloaded · Council link
EC-2025-01-D027 Proposed Site Layout P7
Revised Drawing
Not downloaded · Council link
EC-2025-01-D028 House Type 1 P3
Revised Drawing
Not downloaded · Council link
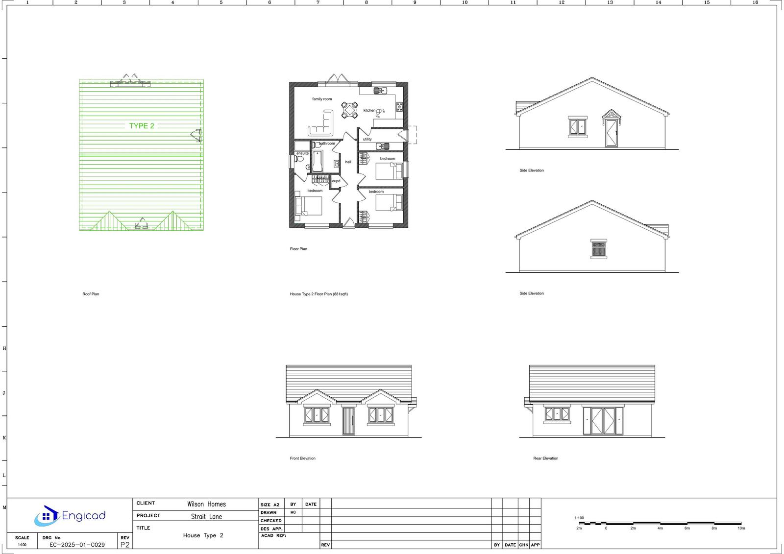
EC-2025-01-D029 House Type 2 P3
Revised Drawing
Not downloaded · Council link
EC-2025-01-D030 House Type 3 P3
Revised Drawing
Not downloaded · Council link
EC-2025-01-D031 House Type 4 P3
Revised Drawing
Not downloaded · Council link
EC-2025-01-D032 House Type 5 P2
Revised Drawing
Not downloaded · Council link
EC-2025-01-D034 House Type 2B P1
Revised Drawing
Not downloaded · Council link
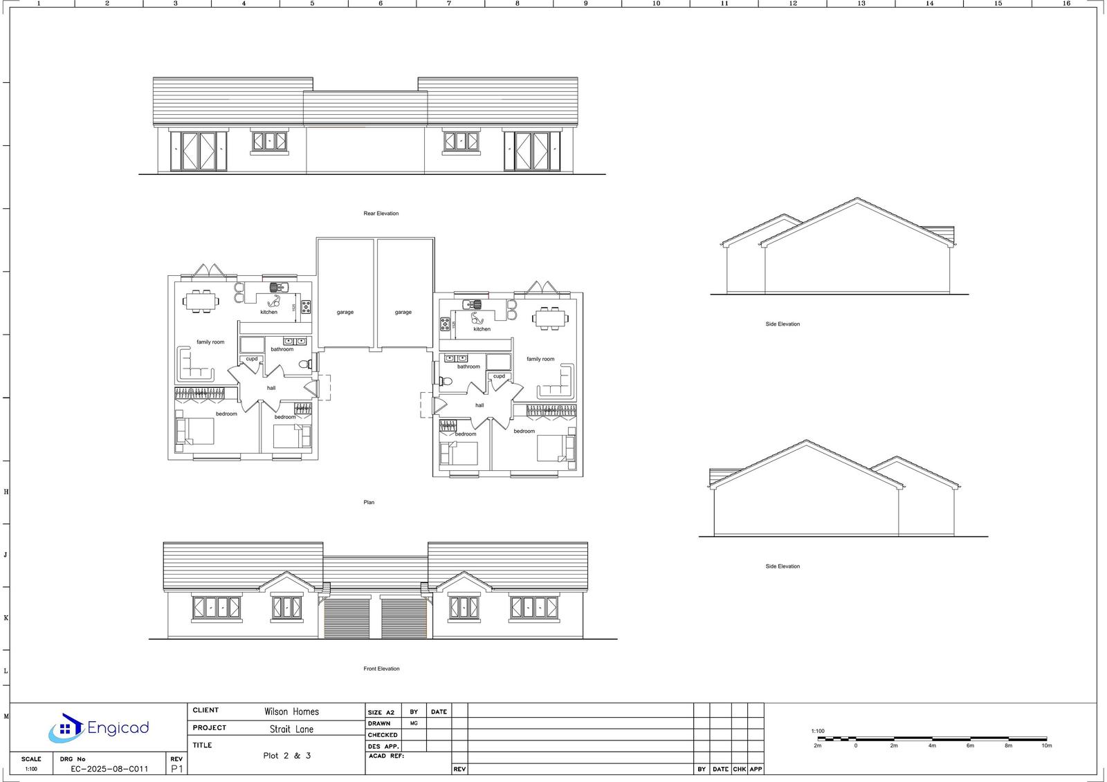
EC-2025-08-C011 Plot 2 & 3 P1
Revised Drawing
Not downloaded · Council link
EC-2025-08-C012 Plot 4 P1
Revised Drawing
Not downloaded · Council link
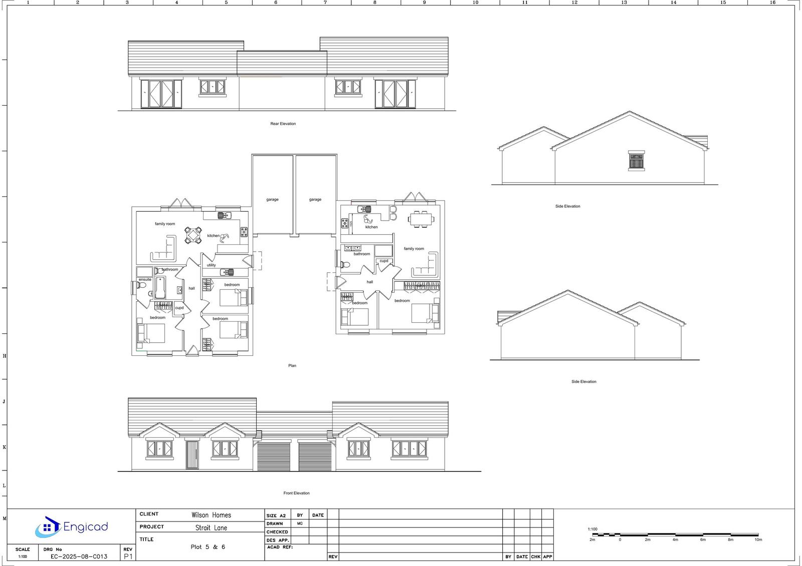
EC-2025-08-C013 Plot 5 & 6 P1
Revised Drawing
Not downloaded · Council link
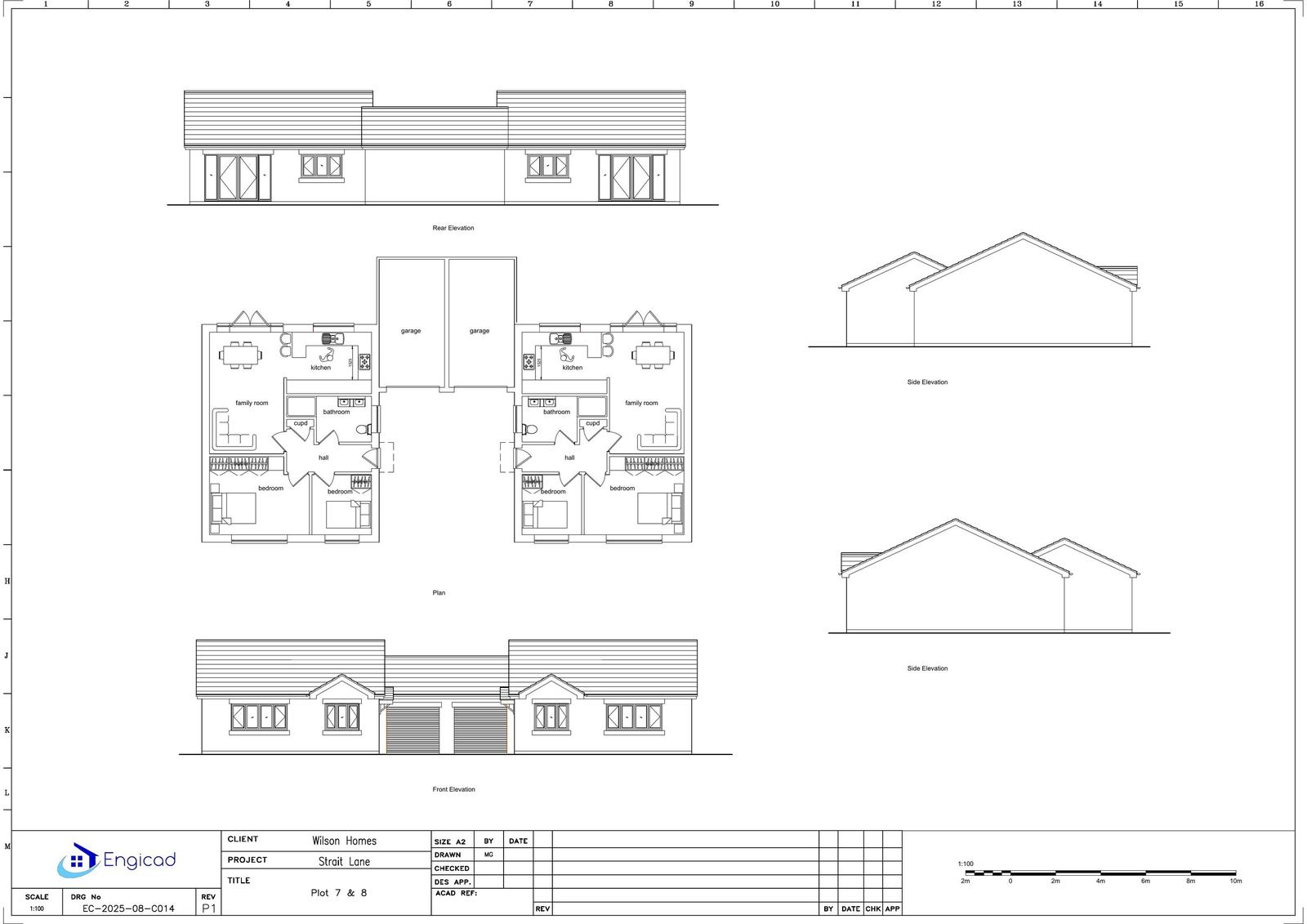
EC-2025-08-C014 Plot 7 & 8 P1
Revised Drawing
Not downloaded · Council link
EC-2025-08-C015 Plot 11 P1
Revised Drawing
Not downloaded · Council link
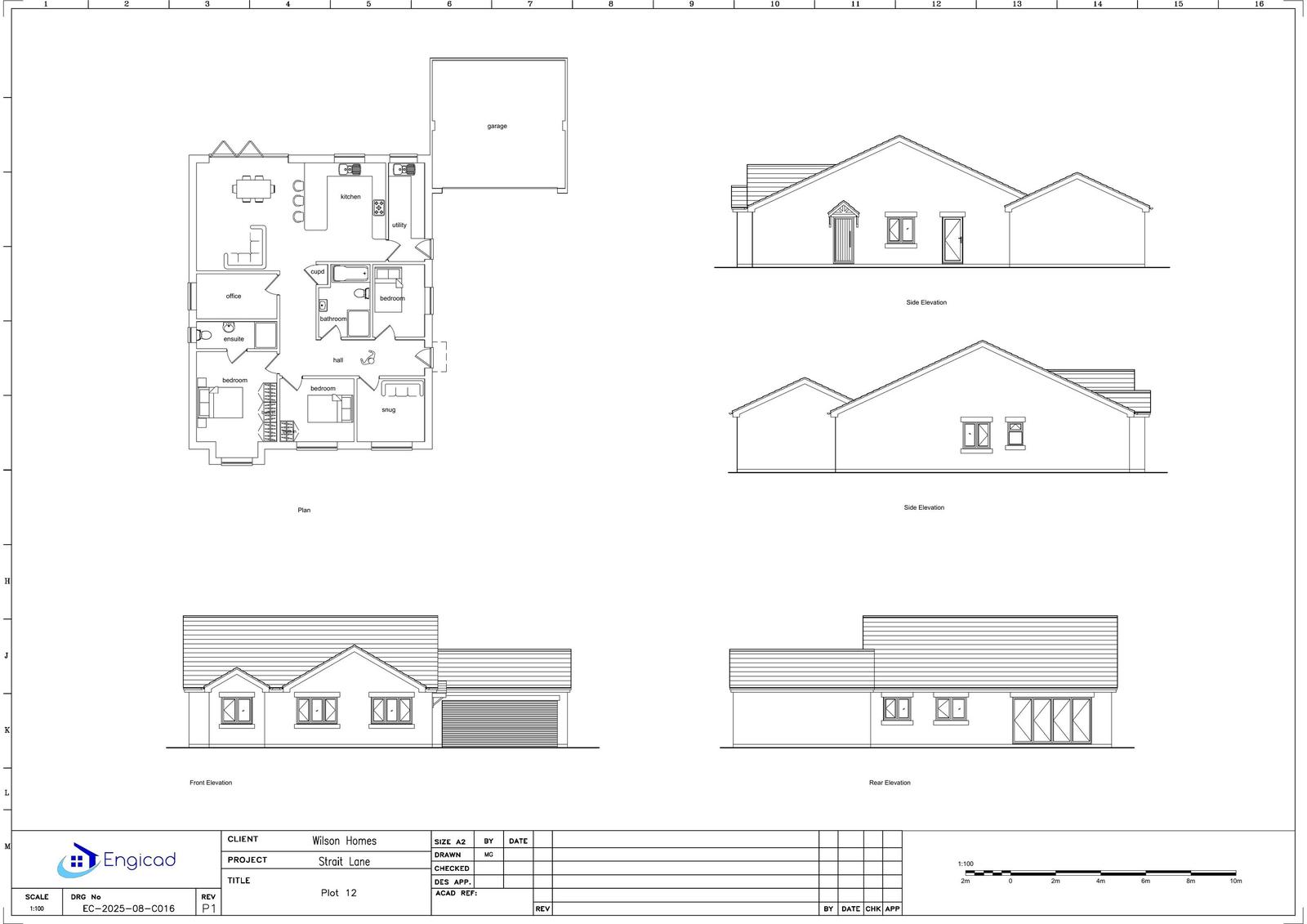
EC-2025-08-C016 Plot 12 P1
Revised Drawing
Not downloaded · Council link
Ecological appraisal
Supporting Documents
Not downloaded · Council link
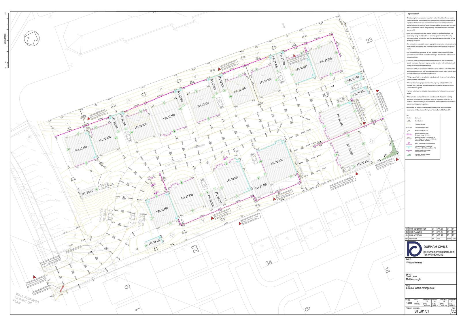
External works arrangement Dwg no. STL/01/01
Drawing
Not downloaded · Council link
External works arrangement Dwg no. STL/01/01
Drawing
Not downloaded · Council link
Flood risk assessment & drainage strategy
Supporting Documents
Not downloaded · Council link
Fox ESS F Series Data sheet 2 MPPT 36k
Revised Supporting Document
Not downloaded · Council link
Garage plans & elevations Dwg no. EC-2025-01-D033
Drawing
Not downloaded · Council link
Garages - EC-2025-01-D033
Revised Supporting Document
Not downloaded · Council link
Geo-environmental desk study
Supporting Documents
Not downloaded · Council link
Habitat regulations assessment
Supporting Documents
Not downloaded · Council link
Highway construction details Dwg no. STL/01/05
Drawing
Not downloaded · Council link
House Type 1 - EC-2025-01-D028
Revised Supporting Document
Not downloaded · Council link
House type 1 elevations & floor plans Dwg no.EC-2025-01-D028
Drawing
Not downloaded · Council link
House Type 2 - EC-2025-01-D029
Revised Supporting Document
Not downloaded · Council link
House type 2 elevations & floor plans Dwg no. EC-2025-01-D029
Drawing
Not downloaded · Council link
House Type 3 - EC-2025-01-D030
Revised Supporting Document
Not downloaded · Council link
House type 3 elevations & floor plans Dwg no. EC-2025-01-D030
Drawing
Not downloaded · Council link
House Type 4 - EC-2025-01-D031
Revised Supporting Document
Not downloaded · Council link
House type 4 elevations & floor plans Dwg no. EC-2025-01-D031
Drawing
Not downloaded · Council link
House Type 5 - EC-2025-01-D032
Revised Supporting Document
Not downloaded · Council link
House type 5 elevations & floor plans Dwg no. EC-2025-01-D032
Drawing
Not downloaded · Council link
HRA & NN V2 Reports
Revised Supporting Document
Not downloaded · Council link
Indicative plan AF0325-015
Drawing
Not downloaded · Council link
JAM60D41 485510 LB Global_EN_20241204A_25yr_Warranty
Revised Supporting Document
Not downloaded · Council link
Landscape plan Dwg no. 2517.01A
Drawing
Not downloaded · Council link
letter of community engagement
Supporting Documents
Not downloaded · Council link
Location plan
Drawing
Not downloaded · Council link
Location Plan Red Line
Revised Drawing
Not downloaded · Council link
Longsections & setting out tables Dwg no. STL/01/03
Drawing
Not downloaded · Council link
Maintenance information sheet
Supporting Documents
Not downloaded · Council link
Materials document
Supporting Documents
Not downloaded · Council link
Neighbour Notification List
Neighbour Notification List
Not downloaded · Council link
Nitrate Allocation Agreement Redacted
Supporting Documents
Not downloaded · Council link
NN Calculator V2
Revised Supporting Document
Not downloaded · Council link
NN_AA_Wilson_Homes_Strait_Lane21
Supporting Documents
Not downloaded · Council link
Noise assessment
Supporting Documents
Not downloaded · Council link
Nutrient Nutrality calculator
Supporting Documents
Not downloaded · Council link
Nutrient nutrality calculator
Supporting Documents
Not downloaded · Council link
Off site Highway drain layout
Drawing
Not downloaded · Council link
Off site Highways drain calculations
Drawing
Not downloaded · Council link
Off site public Highway drain longsection
Drawing
Not downloaded · Council link
OPEN SPACES brochure web Oct 2024
Supporting Documents
Not downloaded · Council link
Outdoor lighting report
Supporting Documents
Not downloaded · Council link
Outdoor Lighting Report - SLDS-4503-LR-1C
Supporting Documents
Not downloaded · Council link
Outdoor Lighting Report SLDS-4503-LR-1B
Revised Supporting Document
Not downloaded · Council link
Parking provisions details
Supporting Documents
Not downloaded · Council link
Proposed Section 38 Lighting - SLDS-4503-V1 C
Drawing
Not downloaded · Council link
Proposed Section 38 Lighting - SLDS-4503-V1-B
Revised Drawing
Not downloaded · Council link
Proposed section 38 lighting Dwg no. SLDS-4503-V1-A
Drawing
Not downloaded · Council link
Proposed site layout Dwg no. EC-2025-01-D027
Drawing
Not downloaded · Council link
Redacted Phase 2 Site Investigation Report
Supporting Documents
Not downloaded · Council link
Residential estate management
Supporting Documents
Not downloaded · Council link
Schedule of charges
Supporting Documents
Not downloaded · Council link
Site notice
Site Notice
Not downloaded · Council link
Site notice
Site Notice
Not downloaded · Council link
STL_01_01 External Works Arrangement C08
Revised Drawing
Not downloaded · Council link
STL_01_01 External Works Arrangement Rev C08
Revised Drawing
Not downloaded · Council link
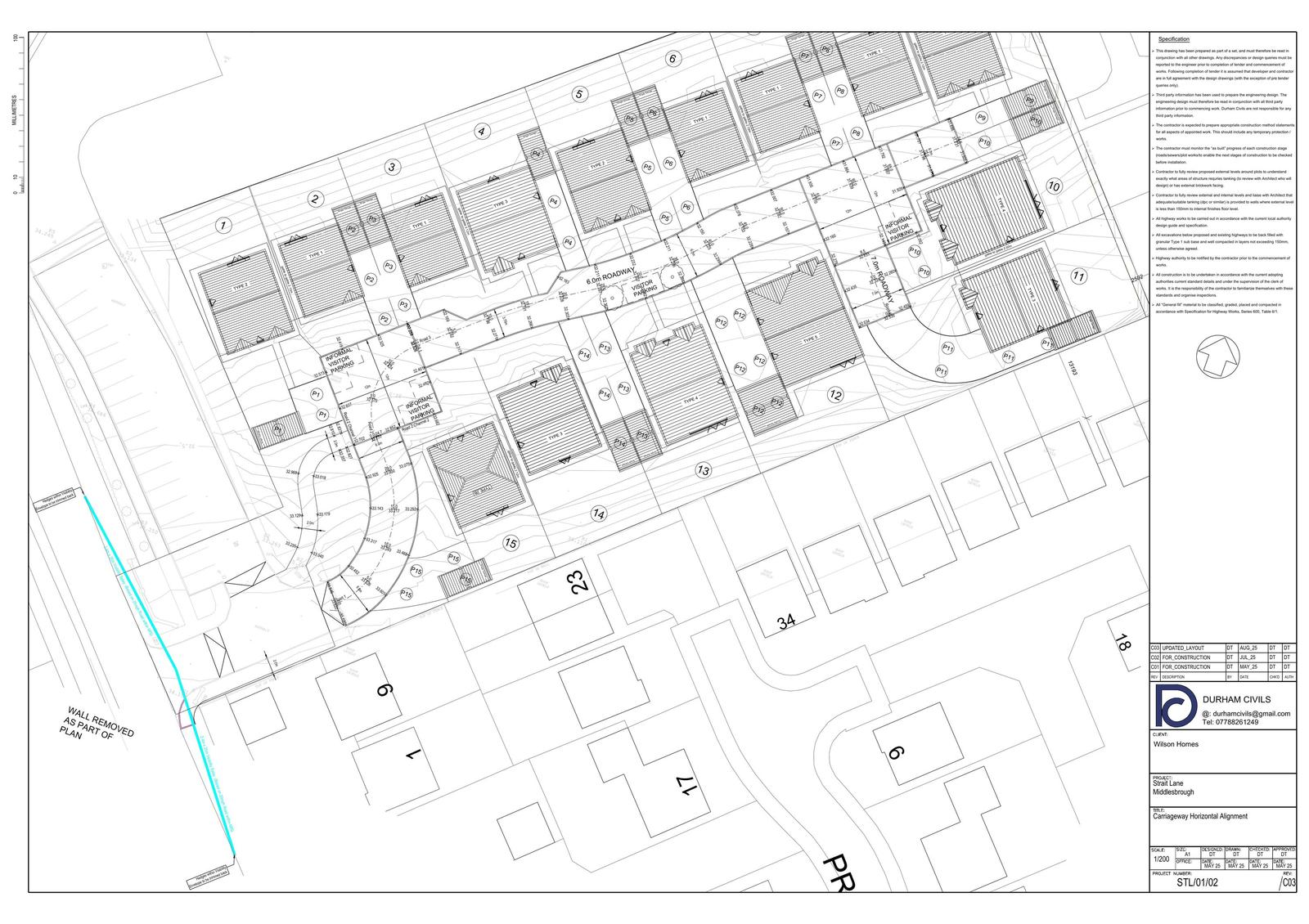
STL_01_02 Carriageway Horizontal Alignment C03
Revised Drawing
Not downloaded · Council link
STL_01_02 Carriageway Horizontal Alignment Rev C03
Revised Drawing
Not downloaded · Council link
STL_01_03 Carriageway Long sections Setting Out Tables C02
Revised Supporting Document
Not downloaded · Council link
STL_01_04 Surface Finishes Kerbing Arrangement C03
Revised Drawing
Not downloaded · Council link
STL_01_04 Surface Finishes Kerbing Arrangement Rev C03
Revised Drawing
Not downloaded · Council link
STL_01_05 Highway Construction Details C02
Revised Drawing
Not downloaded · Council link
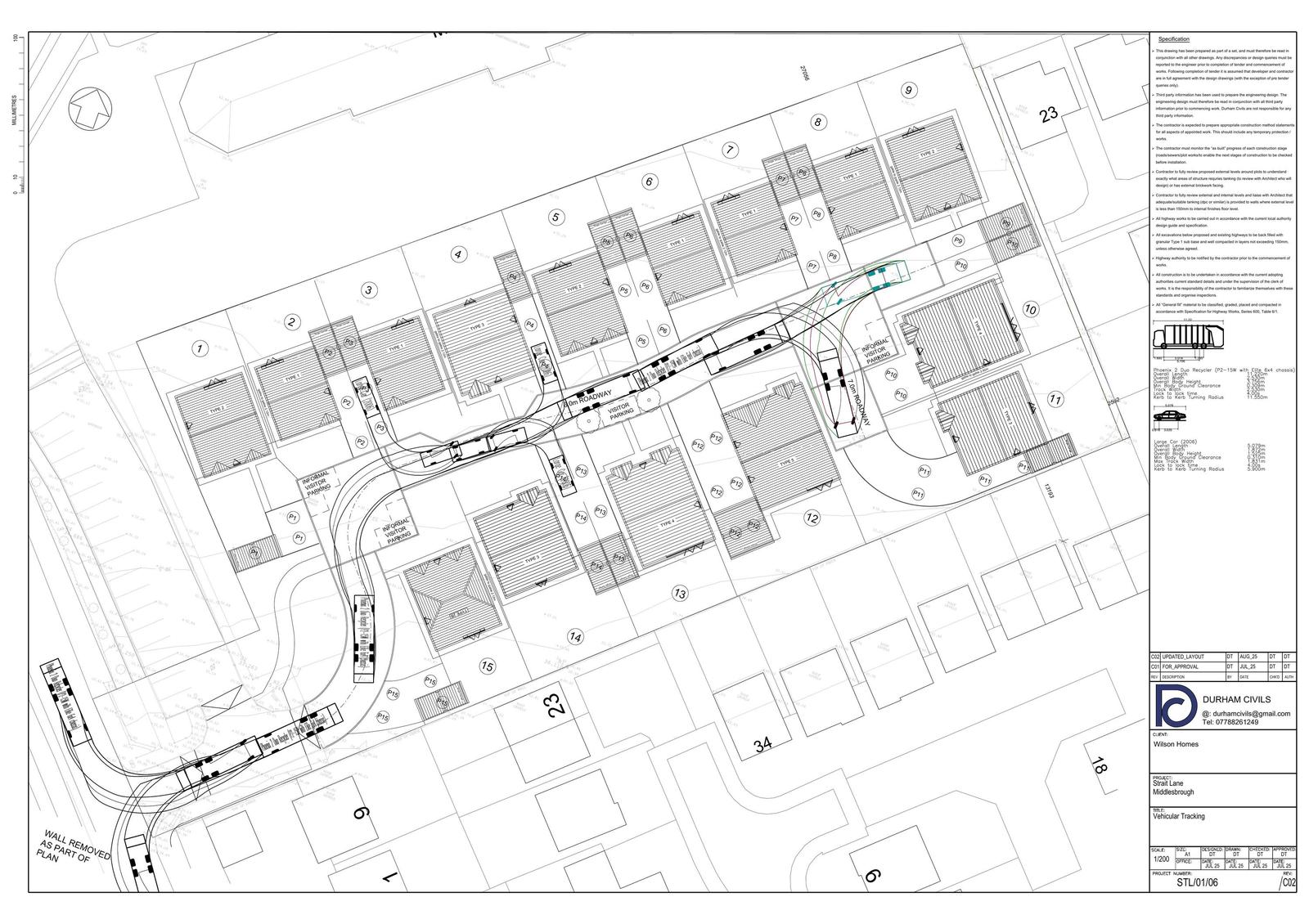
STL_01_06 Vehicular Tracking C02
Revised Drawing
Not downloaded · Council link
STL_01_06 Vehicular Tracking Rev C02
Revised Drawing
Not downloaded · Council link
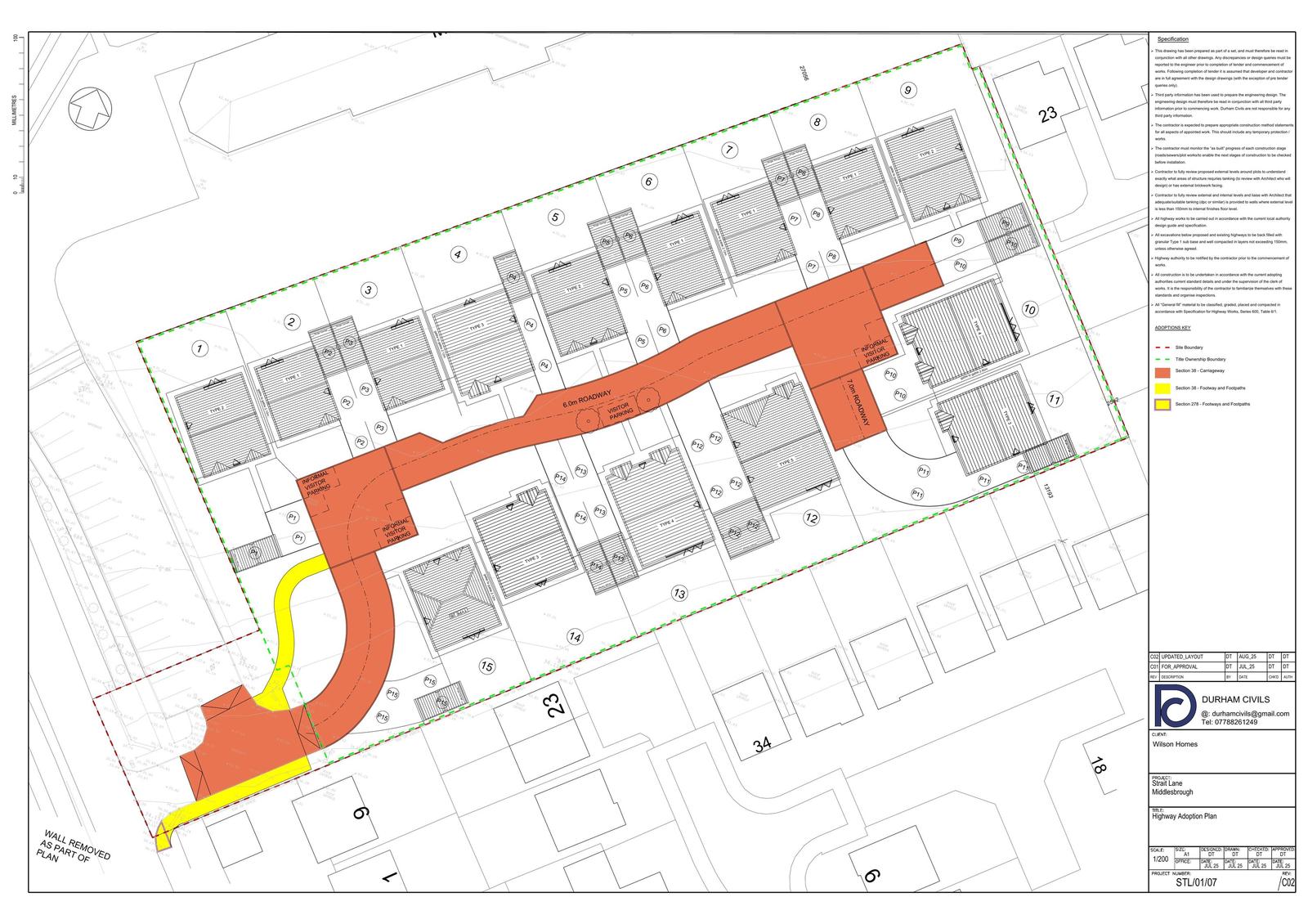
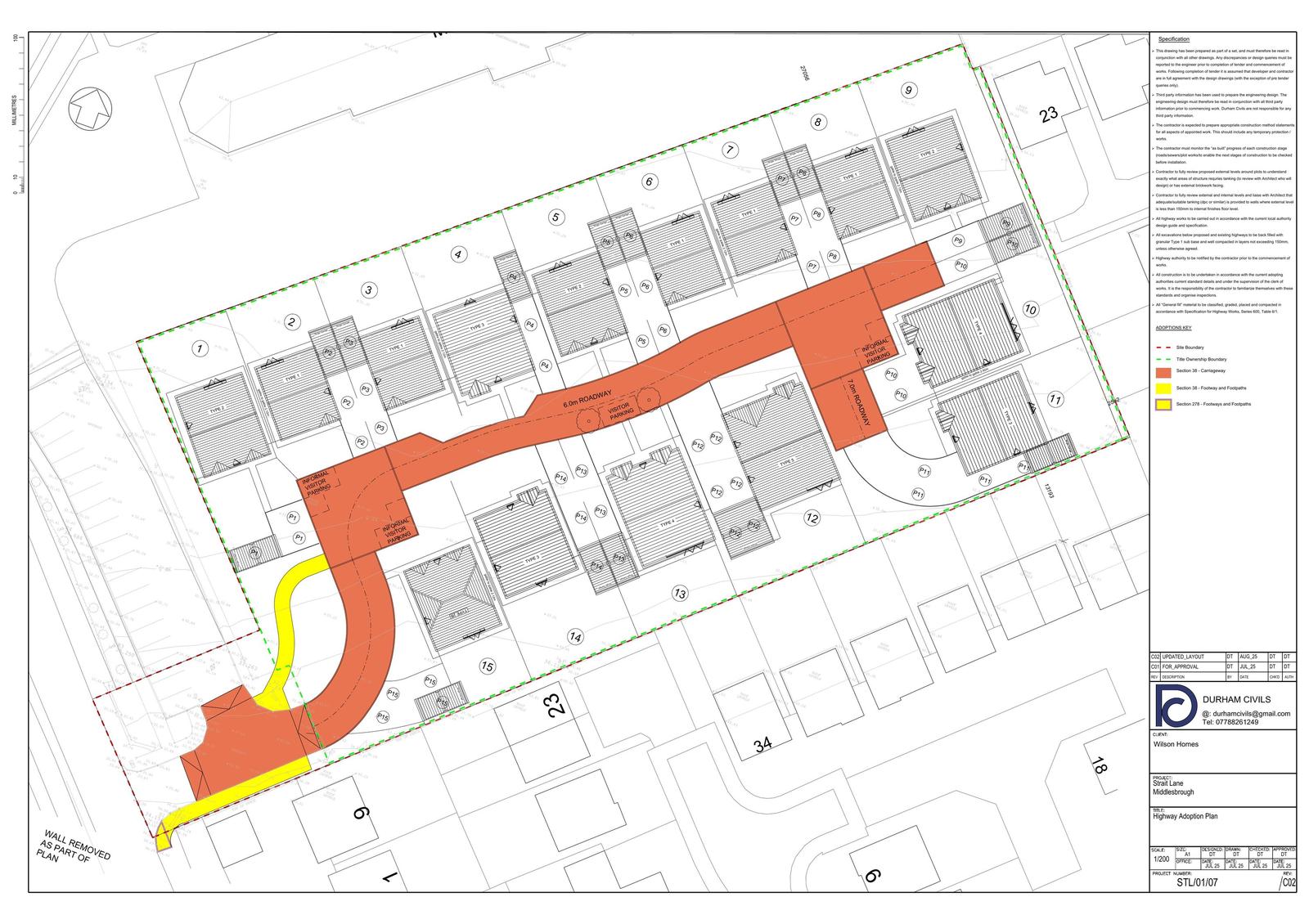
STL_01_07 Highway Adoptions Plan C02
Revised Drawing
Not downloaded · Council link
STL_01_07 Highway Adoptions Plan Rev C02
Revised Drawing
Not downloaded · Council link
STL_05_01 Drainage Series P03
Revised Drawing
Not downloaded · Council link
STL_05_01 Drainage Series Rev C01
Revised Drawing
Not downloaded · Council link
STL_05_02 Drainage Series P03.
Revised Drawing
Not downloaded · Council link
STL_05_02 Drainage Series Rev C01
Revised Drawing
Not downloaded · Council link
STL_05_03 Drainage Series Maintenance Drawing P03
Revised Drawing
Not downloaded · Council link
STL_05_03 Drainage Series Maintenance Drawing Rev C01
Revised Drawing
Not downloaded · Council link
STL_05_04 Drainage Standard Details P01
Revised Drawing
Not downloaded · Council link
STL_05_04 Drainage Standard Details Rev P01
Revised Drawing
Not downloaded · Council link
Strait lane Stainton Wilson Homes budget V2 (1)
Supporting Documents
Not downloaded · Council link
Street View 1
Drawing
Not downloaded · Council link
Street View 2
Drawing
Not downloaded · Council link
SUDS Manual
Supporting Documents
Not downloaded · Council link
Surface finishes & kerbing arrangement Dwg no. STL/01/04
Drawing
Not downloaded · Council link
Topographic Survey Dwg. WHG101 A
Revised Drawing
Not downloaded · Council link
Unit Purchase Agreement Redacted
Supporting Documents
Not downloaded · Council link