← Middlesbrough Council

Status

Appeal in Progress New housing
Received
29 Apr 2025
New homes
4

Summary

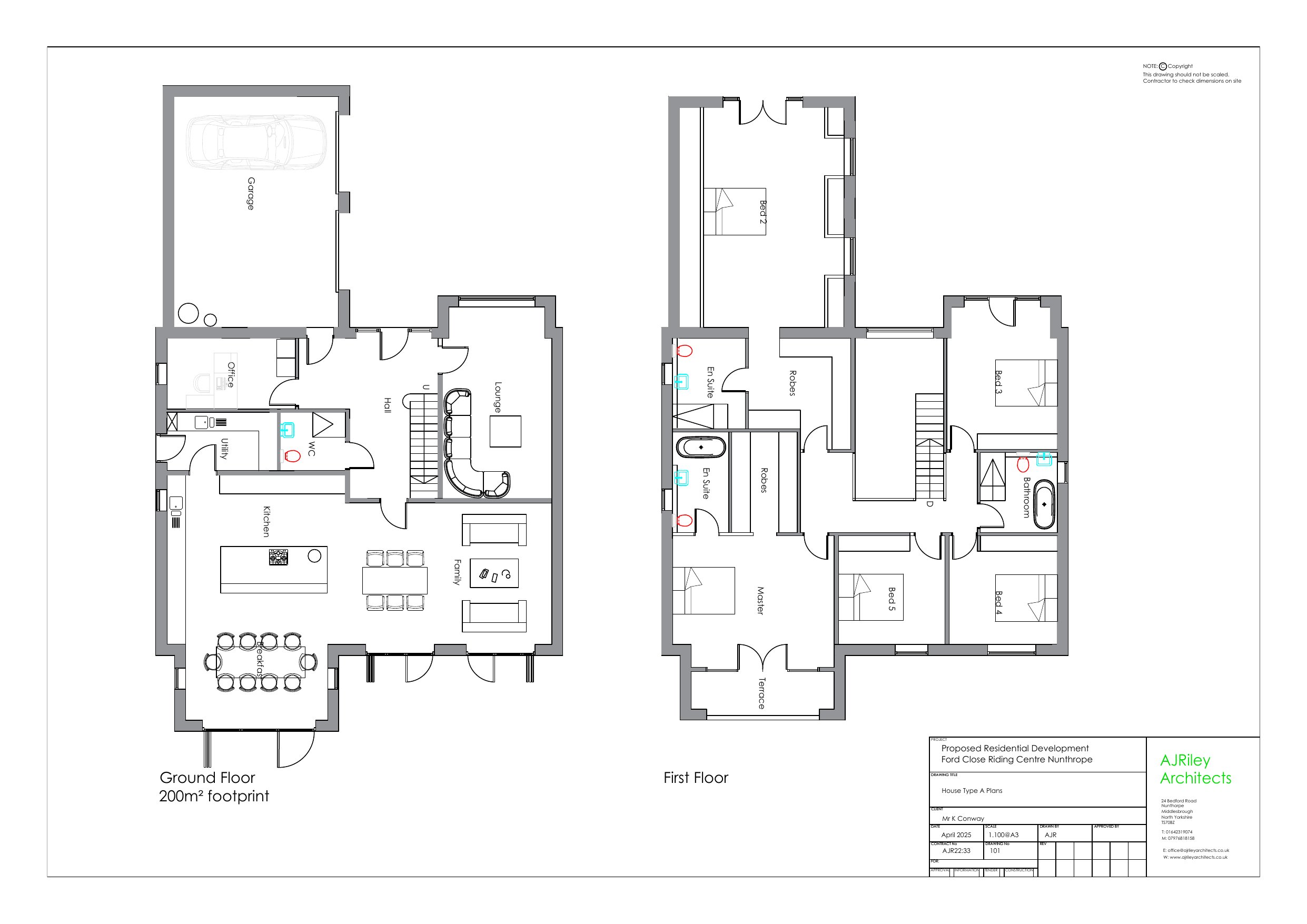
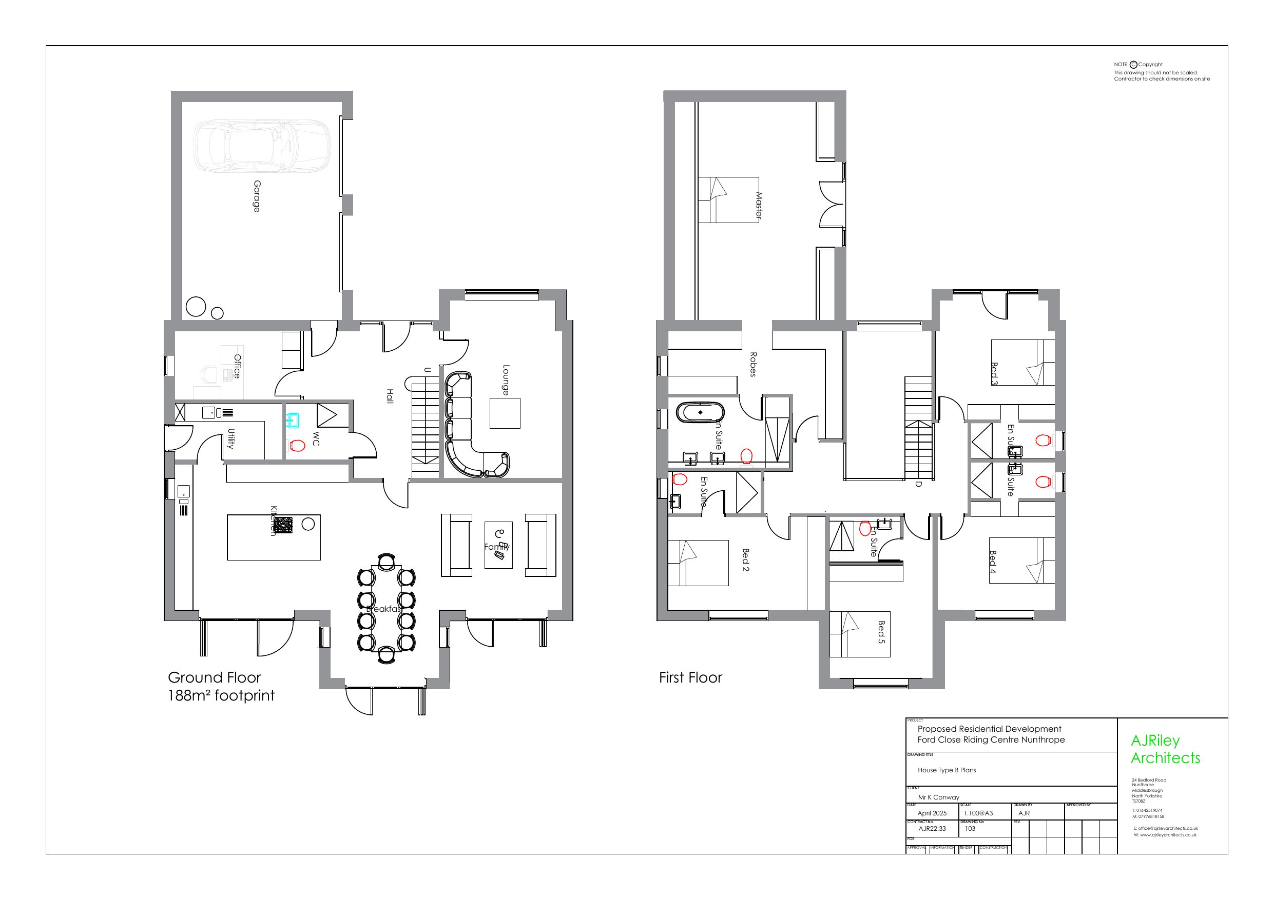
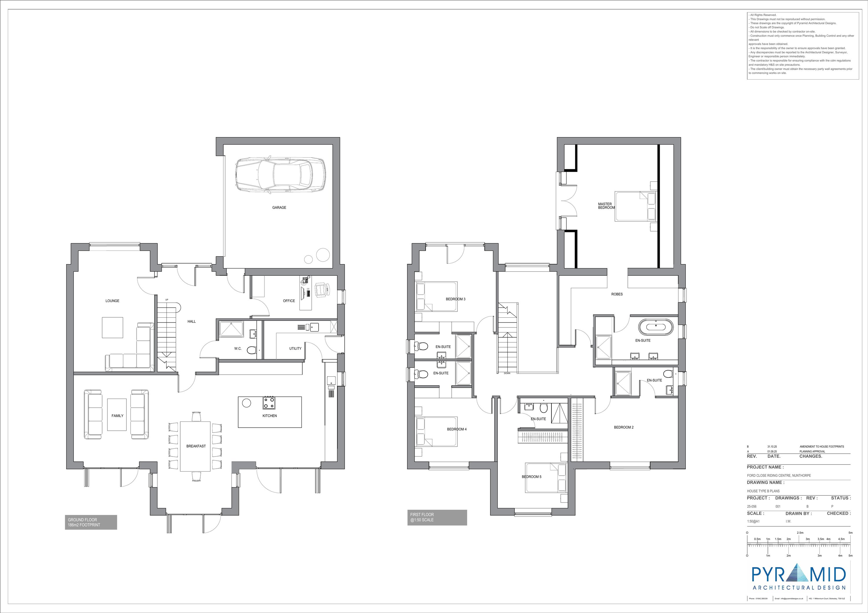
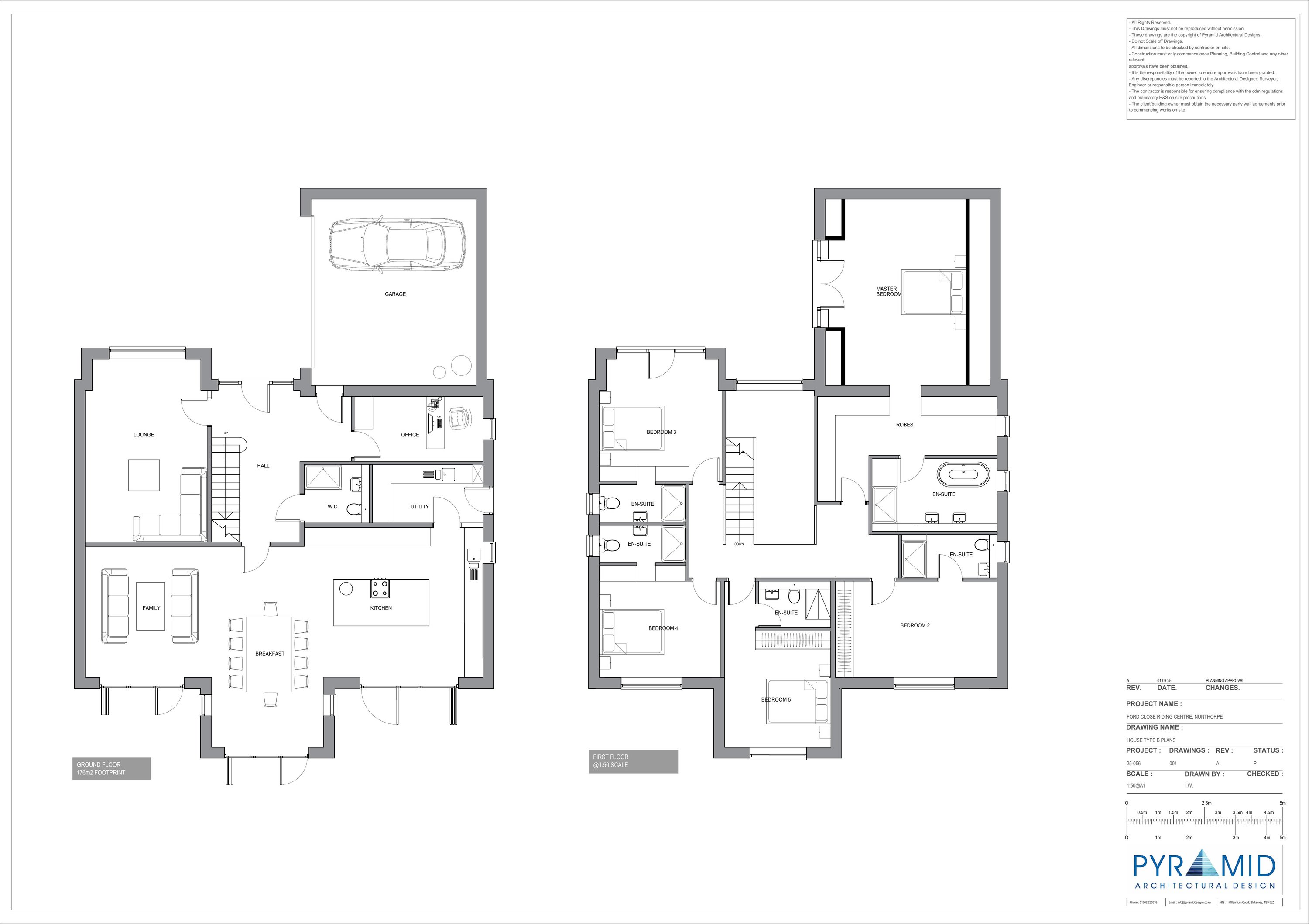
Erection of four detached dwellings and associated works (demolition of existing bungalow).

Full proposal

Erection of 4no. detached dwellings and associated works (demolition of existing bungalow)

Documents

Appeal Questionnaire
Archived · Original link
Appellant`s Case
Archived · Original link
Application Form
Archived · Original link
Consultation Notification List
Archived · Original link
Decision
Archived · Original link
Drawing
Archived · Original link
Drawing
Archived · Original link
Neighbour Notification List
Archived · Original link
Report
Archived · Original link
Supporting Documents
Archived · Original link
Revised Drawing
Archived · Original link
Neighbour Notification List
Archived · Original link

Have your say

Your comment matters. Councils must consider every representation that raises material planning considerations.

Write a comment