← Middlesbrough Council

Status

Decision Issued Change of use
Received
15 May 2025
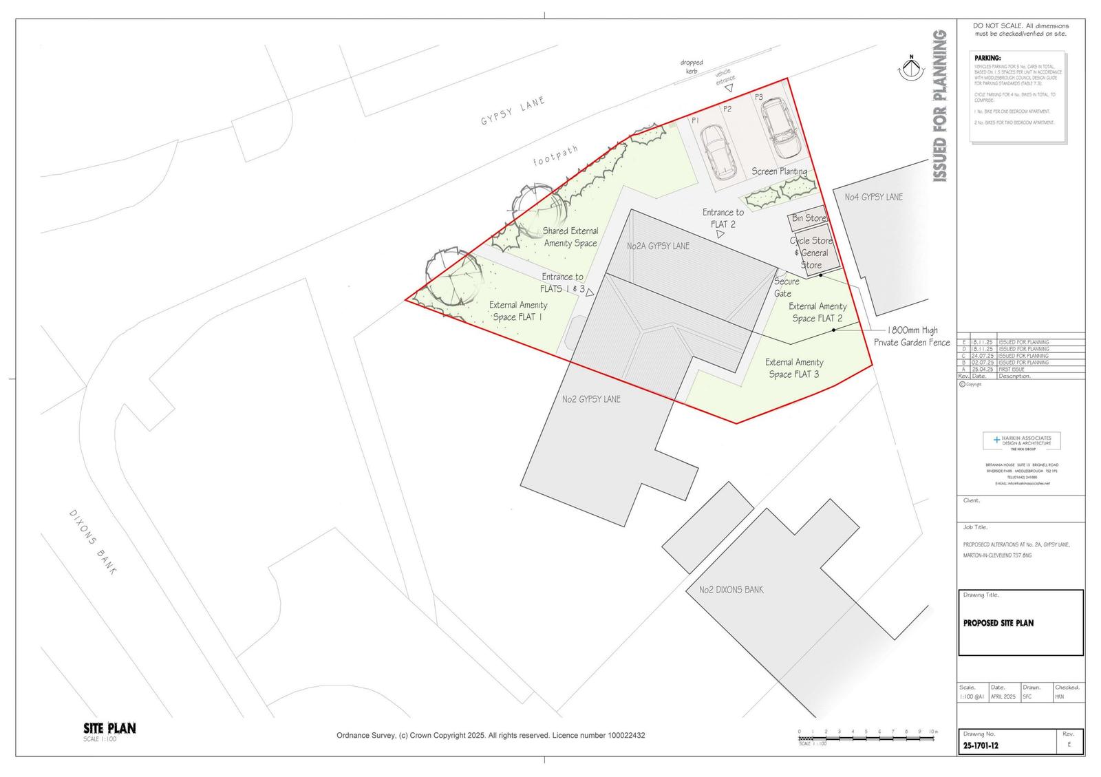
New homes
2

Full proposal

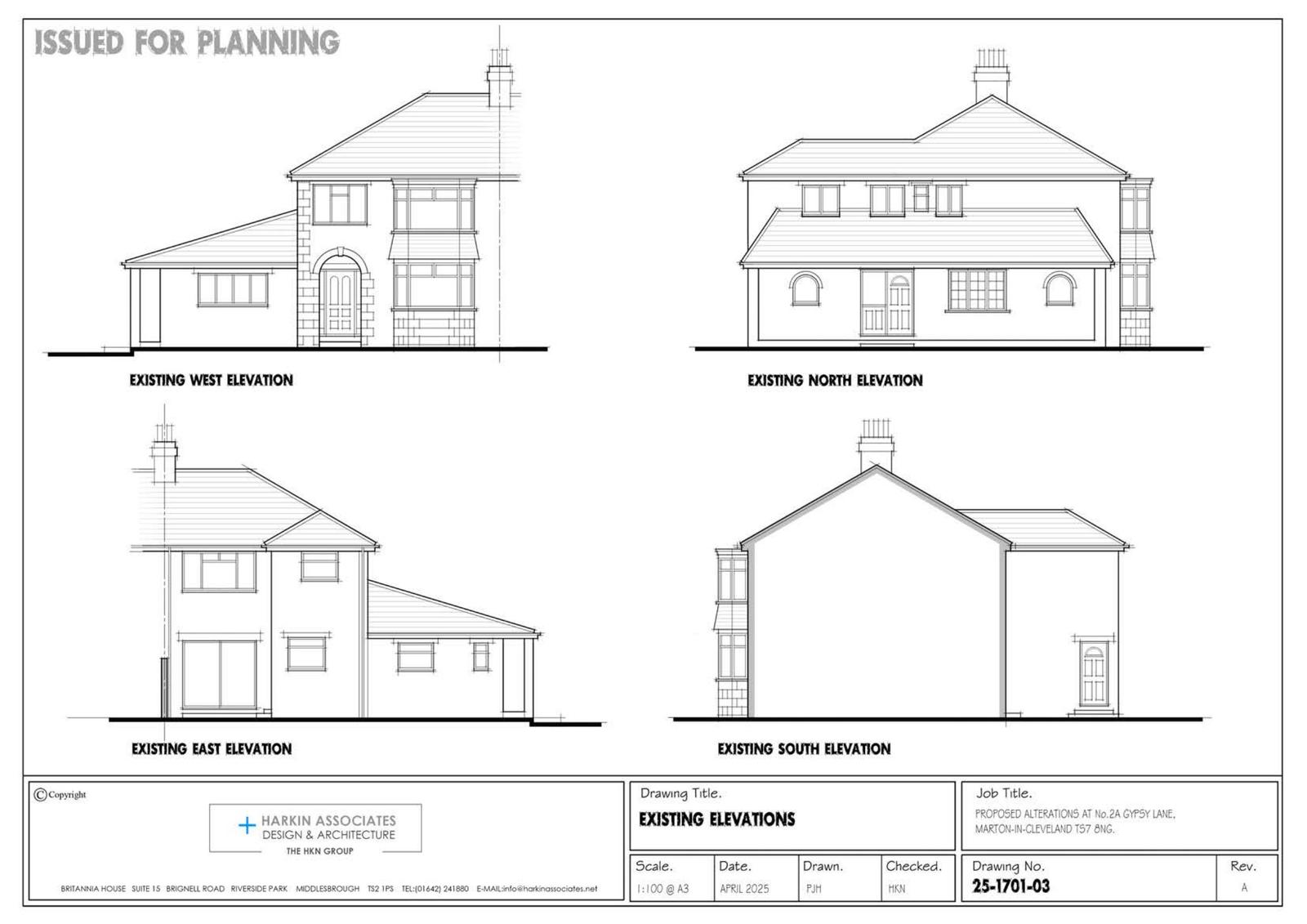
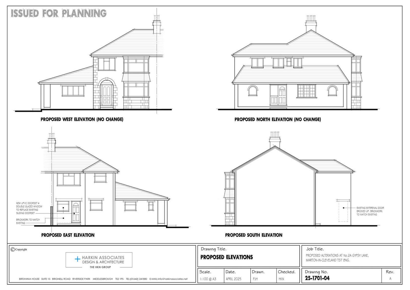
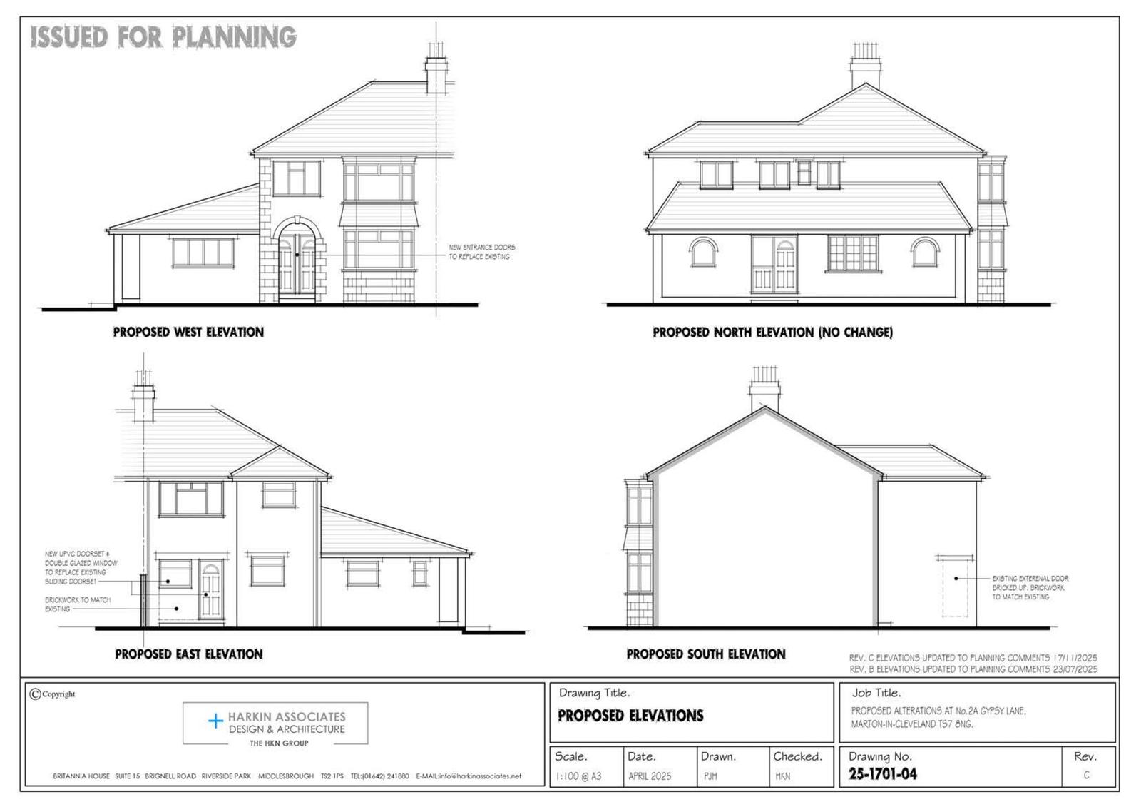
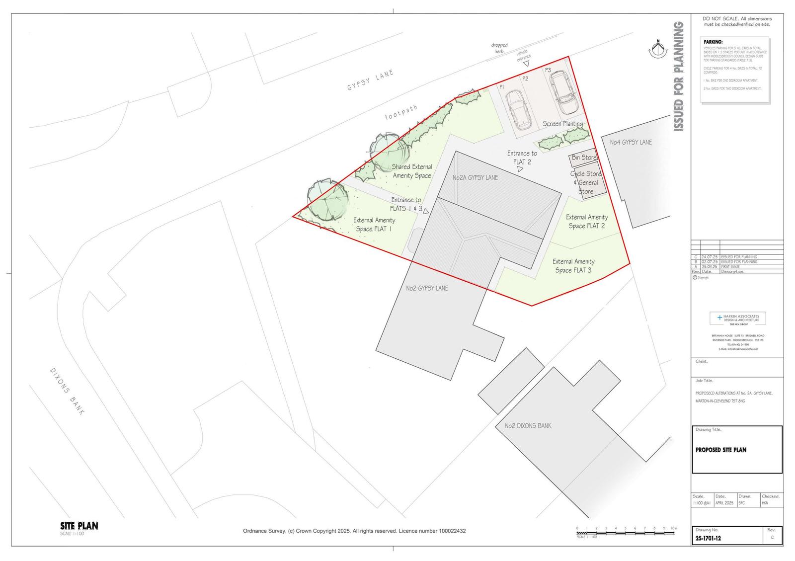
Conversion of 1no. dwelling into 3no. self-contained units with associated external works

Documents

Application Form
Archived · Original link
Consultation Notification List
Archived · Original link
Decision
Archived · Original link
Supporting Documents
Archived · Original link
Neighbour Notification List
Archived · Original link
Supporting Documents
Archived · Original link
Report
Archived · Original link

Have your say

Your comment matters. Councils must consider every representation that raises material planning considerations.

Write a comment