← Middlesbrough Council

Status

Decision Issued House extension
Received
28 May 2025
New homes
0

Full proposal

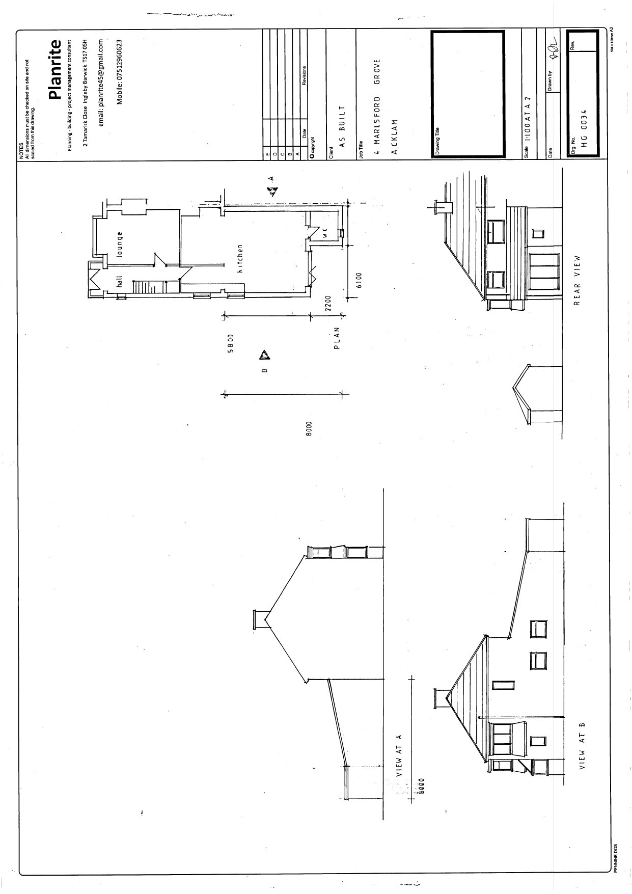
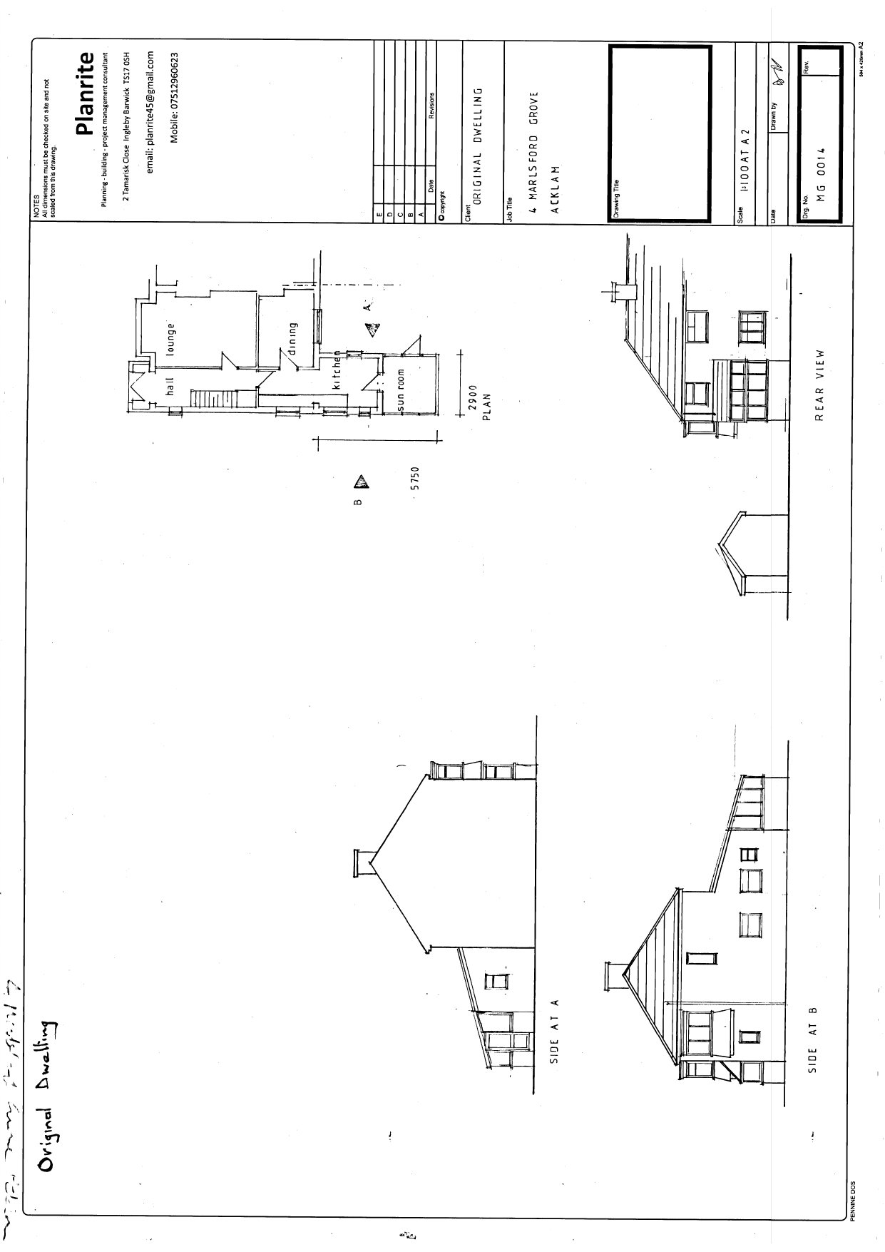
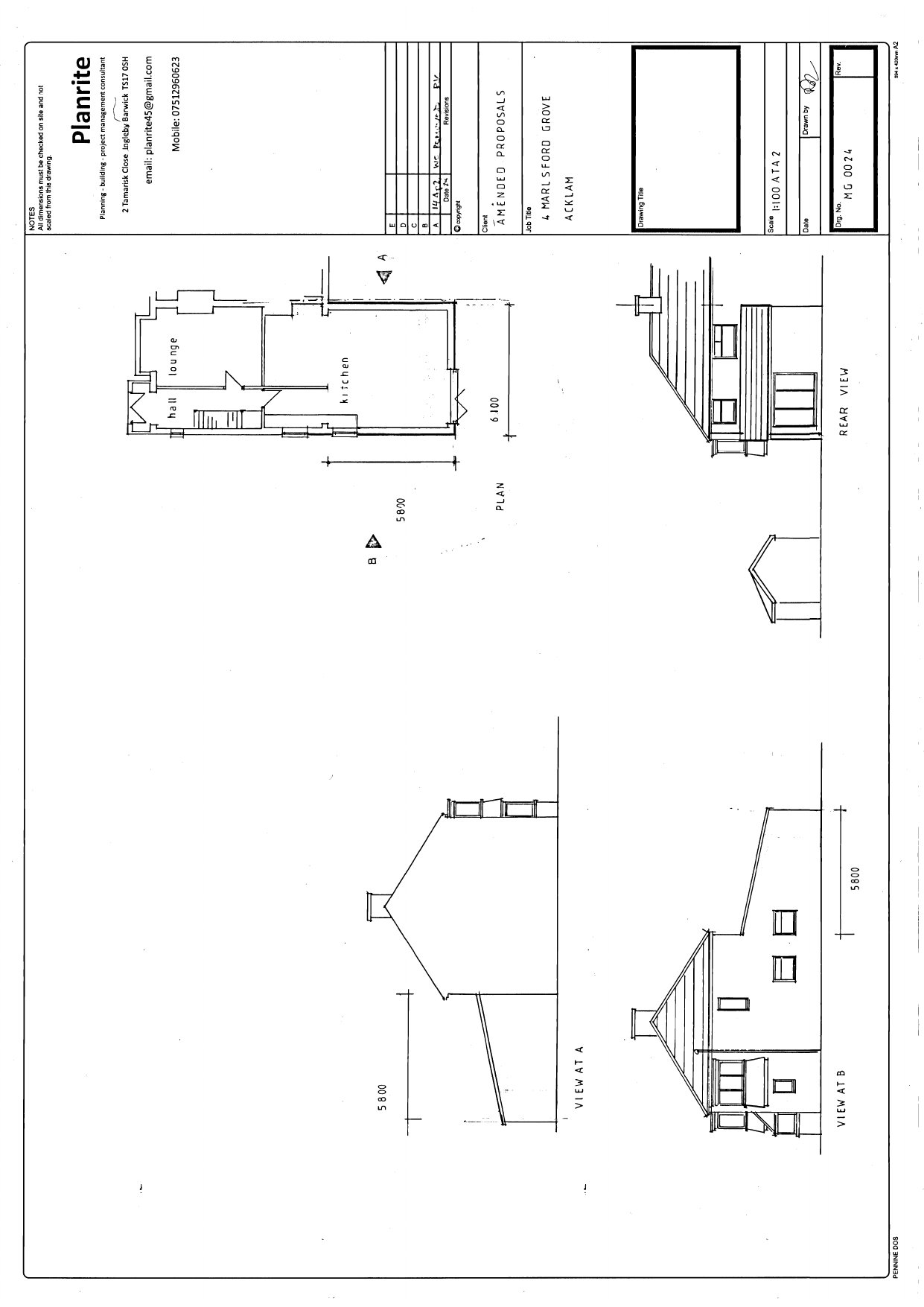
Part demolition of retrospective erection of single storey extension to rear

Documents

Application Form
Archived · Original link
Consultation Notification List
Archived · Original link
Decision
Archived · Original link
Neighbour Notification List
Archived · Original link
Report
Archived · Original link
Supporting Documents
Archived · Original link
Drawing
Archived · Original link
Revised Drawing
Archived · Original link

Have your say

Your comment matters. Councils must consider every representation that raises material planning considerations.

Write a comment